
|
這套農村別墅設計效果圖共有三層,開間進深15.6米×16米,首層占地面積251㎡,總建筑面積659.14㎡,采用框架結構,主體造價大概65萬。一層設有2廳2臥3衛1廚,二層設有1廳4臥3衛1雜物房,三層設有1廳2臥2衛2露臺1雜物間1健身房。
該戶型采用米色和灰色裝飾外表,顏色搭配簡單大氣,利用多個落地窗設計,美感且為之內增強采光,屋頂有雙露臺設計,活動及賞景空間闊綽有余,正立面有印花雕刻裝飾,屋頂還有設有小虎窗,為整棟房子的外立面增添設計感。戶型擁有很好的動線布局,采用挑空客廳及旋轉樓梯設計,高端大氣,各樓層動靜、干濕分離,增加了房屋舒適度。 室內布局展示
一層:挑空客廳、主臥(帶主衛、衣帽間)、老人房(帶衛生間)、廚房、餐廳、公衛
二層:起居室、主臥(帶主衛、衣帽間)、小孩房(帶衛生間)、臥室×2、公衛、雜物間
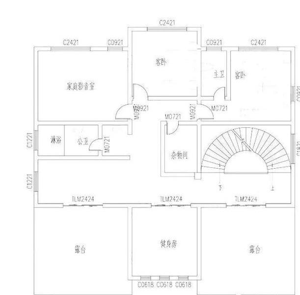
三層:家庭影音室、臥室(帶衛生間)、臥室、公衛、雜物間、健身房、露臺×2 圖紙之家-專注農村別墅/自建房設計18年,集合國內200余位經驗豐富的設計師,被評為口碑最好的農村建筑設計公司! |

簡單農村自建二層樓房設計圖,南北通透
占地:140平方米
2026年新款二層半農村自建小別墅設計圖紙,占地150平方米
占地:150平方米
鄉下建房一層平房設計圖紙及戶型圖,占地150平米左右
占地:150平方米
帶車庫帶露臺二層農村小別墅設計圖,宅基地大小適中,外觀造型
占地:180平方米
三十萬農村別墅設計圖帶外觀圖片,30萬造價別墅展示
占地:125平方米
農村自建房設計圖,三層房屋設計圖及效果圖
占地:120平方米
110平農村二層房屋設計圖,戶型特別接地氣,造價經濟還實用
占地:110.05平方米
140平二層帶閣樓別墅設計方案圖,外觀圖片色彩明快
占地:140平方米
帶土灶房一層四開間別墅設計方案,溫馨舒適的雅舍
占地:164.34平方米
新中式農村三層四合院別墅設計圖,四合院風格的別墅圖
占地:177平方米
獨棟兩層四開間房子施工設計圖紙及效果圖片,大氣時尚
占地:170平方米
120平米三層小別墅設計方案和效果圖,端莊大氣很經典
占地:120平方米
五開間一層農村平房設計圖,200平米大戶型,五間臥房足夠用了
占地:200.7平方米
獨棟兩層歐式別墅設計圖紙(效果圖+建筑施工圖)
占地:125平方米
歐式豪華三層別墅設計圖,占地面積170平米,高端大氣帶露臺
占地:170平方米
帶商鋪挑高的三層別墅房屋設計圖,商鋪挑高,層高比較高
占地:118平方米
110平米一層小別墅設計方案,布局四室兩廳一廚兩衛
占地:110.5平方米
12×11米兩層農村建房圖紙,農村建房最佳戶型,簡單的風格
占地:140平方米
經典的農村三層小樓房設計圖,外觀圖片時尚、精致
占地:100平方米
平屋頂現代風格三層蓋別墅設計圖紙,面寬18米
占地:235.34平方米
推薦:10套新農村自建房設計圖,2026年最新設計
閱讀次數:4825737次
100套鄉村別墅圖片大全,2026年最新設計
閱讀次數:2492203次
6款農村蓋一層平房的設計圖,10萬元就能建起來
閱讀次數:1852637次
這11個一層農村自建房別墅火爆了朋友圈!我最喜歡戶型十!你呢
閱讀次數:750268次
農村6萬元建一層小別墅圖,你敢相信嗎
閱讀次數:567686次
農村5萬塊就能自建房,6套普通房子設計圖分享,你沒看錯!
閱讀次數:419410次
8套農村漂亮三間平房圖片,非常適合在農村修建!
閱讀次數:411197次
農村自建房化糞池怎么做?附方案及施工過程
閱讀次數:391783次
農村一層三間平房設計圖,告別土氣養老房,讓人忍不住點贊
閱讀次數:350581次
新農村二層樓房圖片造價12萬,挑一套回家建房吧!
閱讀次數:349126次
