
|
老鄉見老鄉,相互推薦蓋房!江西余先生的老鄉去年在咱們這里定制設計了一棟別墅戶型,余先生看了后覺得我們非常專業,于是前幾天找我們設計了這款一層半美式別墅!這么好看怎么辦,我都舍不得賣了!
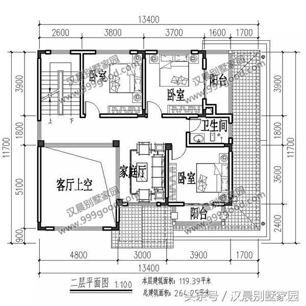
別墅基本信息: 開間13.4米,進深 11.7米;基礎 0.6米,一層3.6米,二層3.4米; 占地面積為144.86 平米,總建筑面積為 264.25平米
設計說明:平時回農村少的適合建這棟別墅,靛藍色屋頂避免千篇一律的紅色, 外墻真石漆,一層半形式客廳中空,造型非常的好看,可以看做是美式風格。
平面功能說明:門廳隔離了室外和室內,兩間臥室分布均勻合理。 廚房有小門,布局通透不壓抑,給家人最舒適的居住體驗。
每層一個衛生間也夠用,逢年過節回去住一次,享受一下寧靜的鄉村生活超完美。
往期類似戶型推薦 圖紙編號: TC268,規 格: 16.6米x14.2米,建造預算: 38萬左右 建筑面積: 365.56㎡,占地面積: 214㎡ 圖紙編號: TC289,規 格: 12.9米x12米,建造預算: 28萬左右, 建筑面積: 275.86㎡,占地面積: 144.59㎡ 在富豪眼里,別墅就是只有一層,多了就是浪費!農村現代一層別墅 圖紙之家-專注農村別墅/自建房設計18年,集合國內200余位經驗豐富的設計師,被評為口碑最好的農村建筑設計公司! |

新農村自建二層樓房戶型設計圖,簡單大氣,外觀漂亮精致
占地:多種戶型
275平方米新農村雙拼樓中樓戶型別墅設計圖紙及效果圖21X14米
占地:275平方米
占地200平米時尚現代三層農村別墅設計圖,簡簡單單百看不厭
占地:202.95平方米
三層奢華歐式別墅圖片及全套設計圖,帶地下室和車庫
占地:208平方米左右
農村三室二廳一層小平房設計圖,簡單實用型
占地:113.4平方米
一層帶閣樓農村別墅設計圖,多得一層可變空間,太值了!
占地:165.89平方米
新中式帶露臺30萬左右農村三層別墅,客廳中空
占地:110平方米
經濟實用二層復式樓房設計圖 ,占地150平方米,造價25萬左右
占地:150平方米
新中式農村三層房屋效果圖及施工圖,140平方米左右
占地:140平方米
好看又簡單的二層小樓設計圖,農村自建20萬元左右
占地:130平方米
農村三層歐式別墅豪宅戶型圖設計方案,復式中空客廳+旋轉樓梯
占地:134.84平方米
新農村復試兩層半樓房設計圖,帶大露臺,簡單經濟實用大氣
占地:190平方米
2026戶型方正三層農村小別墅設計圖紙(含外觀圖片)
占地:150平方米
120平米三層別墅房屋設計圖,帶車庫,帶閣樓
占地:120平方米
帶車庫的新中式風格一層別墅設計圖,鳥語花香回家建房
占地:184平方米
農村一層中式三合院太香了!白墻黛瓦,有院有景超宜居
占地:364.72平方米
農村7字形漂亮房子設計圖及外觀效果圖
占地:189.3平方米
10套農村經典二層樓房設計圖紙,多戶型,多尺寸,總有一款適合
占地:多種
新農村小洋樓三層別墅戶型設計圖,開間9米,造價25萬
占地:94平方米
農村三層雙拼別墅設計圖,帶外觀效果圖,推薦
占地:190平方米
推薦:10套新農村自建房設計圖,2026年最新設計
閱讀次數:4825737次
100套鄉村別墅圖片大全,2026年最新設計
閱讀次數:2492203次
6款農村蓋一層平房的設計圖,10萬元就能建起來
閱讀次數:1852637次
這11個一層農村自建房別墅火爆了朋友圈!我最喜歡戶型十!你呢
閱讀次數:750268次
農村6萬元建一層小別墅圖,你敢相信嗎
閱讀次數:567686次
農村5萬塊就能自建房,6套普通房子設計圖分享,你沒看錯!
閱讀次數:419410次
8套農村漂亮三間平房圖片,非常適合在農村修建!
閱讀次數:411197次
農村自建房化糞池怎么做?附方案及施工過程
閱讀次數:391783次
農村一層三間平房設計圖,告別土氣養老房,讓人忍不住點贊
閱讀次數:350581次
新農村二層樓房圖片造價12萬,挑一套回家建房吧!
閱讀次數:349126次
