
|
有房子的地方才能稱得上有家,家是溫暖的港灣,當你累了倦了,還有地方可以歇息!
房子整體很華麗,采用歐式風格,很漂亮!建一棟在村里,一定是最耀眼的那一棟!
細節圖
細節圖
細節圖一
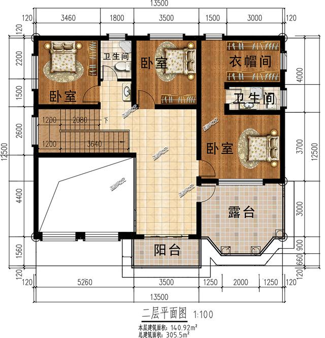
【基本信息】磚混結構,造價36-42萬,開間13.5米,進深12.5米,占地面積164.58平方米,建筑面積305.5平方米,建筑高度10.2米
心有所歸,才是所謂的歸屬感和安全感吧! 愿你心有所歸 愿你累有人陪 一切順心,一切如意 圖紙之家-專注農村別墅/自建房設計18年,集合國內200余位經驗豐富的設計師,被評為口碑最好的農村建筑設計公司! |

二層自建房屋設計圖,帶小院,帶地下室,外觀現代、時尚,內部
占地:200平米
農村一層四間平房設計圖方案,含外觀圖片,預算10萬
占地:190平方米
80平方米鄉村一層半帶閣樓自建別墅設計圖,帶車庫
占地:80平方米
140平米二層半帶露臺別墅圖片及圖紙,戶型極佳
占地:140平方米
160平米三層別墅設計圖,功能齊全,外觀漂亮,適合和父母同住
占地:160平方米
二層中式四合院別墅設計圖,經典、漂亮(全套施工圖)
占地:350平方米
簡單實用農村自建房五間一層別墅設計圖,多款戶型
占地:多戶型可選
二層農村雙拼別墅帶露臺設計圖,20×11.8米,單戶110平米
占地:220平方米
180平方農村二層別墅施工設計圖紙,15.8x11.7米
占地:180平方米
農村二層半帶露臺別墅圖片及設計圖,戶型方案比較經典
占地:123平方米
帶架空層一層農村別墅設計圖,回鄉建房優選,家有豪宅幸福來敲
占地:124.76平方米
300平大戶型豪華三層別墅設計圖,帶總統套房
占地:300平方米
占地180平方米二層鄉村小洋樓設計戶型圖及圖紙,外觀華麗
占地:180平方米
面寬20米大氣的農村二層別墅設計圖,戶型帶車庫和土灶房設計
占地:250.85平方米
回農村建養老房,還是一層平頂戶型最合適,不單單只是省錢
占地:102.24平方米
農村一層大別墅施工圖,18米乘12米,讓生活充滿儀式感
占地:216平方米
2026年最新三層房屋設計圖紙,12米×11米,實用接地氣
占地:130平方米
11x13米兩層半現代風別墅設計圖,??看過的都后悔建早了!
占地:126.02平方米
185平方米二層自建別墅設計施工圖紙及外觀效果圖,15x13米
占地:186平方米
農村二層仿古尖屋頂別墅設計圖,外觀古樸耐看
占地:87平方米左右
推薦:10套新農村自建房設計圖,2026年最新設計
閱讀次數:4825737次
100套鄉村別墅圖片大全,2026年最新設計
閱讀次數:2492203次
6款農村蓋一層平房的設計圖,10萬元就能建起來
閱讀次數:1852637次
這11個一層農村自建房別墅火爆了朋友圈!我最喜歡戶型十!你呢
閱讀次數:750268次
農村6萬元建一層小別墅圖,你敢相信嗎
閱讀次數:567686次
農村5萬塊就能自建房,6套普通房子設計圖分享,你沒看錯!
閱讀次數:419410次
8套農村漂亮三間平房圖片,非常適合在農村修建!
閱讀次數:411197次
農村自建房化糞池怎么做?附方案及施工過程
閱讀次數:391783次
農村一層三間平房設計圖,告別土氣養老房,讓人忍不住點贊
閱讀次數:350581次
新農村二層樓房圖片造價12萬,挑一套回家建房吧!
閱讀次數:349126次
