
|
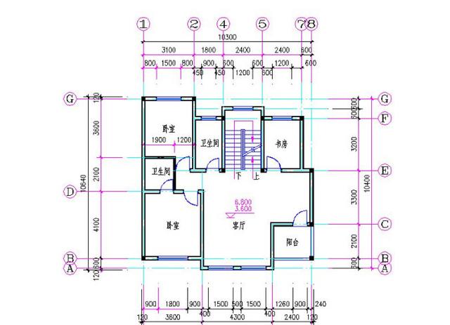
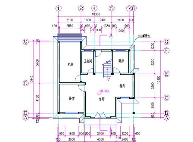
如今農村自建房盛行,由于生活水平有了提升,自然在居住上要求也更高一些,很多人在自建房的時候,不僅要求外觀漂亮,室內布局還要實用,不過有很多戶型外觀雖然漂亮,但農村施工的師傅不一定建得出來,這種戶型對于農村建房來說并不實際,所以還是那種簡潔大方的戶型最經濟實用,下面給大家分享一款28萬三層帶車庫4廳7房11×11米農村自建房全套設計圖。 圖紙詳情 層數: 三層 結構形式: 磚混結構 主體造價: 28萬 開間: 10.54米 進深: 10.64米 占地面積: 100平方米 建筑面積: 300平方米
效果圖 別戶型在色彩配色上,實用比較低調的顏色,灰色、淡黃色、白色裝飾外墻,正立面突出的結構部分使用灰色蘑菇石,其他墻面均是墻漆涂刷,屋頂使用比較鮮艷的紅色裝飾,與墻體形成強烈對比,給人加深印象。 設計功能
一層平面圖 一 層: 客廳、臥室、廚房、餐廳、衛生間、車庫
二三層平面圖 二 層: 客廳、臥室(附衛生間)、臥室、書房、衛生間、陽臺 三 層: 客廳、臥室(附衛生間)、臥室、書房、衛生間、陽臺 圖紙之家-專注農村別墅/自建房設計18年,集合國內200余位經驗豐富的設計師,被評為口碑最好的農村建筑設計公司! |

農村自建房就選它!一層新中式設計,日常居住需求全搞定
占地:128.45平方米
一層中式三合院農村自建別墅圖,面寬18米帶堂屋設計
占地:165.72平方米
經濟型實用歐式一層小樓房別墅平房設計圖,11X10米
占地:103平方米
農村三間三層半別墅設計圖,舒適寬敞時尚經濟,居住生活方便舒
占地:168.29平方米
方正對稱二層農村自建別墅施工圖,經濟實用舒適大氣
占地:129.6平方米
頂配三拼三層別墅設計,獨立入戶+共享庭院,兄弟三家共享奢華
占地:367.44平方米
中式四合院風格別墅設計圖,平屋頂,書房、茶室、健身房一應俱
占地:370平方米
簡約偏現代三層別墅設計圖紙及效果圖,鄉村蓋房推薦方案
占地:130平方米左右
新農村三層房屋設計圖紙大全,新農村住宅圖紙
占地:108平方米
高端大氣三層歐式別墅設計圖,高檔新款外型圖片美觀時尚
占地:168平方米
六開間三層農村自建別墅設計圖,盡享豪華舒適生活
占地:341.91平方米
二層半農村小別墅設計方案圖,南方設計圖精選
占地:82平方米
占地百平三層歐式別墅設計圖,回到家鄉建一棟,大氣美觀有內涵
占地:99.94平方米
一眼就驚艷的二層新中式別墅設計圖,大氣做夢都想回家蓋棟!
占地:128.58平方米
170平方米農村二層小別墅設計圖及效果圖
占地:170平方米
人字坡紅磚一層別墅設計圖,簡約低調超實用,這樣的房子人人能
占地:136.51平方米
200平農村二層別墅設計圖,外觀現代簡約
占地:204平方米
150平米簡歐三層農村別墅設計圖,低調又奢華
占地:151.2平方米
農村一層四間平房設計圖方案,含外觀圖片,預算10萬
占地:190平方米
偏徽派風格民居三層農村住宅設計圖,白墻黛瓦的古雅簡潔
占地:101.01平方米
推薦:10套新農村自建房設計圖,2026年最新設計
閱讀次數:4825737次
100套鄉村別墅圖片大全,2026年最新設計
閱讀次數:2492203次
6款農村蓋一層平房的設計圖,10萬元就能建起來
閱讀次數:1852637次
這11個一層農村自建房別墅火爆了朋友圈!我最喜歡戶型十!你呢
閱讀次數:750268次
農村6萬元建一層小別墅圖,你敢相信嗎
閱讀次數:567686次
農村5萬塊就能自建房,6套普通房子設計圖分享,你沒看錯!
閱讀次數:419410次
8套農村漂亮三間平房圖片,非常適合在農村修建!
閱讀次數:411197次
農村自建房化糞池怎么做?附方案及施工過程
閱讀次數:391783次
農村一層三間平房設計圖,告別土氣養老房,讓人忍不住點贊
閱讀次數:350581次
新農村二層樓房圖片造價12萬,挑一套回家建房吧!
閱讀次數:349126次
