
|
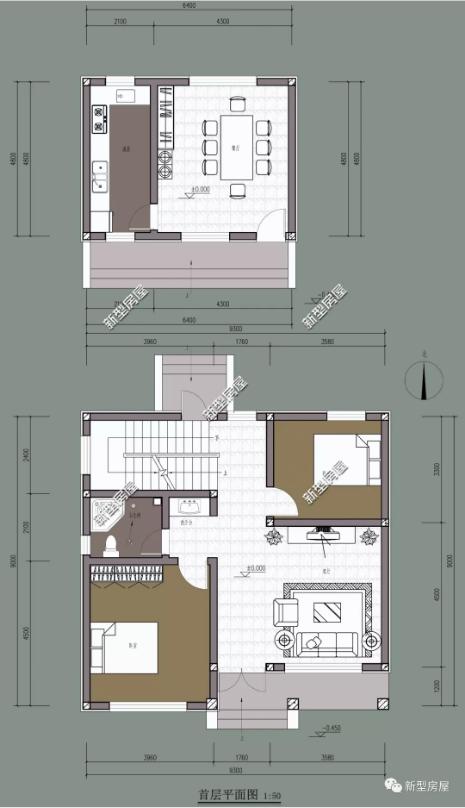
年輕的時候在外打拼,本想等老了之后回農村蓋一套小別墅。可是建房時發現如今審批下來的宅基地面積還不到100平;隨便建起既不好看又不適用,而自己又不會設計。可能很多人都會遇到上邊的情況?不用怕,今天小編就給大家帶來7款占地不到100平的小別墅,建好不比別人家的豪宅差。 第一套:大落地窗歐式3層別墅 占地尺寸:9m×9m 占地面積:81㎡ 建筑面積:227㎡ 建筑情況:共設 8室 3廳 1廚 3衛
一層設置兩間臥室的同時,還有挑空客廳、餐廳及廚房;配上兩層高的大落地窗,將客廳的采光達到最優,同時還很美觀。
二層設臥室、起居室和書房,南向的主臥加了一個小陽臺可以說設計師是別出心裁,占地不大,但豐富了空間功能,升級了居住體驗。
三層主要為臥室和露臺。農村人都比較好客,有了這3個臥室,即使家里多來上幾個客人,也不怕沒地方休息。
第二套:2層美式別墅 占地尺寸:8.2m×10.6m 占地面積:87㎡ 建筑面積:174㎡ 建筑情況:共設 3室 2廳 1廚 2衛
這套戶型將每寸空間都做了最大化利用,是非常適合小兩口回農村養老的戶型。并且在這么小的面積中還能有一個車庫,不得不贊嘆設計師的用心。
第二層主要設置了主臥(帶衣帽間)、起居室和露臺,充分滿足了農村晾曬休閑等需要。
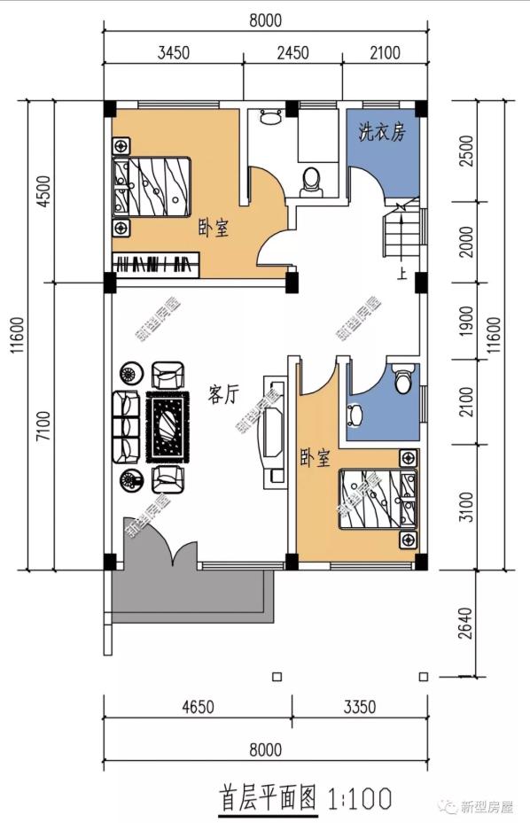
第三套:2層現代別墅 占地尺寸:8m×11.6m 占地面積:92.8㎡ 建筑面積:167.6㎡ 建筑情況:共設 4室 2廳 1洗衣房 4衛
這套戶型大家看來可能比較有疑慮,為什么沒有看到廚房呢?原來考慮到農村老房拆遷時都會留一點老房子作為廚房或者儲物間,所以整個下來沒有看到廚房、餐廳。這樣也是保證了新房不受廚房油煙的熏擾。
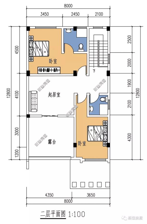
二層設置了臥室、起居室和露臺,也是為了把有限的面積利用大最大化。
第四套:2層現代別墅 占地尺寸:9m×10.5m 占地面積:94.5㎡ 建筑面積:189㎡ 建筑情況:共設 2室 2廳 1廚 2衛
這套戶型非常適合兩口之家,餐廳、廚房、臥室,動靜分離,即使家人在樓下做飯、看電視,樓上睡覺都不會受到影響,并且還帶有一個車庫。
二層主要設置為休息區,如果臥室比較少的話,還可將露臺改做書房或者臥室。
三層為一個大露臺,農村都會種點稻谷或者小麥,而露臺正好可以晾曬衣物和農作物。
第五套:2層美式別墅 占地尺寸:9.9m×9m 占地面積:98.1㎡ 建筑面積:172㎡ 建筑情況:共設 5室 3廳 1廚 3衛
一層設客廳、餐廳、廚房。一進門就是敞亮的大客廳,而餐廳獨特的沉落式設計,更是讓人眼前一亮。
二層主要設臥室和客廳,而小陽臺的設計既滿足了晾曬休閑等生活需求,又不浪費一點面積。
第六套:2層簡歐別墅 占地尺寸:9m×9.3m 占地面積:83.7㎡ 建筑面積:157㎡ 建筑情況:共設 4房 2廳 2衛
這套戶型是比較周正的方形戶型,室內布局和第3套有些類似,不同的是這套是新建了獨立的廚房和餐廳,優點缺點可以自行評判。
二層設置了臥室、起居室和露臺。簡單明了,沒有一點面積浪費。
這6套別墅戶型,經濟實惠,可以為農村的父母養老,也可以供一家人休閑娛樂。 圖紙之家-專注農村別墅/自建房設計18年,集合國內200余位經驗豐富的設計師,被評為口碑最好的農村建筑設計公司! |

自建一層三合院別墅圖,雅致鄉村居造價經濟,南北通透更宜居!
占地:176.36平方米
農村7字形漂亮房子設計圖及外觀效果圖
占地:189.3平方米
二層復式小別墅設計圖,樓中樓結構,外觀漂亮,簡單
占地:120平方米
150平米經典二層中式別墅設計圖 ,現代中式相結合
占地:154平方米左右
兄弟兩戶雙拼房屋設計圖及外觀圖片,戶型合理
占地:185平方米
面寬10米左右的三層農村別墅設計案例,低調又奢華
占地:120平方米
歐式三層農村別墅設計圖,占地130平方米自建房,低調又奢華鄉村
占地:129.8平方米
農村一層帶小院房屋設計圖,帶院子一層自建房別墅戶型圖
占地:161.16平方米
鄉村三層簡單自建房子設計圖,全部建好34萬左右,外觀簡潔
占地:127.912平方米
占地200平米簡歐三層農村別墅設計圖,既顯華麗又接地氣
占地:209.27平方米
面寬20米農村自建房設計圖一層設計圖,五開間養老戶型
占地:194平方米
新款的農村自建房子中式二層四合院別墅設計圖,占地300平左右
占地:304平方米
適合農村自建四合院圖片,中式二層四合院別墅設計施工圖紙
占地:232平方米
歐式三層小洋樓設計圖,外觀氣派,典雅、高貴
占地:145平方米
新中式高端豪宅三層別墅自建房設計圖,大戶型經典
占地:270平方米左右
275平方米新農村雙拼樓中樓戶型別墅設計圖紙及效果圖21X14米
占地:275平方米
150平米一層7字型別墅設計方案,功能齊全舒適簡約,設計感十足
占地:154.48平方米
最新高端四層別墅外觀效果圖及全套設計圖,真土豪就這樣建
占地:174.08平方米
農村最漂亮平頂三層別墅設計圖,10.5乘11.5米
占地:119.35平方米
300平四層別墅房屋設計圖,含外觀效果圖,大面積、多臥室
占地:261平方米
推薦:10套新農村自建房設計圖,2026年最新設計
閱讀次數:4825737次
100套鄉村別墅圖片大全,2026年最新設計
閱讀次數:2492203次
6款農村蓋一層平房的設計圖,10萬元就能建起來
閱讀次數:1852637次
這11個一層農村自建房別墅火爆了朋友圈!我最喜歡戶型十!你呢
閱讀次數:750268次
農村6萬元建一層小別墅圖,你敢相信嗎
閱讀次數:567686次
農村5萬塊就能自建房,6套普通房子設計圖分享,你沒看錯!
閱讀次數:419410次
8套農村漂亮三間平房圖片,非常適合在農村修建!
閱讀次數:411197次
農村自建房化糞池怎么做?附方案及施工過程
閱讀次數:391783次
農村一層三間平房設計圖,告別土氣養老房,讓人忍不住點贊
閱讀次數:350581次
新農村二層樓房圖片造價12萬,挑一套回家建房吧!
閱讀次數:349126次
