
|
現在的經濟飛速發展,我們的生活水平也是越來越高。那些去城里打工的年輕人,經過多年的拼搏努力,都積攢下一些錢,現在需要考慮定居的問題了。相比于城里高昂的房間還有各種限購政策,在農村老家自建房無疑是一個更好的選擇。 下邊給大家帶來6套農村三層別墅設計,大氣豪華又時尚,是大家都值得擁有的戶型。 第一套
正面效果圖
背面效果圖
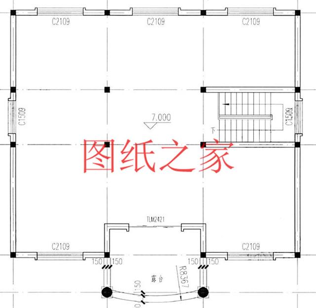
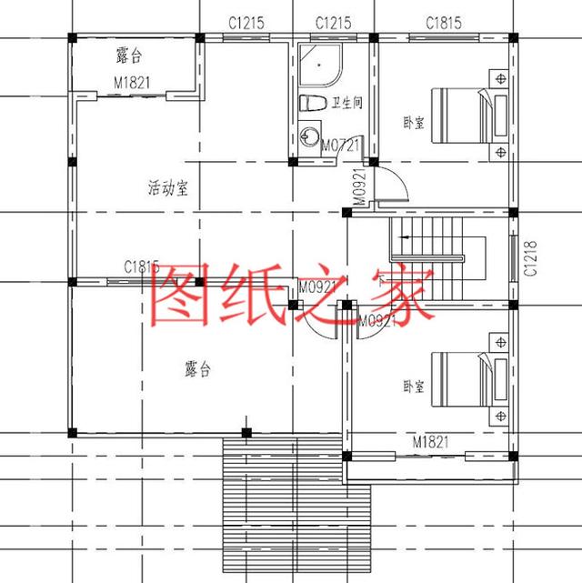
鳥瞰圖 占地面積:13.64m*15.63m,占地210平方米左右; 建筑層高:三層(帶地下室); 建筑高度:11.69米(含屋頂); 設計功能: 地下層:車位、儲藏間、電梯; 一 層:客廳、茶廳、餐廳、廚房、衛生間、洗衣房、臥室、神龕(可隔斷成臥室或棋牌室)、電梯; 二 層:客廳上空、活動區、臥室x3(帶衛生間)、電梯; 三 層:活動區、臥室x3(帶衛生間)、電梯、大露臺、電梯;
地下平面圖
一層平面圖
二層平面圖
三層平面圖 第二套
別墅效果圖 占地面積:11.10m*9.70m,一層建筑面積100平方米左右; 建筑層高:三層; 建筑高度:12.14米(含屋頂); 設計功能: 一 層:玄關、客廳、廚房、餐廳、臥室、衛生間、洗衣房; 二 層:客廳上空、小客廳、臥室x3、衛生間、露臺; 三 層:小客廳、臥室x3、衛生間、大露臺;
一層平面圖
二層平面圖
三層平面圖 第三套
正面效果圖
背面效果圖 占地面積:16.5m*15.0m,247平方米左右; 建筑層高:三層; 建筑高度:10.2米(含屋頂); 設計功能: 一 層:玄關、客廳、餐廳、廚房、衛生間、主臥(帶衛生間、帶衣帽間)、臥室; 二 層:客廳、棋牌室、主臥(帶衛生間、帶衣帽間)、臥室x2、衛生間、小露臺; 三 層:健身房、主臥(帶衛生間、帶衣帽間)、臥室、書房、衛生間、大露臺;
一層平面圖
二層平面圖
三層平面圖 第四套
別墅效果圖 占地面積:10.5m*11.5m,一層建筑面積120平方米左右; 建筑層高:三層; 建筑高度:12.688米(含屋頂); 設計功能: 一 層:客廳、餐廳、廚房、臥室、衛生間、衛生間(樓梯下面); 二 層:客廳、臥室x3、衛生間; 三 層:臥室x3、衛生間、大露臺;
一層平面圖
二層平面圖
三層平面圖 第五套
別墅效果圖 占地面積:11.40m*13.2m,占地150平左右; 建筑層高:三層; 建筑高度:11.325米(含屋頂); 設計功能: 一 層:門廳、客廳、廚房、餐廳、衛生間、臥室X2; 二 層:起居室、主臥(帶衣帽間、衛生間)、露臺、小臥室、陽臺、書房、衛生間、臥室; 三 層:臥室X2、陽臺、露臺X2、活動室、衛生間;
一層平面圖
二層平面圖
三層平面圖 第六套
別墅效果圖 占地面積:13.0m*11.0m,140平方米左右; 建筑層高:三層; 建筑高度:11.41米(含屋頂); 設計功能: 一 層:客廳、廚房、餐廳、衛生間、臥室x2; 二 層:客廳(可以去掉隔斷)、臥室x4、棋牌室、衛生間、陽臺; 三 層:根據需求自行隔斷;
一層平面圖
二層平面圖
三層平面圖 這幾套別墅的設計圖,你最喜歡哪一套? 圖紙之家-專注農村別墅/自建房設計18年,集合國內200余位經驗豐富的設計師,被評為口碑最好的農村建筑設計公司! |

面寬22米的高端三層自建房別墅設計圖,功能齊全
占地:222.47平方米
120平方米農村四層別墅設計圖,含全套施工圖
占地:120平方米
四層自建別墅設計圖,有車庫帶露臺,時尚大氣給你一個五星級的
占地:152.51平方米
農村小別墅一層設計圖紙,外觀漂亮極了,130和160兩個戶型
占地:多種戶型可選
農村小型四合院設計效果圖及施工圖,傳統中式,四面建房
占地:220平方米
帶車庫三間復式三層樓房設計圖,外觀精致、大方
占地:150平方米
160-170平方米二層自建別墅設計CAD圖紙帶效果圖,田園風
占地:167平方米左右
農村新中式別墅設計圖及效果圖,造價25萬左右
占地:95平方米
面寬11米現代風二層小別墅,平屋頂設計,緊跟潮流時尚前衛
占地:94.43平方米
簡約大氣四開間二層自建房設計圖,16x10米,經典耐看高顏值
占地:160平方米
50萬左右農村三層別墅設計圖紙,帶大露臺,外觀大氣
占地:150平方米
簡歐式三層小別墅設計圖,帶地下室,客廳中空,占地150平米
占地:150平方米
農村40萬房子圖片外觀設計效果圖,帶地下室,外觀時尚大氣
占地:110平方米
2026新款二層別墅房屋設計圖,帶外觀圖片
占地:138平方米
中式四合院風格別墅設計圖,平屋頂,書房、茶室、健身房一應俱
占地:370平方米
歐式三層小洋樓設計圖,歐式最美三層別墅外觀效果圖
占地:124.28平方米
120平方房子設計圖帶效果圖,農村自建房戶型推薦
占地:120平方米
2026新中式農村三層別墅圖,外觀漂亮,看一眼就愛上
占地:240平方米
樓中樓客廳挑高二層別墅設計圖,復式別墅方案推薦
占地:122平方米
歐式小型二層別墅效果圖片,帶全套Cad別墅設計圖紙
占地:120平方米
推薦:10套新農村自建房設計圖,2026年最新設計
閱讀次數:4825737次
100套鄉村別墅圖片大全,2026年最新設計
閱讀次數:2492203次
6款農村蓋一層平房的設計圖,10萬元就能建起來
閱讀次數:1852637次
這11個一層農村自建房別墅火爆了朋友圈!我最喜歡戶型十!你呢
閱讀次數:750268次
農村6萬元建一層小別墅圖,你敢相信嗎
閱讀次數:567686次
農村5萬塊就能自建房,6套普通房子設計圖分享,你沒看錯!
閱讀次數:419410次
8套農村漂亮三間平房圖片,非常適合在農村修建!
閱讀次數:411197次
農村自建房化糞池怎么做?附方案及施工過程
閱讀次數:391783次
農村一層三間平房設計圖,告別土氣養老房,讓人忍不住點贊
閱讀次數:350581次
新農村二層樓房圖片造價12萬,挑一套回家建房吧!
閱讀次數:349126次
