
|
農村人喜歡簡單、大方,內部空間利用率高,布局合理的二層樓房戶型,外觀嘛,也要漂亮些,不需要花花哨哨,不需要豪華高端,看起來精致、漂亮就行,實用兼顧好看才好嘛!小編推薦的這幾款施工簡單、造價低,村里的施工隊都能做,布局合理,考慮到農村人的生活習慣,以實用為主,造價有個20、30十萬就能建起來,朋友們,不要光看,挑選一套喜歡的圖紙,趕快農村自建吧! 第一套?
本方案為占地120平方米的二層小別墅設計圖,外觀時尚、漂亮,內部布局合理,造價合適,是一款經典的別墅設計方案。占地面積:11.5m*10.5m(含門廳),建筑高度:9.20米(含屋頂);
設計功能: 一層戶型設計:客廳、臥室x2、廚房、餐廳、衛生間 二層戶型設計:主臥、起居室、臥室x2、書房、衛生間、陽臺 第二套:
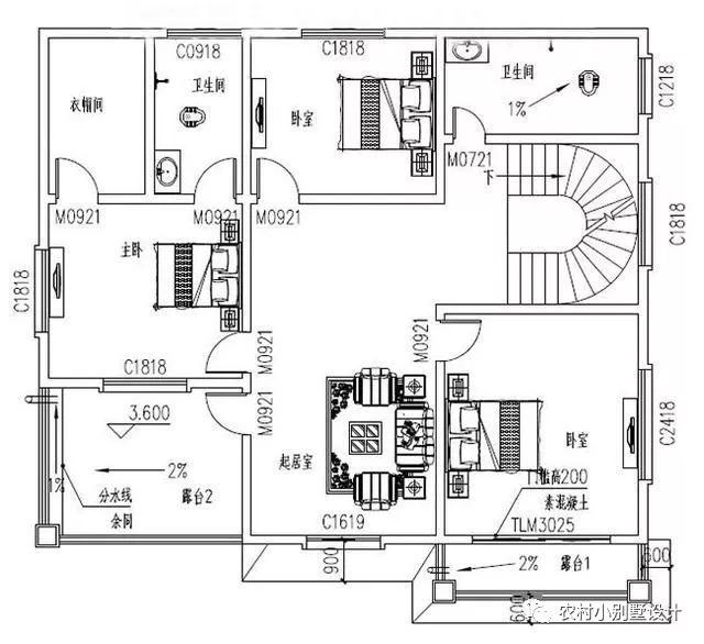
本戶型為兩層三間新農村住宅設計圖,精美的外墻,漂亮的造型符合80后、90后年輕人的審美,內部戶型設計合理,南北通透,采光,通風好,設計師把衛生間放到邊角恰到好處。
占地面積:13.0m*12.2m,155平方米左右;建筑高度:10.34米(含屋頂);
設計功能: 一層戶型設計:大堂、客廳、餐廳、廚房、臥室x2、衛生間; 二層戶型設計:客廳、主臥(帶衣帽間和衛生間)、臥室x2、衛生間、大露臺、陽臺;
農村建房新一代很多還是擺脫了老一代的假大空的建房理念,二層別墅也開始獨領風騷,以精致美觀成為農村一道美麗的風景線,農村現在人口少了很多自然不用擔心房間不夠住,一般家庭4到5個房間足夠,二層別墅足夠勝任,多余空間添置些提高生活品質的功能也是綽綽有余,那些光想拿高度勝過的人如意算盤就打空了,不說視覺上,單純從居住感受上落后的可不是一點點。今天帶來這套二層豪華別墅,已經有心急的朋友建好了,30w驚艷全村,實景圖比效果圖更棒! 圖紙之家-專注農村別墅/自建房設計18年,集合國內200余位經驗豐富的設計師,被評為口碑最好的農村建筑設計公司! |

12.8x10米二層自建房別墅設計圖,大氣美觀實用,建造無憂
占地:128平方米
二層農村別墅新風尚,簡約實用,性價比高,美麗又實惠
占地:126平方米
兩層中式三合院別墅設計圖紙,堂屋套臥全都有,蓋一棟面子十足
占地:181.93平方米
高端大氣三層半別墅客廳挑空設計,豪華農村自建房圖
占地:179.52平方米
140平方米新農村復式自建房子,三層別墅建筑圖紙及效果圖
占地:138平方米
最漂亮五間一層自建別墅設計圖,布局實用顏值高!
占地:多戶型可選
簡約大氣農村自建三層別墅設計圖,布局合理,很適合農村人自建
占地:139.471平方米
160平方米農村實用型二層自建小別墅設計施工圖紙15米*10米
占地:160平方米
平屋頂二層自建房帶商鋪別墅設計圖紙及外觀圖
占地:225平方米
帶車庫的新中式風格一層別墅設計圖,鳥語花香回家建房
占地:184平方米
經典四合院別墅設計圖,復式挑空客廳讓四合院更高端
占地:175平方米左右
建一棟就成了村里的門面擔當!三層歐式別墅,左右對稱太氣派
占地:173.67平方米
豪華別墅設計圖紙(含效果圖),三層歐式別墅方案精選
占地:117平方米
新中式農村自建三層別墅房屋施工,12x10米簡潔雅致
占地:121.77平方米
120平方房子設計圖帶效果圖,農村自建房戶型推薦
占地:120平方米
12x13米豪華三層農村別墅設計圖,宅基地上的貴族人生
占地:156平方米
兄弟雙拼四間三層別墅設計圖,農村自建推薦戶型方案
占地:260平方米
2026帶車庫三層雙拼別墅房屋設計圖,配色淡雅低調
占地:224平方米
最美農村一層合院設計圖紙,自建一棟火遍十里八鄉
占地:190平方米左右
地中海風格二層別墅房屋設計圖,帶外觀效果圖
占地:150平方米
推薦:10套新農村自建房設計圖,2026年最新設計
閱讀次數:4825737次
100套鄉村別墅圖片大全,2026年最新設計
閱讀次數:2492203次
6款農村蓋一層平房的設計圖,10萬元就能建起來
閱讀次數:1852637次
這11個一層農村自建房別墅火爆了朋友圈!我最喜歡戶型十!你呢
閱讀次數:750268次
農村6萬元建一層小別墅圖,你敢相信嗎
閱讀次數:567686次
農村5萬塊就能自建房,6套普通房子設計圖分享,你沒看錯!
閱讀次數:419410次
8套農村漂亮三間平房圖片,非常適合在農村修建!
閱讀次數:411197次
農村自建房化糞池怎么做?附方案及施工過程
閱讀次數:391783次
農村一層三間平房設計圖,告別土氣養老房,讓人忍不住點贊
閱讀次數:350581次
新農村二層樓房圖片造價12萬,挑一套回家建房吧!
閱讀次數:349126次
