
|
現在的農村人都喜歡在城市定居,但是隨著農村經濟的發展,很多人又想著攢錢回家建一棟別墅,或者和兄弟姐妹一起建一套雙拼別墅,一家人可以住在一起。今天給大家推薦兩套三層雙拼別墅,適合有這個想法的人,建成之后兄弟倆在村里肯定很有面子! 第一套
正面效果圖
鳥瞰效果圖
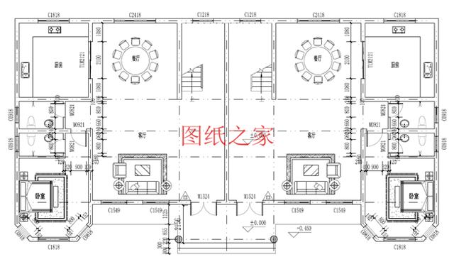
背面效果圖 占地面積:24.2m*12.7m,270平方米左右,單戶135平左右; 建筑層高:三層; 建筑高度:11.1米(含屋頂); 設計功能: 一層別墅戶型:客廳、餐廳、廚房、臥室(帶衛生間)、衛生間; 二層別墅戶型:客廳上空、臥室(帶衛生間)、臥室×2、衛生間、休閑區; 三層別墅戶型:臥室×3、衛生間、活動區、露臺;
一層平面圖
二層平面圖
三層平面圖 第二套
別墅效果圖 占地面積:18.0m*12m,210平方米左右,單戶105平左右; 建筑層高:三層; 建筑高度:13.2米(含屋頂); 設計功能: 一層別墅戶型:玄關、客廳、餐廳、廚房、臥室、衛生間; 二層別墅戶型:客廳上空、客廳、臥室×2、衛生間、陽臺×2; 三層別墅戶型:客廳、臥室×2、衛生間、露臺;
一層平面圖
二層平面圖
三層平面圖 這幾套別墅的設計圖,你最喜歡哪一套? 圖紙之家-專注農村別墅/自建房設計18年,集合國內200余位經驗豐富的設計師,被評為口碑最好的農村建筑設計公司! |

新中式三層雙拼別墅設計圖及效果圖,中式大氣風格
占地:235.26平方米
農村25萬元二層小樓圖,經典大氣建成20年不過時
占地:150平方米
帶架空層的兩層別墅設計圖,通透又明亮,建在農村絕對有面子
占地:106.79平方米
農村三合院設計圖及效果圖,自建三合院圖紙
占地:470平方米
農村自建三層別墅設計圖,開間17米進深13米,外觀對稱設計
占地:187.6平方米
帶地下室(車庫)的二層別墅設計圖,外觀效果圖時尚美觀
占地:149平方米左右
農村自建房10萬以下兩層別墅設計圖含外觀效果圖片
占地:105平方米
230平方米新農村二層自建別墅設計圖紙帶外觀圖,20X11米
占地:227平方米
農村兩間三層房屋設計圖,含外觀圖片
占地:120平方米
農村一層平房設計圖,人字坡戶型簡單大方,養老自住都不錯
占地:139.2平方米
農村15萬元二層小樓圖,占地100平米左右,簡單實用,戶型合理
占地:100平方米
平屋頂現代風格三層蓋別墅設計圖紙,面寬18米
占地:235.34平方米
一層中式仿古三合院設計圖,實用又大氣,百年不過時
占地:366.67平方米
造價40萬內三層別墅房屋設計方案,設計圖+外觀效果圖
占地:150平方米
氣派的帶旋轉樓梯三層別墅房屋設計圖,戶型很好
占地:150平方米
帶地下室的農村三層雙拼別墅設計圖,復式戶型,面寬23米
占地:261.6平方米左右
帶KTV的四開間的二層別墅設計圖,造型美觀經濟實用
占地:240.22平方米
小戶型三層別墅設計圖,戶型經典,外觀精致、美觀
占地:95平方米
13×16米農村自建樓房三層別墅戶型設計圖,大氣
占地:168平方米
農村自建二層樓房設計圖及效果圖,二層房屋圖推薦
占地:105平方米
推薦:10套新農村自建房設計圖,2026年最新設計
閱讀次數:4825737次
100套鄉村別墅圖片大全,2026年最新設計
閱讀次數:2492203次
6款農村蓋一層平房的設計圖,10萬元就能建起來
閱讀次數:1852637次
這11個一層農村自建房別墅火爆了朋友圈!我最喜歡戶型十!你呢
閱讀次數:750268次
農村6萬元建一層小別墅圖,你敢相信嗎
閱讀次數:567686次
農村5萬塊就能自建房,6套普通房子設計圖分享,你沒看錯!
閱讀次數:419410次
8套農村漂亮三間平房圖片,非常適合在農村修建!
閱讀次數:411197次
農村自建房化糞池怎么做?附方案及施工過程
閱讀次數:391783次
農村一層三間平房設計圖,告別土氣養老房,讓人忍不住點贊
閱讀次數:350581次
新農村二層樓房圖片造價12萬,挑一套回家建房吧!
閱讀次數:349126次
