
|
現在農村的生活條件好了,很多人都想給自家建一棟別墅,但是建房子可不是小事,必須找到好的設計還有可靠地施工隊。如果沒有好的圖紙,建出來的房子就顯得不倫不類,非常難看;施工隊不按圖施工,好看的設計也會建成土房子。 下邊給大家介紹5套簡單實用的三層別墅,占地140平方米左右,可以說是不會過時的經典戶型,一起來看看吧! 第一套
正面效果圖
鳥瞰效果圖
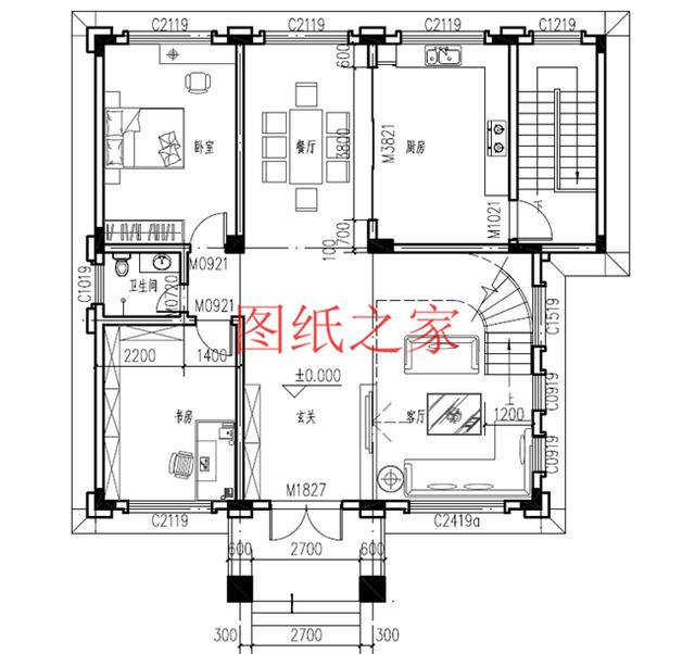
背面效果圖 占地面積:14.1m*10.0m,一層占地140平方米左右(含外門庭); 建筑層高:三層; 建筑高度:12.1米(含屋頂); 設計功能: 一層房屋戶型:客廳、廚房、餐廳、臥室×2、衛生間、車庫; 二層房屋戶型:客廳、臥室(帶衛生間,衣帽間)、臥室x2、衛生間、陽臺; 三層房屋戶型:臥室(帶衛生間,衣帽間)、臥室、衛生間、露臺;
一層平面圖
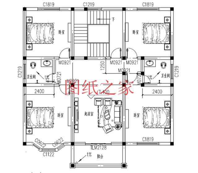
二層平面圖
三層平面圖 第二套
正面效果圖
鳥瞰效果圖
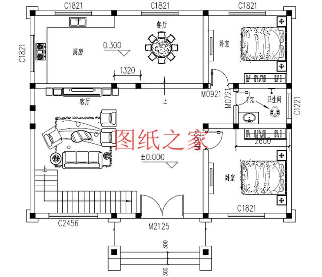
背面效果圖 占地面積:12.0m*12.8m,一層占地140平方米左右(含外門庭); 建筑層高:三層; 建筑高度:13.08米(含屋頂); 設計功能: 一層房屋戶型:客廳、廚房、餐廳、臥室(帶衛生間)、臥室、衛生間; 二層房屋戶型:起居室、臥室(帶衛生間)、臥室x3、衛生間、陽臺; 三層房屋戶型:起居室、臥室(帶衛生間)、臥室x3、衛生間、陽臺;
一層平面圖
二層平面圖
三層平面圖 第三套
正面效果圖
鳥瞰效果圖
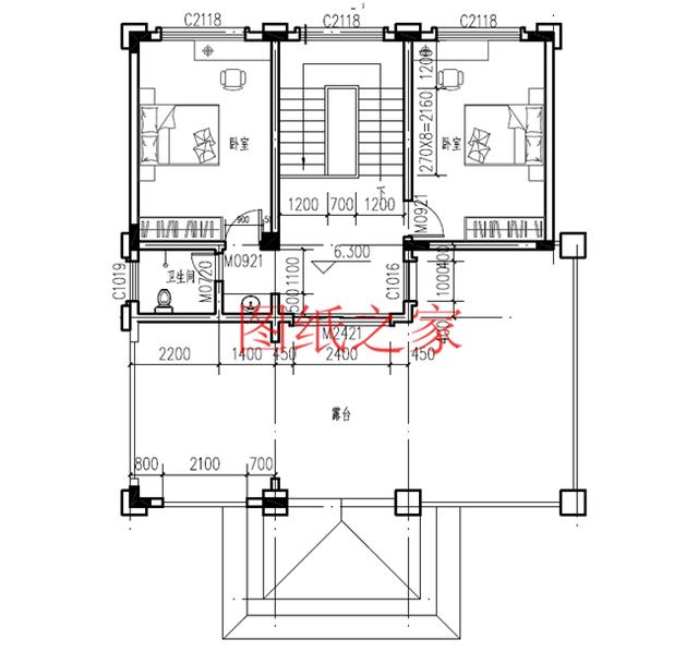
背面效果圖 占地面積:12.7m*14.1m,一層占地140平方米左右(含外門庭); 建筑層高:三層; 建筑高度:13.08米(含屋頂); 設計功能: 地下房屋戶型:功能自定義 一層房屋戶型:客廳、廚房、餐廳、臥室、書房、衛生間; 二層房屋戶型:客廳上空、小客廳、臥室(帶書房)、臥室x2、衛生間、陽臺; 三層房屋戶型:臥室x2、衛生間、大露臺;
地下平面圖
一層平面圖
二層平面圖
三層平面圖 第四套
正面效果圖
鳥瞰效果圖
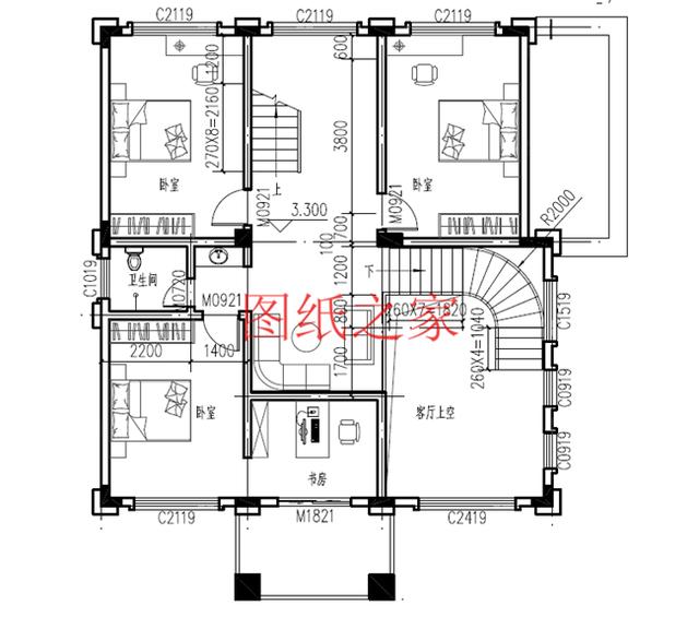
背面效果圖 占地面積:12.6m*11.6m,一層占地146平方米左右(含外門庭); 建筑層高:三層; 建筑高度:13.3米(含屋頂); 設計功能: 一層房屋戶型:客廳、廚房、餐廳、臥室×2、儲藏室、衛生間; 二層房屋戶型:客廳、小廳、臥室x3、衛生間、露臺; 三層房屋戶型:臥室、衛生間、多功能區域、大露臺;
一層平面圖
二層平面圖
三層平面圖 第五套
正面效果圖
鳥瞰效果圖
背面效果圖 占地面積:12.6m*11.8m,一層占地148平方米左右(含外門庭); 建筑層高:三層; 建筑高度:13.08米(含屋頂); 設計功能: 一層房屋戶型:客廳、廚房、餐廳、臥室×2、衛生間; 二層房屋戶型:客廳上空、休閑區、臥室x3、衛生間、陽臺; 三層房屋戶型:臥室x2、衛生間、書房、休閑區、儲藏間;
一層平面圖
二層平面圖
三層平面圖 這幾套別墅的設計圖,你最喜歡哪一套? 圖紙之家-專注農村別墅/自建房設計18年,集合國內200余位經驗豐富的設計師,被評為口碑最好的農村建筑設計公司! |

100平內的三層豪華歐式別墅房屋設計圖紙 ,簡歐風格
占地:94平方米左右
占地200平米簡歐三層農村別墅設計圖,既顯華麗又接地氣
占地:209.27平方米
帶中式小院的二層仿古別墅設計圖,小戶型自建房設計,外觀美極
占地:82.94
一層新中式三合院設計,建好城里大平層都不香了
占地:294.12平方米
經典三層別墅設計圖,時尚典雅美觀大氣,新農村自建的理想之選
占地:119.45平方米
高端三層豪宅別墅設計方案圖,帶地下室,過悠然愜意生活
占地:127.06平方米
二層現代別墅設計圖及效果圖,外觀美觀,大氣
占地:195平方米
陽臺封閉的簡約實用二層別墅設計圖,15x12.8米
占地:165平方米
現代風格二層別墅設計圖,外觀時尚、大氣
占地:153平方米
預算10萬的簡單二層半別墅房屋設計圖,外觀簡單,造價低
占地:90平方米
造價30萬多的三層簡歐新農村別墅設計施工圖紙及效果圖
占地:133平方米左右
四層農村別墅設計圖,一二層都有廚房和餐廳的戶型方案
占地:128.52平方米
占地200平米時尚現代三層農村別墅設計圖,簡簡單單百看不厭
占地:202.95平方米
三層新農村住宅房屋設計圖,溫馨美觀的戶型
占地:180平方米
新農村二層帶庭院的小別墅設計圖及效果圖
占地:137平方米
兩戶190平方米新農村雙拼別墅全套設計方案及效果圖
占地:191平方米
地中海風格二層別墅房屋設計圖,帶外觀效果圖
占地:150平方米
現代簡約時尚二層帶超大露臺農村別墅戶型,既可以休閑又可晾曬
占地:100.06平方米
時尚耐看現代二層農村別墅設計圖,14米×11米,年輕人建房的不二
占地:138.125平方米
大氣、簡約三層雙拼別墅設計圖,適合和父母同住,既相互關照又
占地:260平方米
推薦:10套新農村自建房設計圖,2026年最新設計
閱讀次數:4825737次
100套鄉村別墅圖片大全,2026年最新設計
閱讀次數:2492203次
6款農村蓋一層平房的設計圖,10萬元就能建起來
閱讀次數:1852637次
這11個一層農村自建房別墅火爆了朋友圈!我最喜歡戶型十!你呢
閱讀次數:750268次
農村6萬元建一層小別墅圖,你敢相信嗎
閱讀次數:567686次
農村5萬塊就能自建房,6套普通房子設計圖分享,你沒看錯!
閱讀次數:419410次
8套農村漂亮三間平房圖片,非常適合在農村修建!
閱讀次數:411197次
農村自建房化糞池怎么做?附方案及施工過程
閱讀次數:391783次
農村一層三間平房設計圖,告別土氣養老房,讓人忍不住點贊
閱讀次數:350581次
新農村二層樓房圖片造價12萬,挑一套回家建房吧!
閱讀次數:349126次
