
|
社會不斷向前發展,人們的觀念也隨之改變。以前農村自建房以獨棟別墅為主,但是現在由于宅基地面積減小,很多人也打算修建雙拼別墅。今天給大家推薦6套單戶面積在100平米以下的三層雙拼別墅,非常適合家里只有一塊宅基地的兄弟。每戶造價不到30萬,經濟又實用,父母也可以跟著享福! 第一套
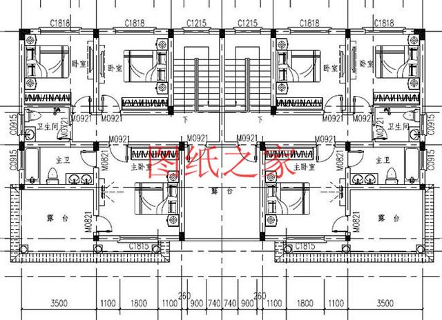
別墅效果圖 占地面積:15.0m*10.0m,150平方米左右,單戶75平左右; 建筑高度:12.30米(含屋頂); 設計功能: 一 層:客廳、廚房、餐廳、衛生間、儲藏室; 二 層:臥室x2(帶衛生間)、書房、衛生間、陽臺; 三 層:客廳、主臥(帶衛生間)、臥室、衛生間;
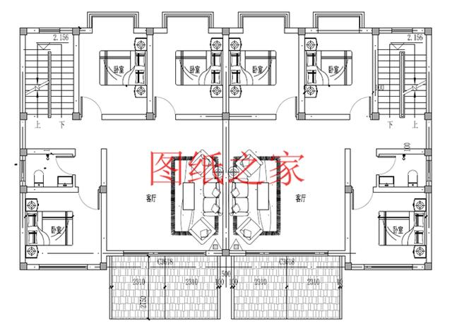
一層平面圖
二層平面圖
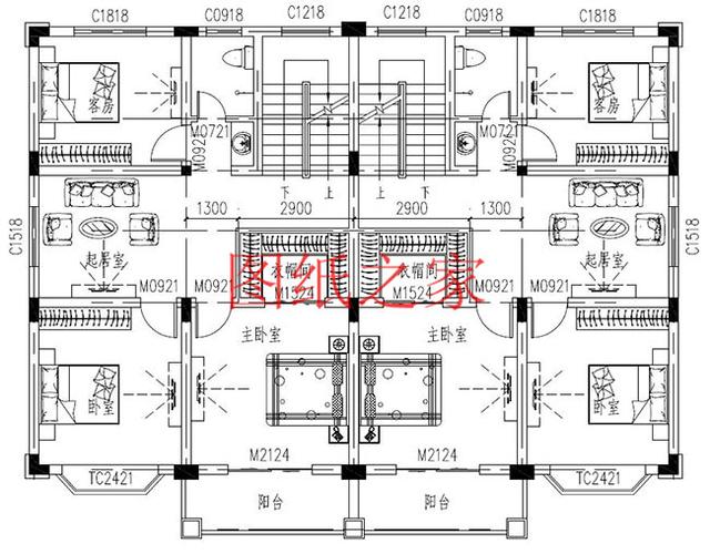
三層平面圖 第二套
正面效果圖
鳥瞰效果圖
背面效果圖 占地面積:16.0m*11.0m,176平方米左右,單戶88平左右; 建筑高度:11.7米(含屋頂); 設計功能: 一 層:客廳、餐廳、廚房、臥室、衛生間、儲藏間; 二 層:起居室、主臥(衣帽間,可以不建)、臥室x2、衛生間、陽臺; 三 層:臥室、衛生間、涼亭、大露臺;
一層平面圖
二層平面圖
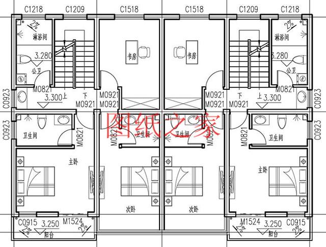
三層平面圖 第三套
正面效果圖
鳥瞰效果圖
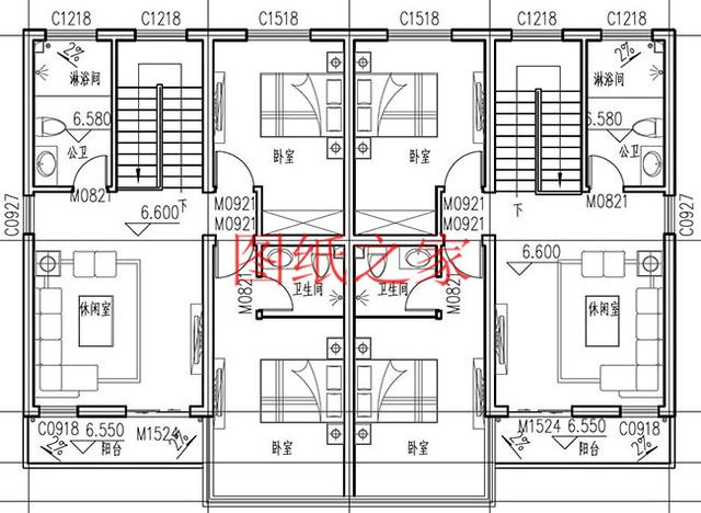
背面效果圖 占地面積:18.0m*10.6m,184平方米左右,單戶92平左右; 建筑高度:13.25米(含屋頂); 設計功能: 一 層:客廳、餐廳、廚房、臥室、衛生間; 二 層:客廳、臥室(帶衛生間)、臥室×3、衛生間; 三 層:臥室、娛樂室、衛生間、露臺;
一層平面圖
二層平面圖
三層平面圖 第四套
正面效果圖
鳥瞰效果圖
背面效果圖 占地面積:16.00m*12.00m,192平方米左右,單戶96平左右; 建筑高度:12.08米(含屋頂); 設計功能: 一 層:客廳、餐廳、廚房、衛生間、儲藏室、車庫(可以做成臥室); 二 層:主臥(帶衛生間)、臥室x2、衛生間、陽臺x2; 三 層:臥室x2、衛生間、大露臺;
一層平面圖
二層平面圖
三層平面圖 第五套
別墅效果圖 占地面積:18.8m*10.3m,194平方米左右,單戶97平左右; 建筑高度:11.30米(含屋頂); 設計功能: 一 層:門廳(共用、)、側門廳、客廳、廚房、餐廳、衛生間、主臥(帶衛生間)、臥室 二 層:客廳、儲物間、主臥(帶衛生間)、臥室x2(可以做書房)、陽臺、露臺 三 層:主臥(帶衛生間、帶露臺)、臥室x2(可以做書房)、衛生間、共用露臺
一層平面圖
二層平面圖
三層平面圖 第六套
別墅效果圖 占地面積:18.24m*10.68m,195平方米左右; 建筑高度:11.1米(含屋頂); 設計功能: 一 層:大堂、廚房、餐廳、臥室、衛生間、儲物間; 二 層:客廳、主臥(帶衛生間)、臥室、衛生間; 三 層:活動室、臥室、儲物間、衛生間、露臺;
一層平面圖
二層平面圖
三層平面圖 這幾套別墅的設計圖,你最喜歡哪一套? 圖紙之家-專注農村別墅/自建房設計18年,集合國內200余位經驗豐富的設計師,被評為口碑最好的農村建筑設計公司! |

90平方米農村二層房屋設計圖紙(施工圖+效果圖)
占地:90平方米
帶閣樓的一層半平房設計圖,比樓房還舒適,12米×13米
占地:170.1平方米
帶地下室三層復式別墅設計方案,全套設計圖+效果圖
占地:168平方米
農村自建三間三層樓房設計圖,帶露臺,經典實用
占地:135平方米
中國最美建筑四合院設計圖紙及效果圖,顏值爆棚
占地:152平方米左右
農村二層L戶型農村別墅!設計圖簡約時尚又大氣,住著超舒適
占地:170.55平方米
最新潮的90平方米三層房屋設計圖 ,古樸典雅又不失時尚
占地:90平方米
170平方米歐式農村兩層小別墅設計圖紙帶外觀圖,精致好看
占地:多種戶型
在農村30萬可以建造的三層別墅款式,帶別墅外觀圖片
占地:138平方米
最新小別墅設計圖,復式三層,外觀非常漂亮
占地:158平方米
農村二層半雙拼別墅設計圖,客廳中空,帶大露臺
占地:270平方米
戳中年輕人喜好!時尚三層自建房,簡約時尚設計,住著舒適自然
占地:169.76平方米
經典戶型二層農村小別墅設計圖,造價25萬內
占地:140平方米
占地105平實用三層樓房別墅設計圖紙,造型方正簡單大氣
占地:105平方米
帶地下室二層雙拼別墅設計圖,兄弟和睦又省錢,全家人都滿意!
占地:308平方米
豪華大氣農村三層別墅圖紙,帶車庫、露臺,占地200平方米左右
占地:207平方米
140平三層復式別墅設計圖及外觀效果圖
占地:140平方米
二層精美偏法式風格別墅設計圖,不但顏值高,品質還高
占地:154.17平方米
農村二層住宅樓房設計圖紙,全套方案(施工圖+效果圖)
占地:113平方米
80平方米農村四層房屋設計圖紙及效果圖
占地:80平方米
推薦:10套新農村自建房設計圖,2026年最新設計
閱讀次數:4825737次
100套鄉村別墅圖片大全,2026年最新設計
閱讀次數:2492203次
6款農村蓋一層平房的設計圖,10萬元就能建起來
閱讀次數:1852637次
這11個一層農村自建房別墅火爆了朋友圈!我最喜歡戶型十!你呢
閱讀次數:750268次
農村6萬元建一層小別墅圖,你敢相信嗎
閱讀次數:567686次
農村5萬塊就能自建房,6套普通房子設計圖分享,你沒看錯!
閱讀次數:419410次
8套農村漂亮三間平房圖片,非常適合在農村修建!
閱讀次數:411197次
農村自建房化糞池怎么做?附方案及施工過程
閱讀次數:391783次
農村一層三間平房設計圖,告別土氣養老房,讓人忍不住點贊
閱讀次數:350581次
新農村二層樓房圖片造價12萬,挑一套回家建房吧!
閱讀次數:349126次
