
|
現在有不少農村的朋友已經在老家蓋起了別墅,既是為了自己住得舒服,也是讓自己有面子。漂亮的小別墅在村里有很好的帶動效果,很多人也想給自己蓋上一棟,但是考慮到自家宅基地面積較小、手里的資金有限,怕自己蓋不了別墅。今天給大家推薦4套小戶型二層別墅,占地100平米左右,造價也不高,或許能幫這些朋友下定決心。 第一套
正面效果圖
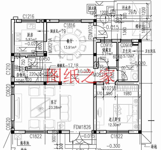
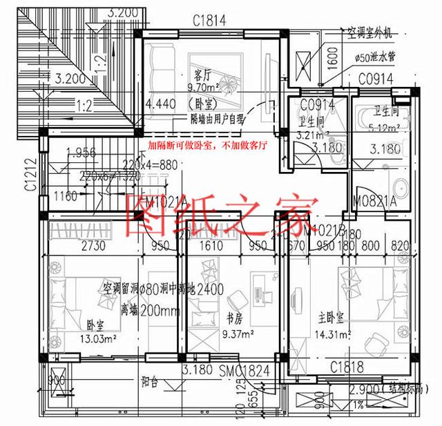
背面效果圖 占地面積:10.44m*9.14m,95平方米左右; 建筑高度:8米(含屋頂); 設計功能: 一層戶型:客廳、雜物間、餐廳、廚房、儲藏室、衛生間、老人房 二層戶型:主臥(帶衛生間)、書房、臥室、衛生間、客廳、陽臺
一層平面圖
二層平面圖 第二套
正面效果圖
鳥瞰效果圖
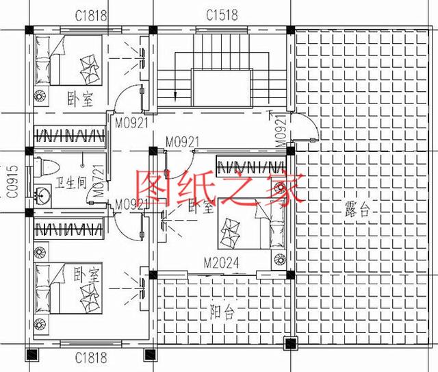
背面效果圖 占地面積:10.5m*9.9m,100平方米左右; 建筑高度:9.91米(含屋頂); 設計功能: 一層戶型:客廳、臥室x2、廚房、餐廳、衛生間 二層戶型:小客廳、臥室x4、衛生間、書房、陽臺
一層平面圖
二層平面圖 第三套
別墅效果圖 占地面積:11.6m*9.1m,105平方米左右; 建筑高度:9.31米(含屋頂); 設計功能: 一層戶型:客廳、臥室、廚房、餐廳、衛生間、儲物間 二層戶型:臥室x3、衛生間、大露臺、陽臺
一層平面圖
二層平面圖 第四套
別墅效果圖 占地面積:12.90m*8.2m,105平方米左右; 建筑高度:9.14米(含屋頂); 設計功能: 一層戶型:客廳、餐廳、廚房、衛生間、臥室、儲藏間、車庫; 二層戶型:臥室(帶衣帽間、衛生間)、臥室(帶衣帽間、衛生間)、露臺;
一層平面圖
二層平面圖 這幾套別墅的設計圖,你最喜歡哪一套? 圖紙之家-專注農村別墅/自建房設計18年,集合國內200余位經驗豐富的設計師,被評為口碑最好的農村建筑設計公司! |

帶院子的一層農村別墅設計圖,造價不高,養老房首選!
占地:144.819平方米
120平方三層房子設計圖,漂亮實用農村自建小別墅設計圖
占地:120平方米
經濟實用二層農村自建房設計圖,新中式風格12x11米
占地:114平方米
二層新農村自建房設計圖,帶外觀效果圖
占地:140平方米
鄉村最美四合院設計圖及外觀效果圖片,國人的理想住宅
占地:280.62平方米
四間兩層農村別墅戶型圖,外觀時尚色調搭配和諧,占地超200平米
占地:212.95平方米
中式三層新農村房子別墅設計圖,看了那么久,還是中式最有韻味
占地:97.2平方米
歐式漂亮農村三層自建房設計圖紙,兩個戶型方案可選
占地:多戶型可選
二層農村房屋設計圖紙,帶效果圖和全套施工方案圖
占地:多種戶型
占地百平農村三層戶型方案,簡約實用,獨具特色,理想新居等你
占地:105.61平方米
145平方米新農村二層別墅設計效果圖及施工圖,12.6米x11.4米
占地:147平方米
農村二層帶閣樓四間別墅設計圖,外觀美觀,戶型實用
占地:175平方米
田園風格別墅設計圖及外觀圖片,樓中樓結構
占地:140平方米
高端大氣三層別墅設計圖,建好就是村里最靚的
占地:120平方米
面寬20米農村自建房設計圖一層設計圖,五開間養老戶型
占地:194平方米
新農村小戶型4層自建房三層半別墅設計圖,平屋頂設計
占地:95平方米
簡約偏現代三層別墅設計圖紙及效果圖,鄉村蓋房推薦方案
占地:130平方米左右
農村20萬元二層小樓圖片及全套圖紙,外型美造價低
占地:多種戶型
新農村三層房屋設計圖紙(含效果圖),農村小別墅圖紙推薦
占地:116.15平方米
高端三層獨棟歐式別墅效果圖,帶大衛生間,CAD全套施工設計圖
占地:158平方米
推薦:10套新農村自建房設計圖,2026年最新設計
閱讀次數:4825737次
100套鄉村別墅圖片大全,2026年最新設計
閱讀次數:2492203次
6款農村蓋一層平房的設計圖,10萬元就能建起來
閱讀次數:1852637次
這11個一層農村自建房別墅火爆了朋友圈!我最喜歡戶型十!你呢
閱讀次數:750268次
農村6萬元建一層小別墅圖,你敢相信嗎
閱讀次數:567686次
農村5萬塊就能自建房,6套普通房子設計圖分享,你沒看錯!
閱讀次數:419410次
8套農村漂亮三間平房圖片,非常適合在農村修建!
閱讀次數:411197次
農村自建房化糞池怎么做?附方案及施工過程
閱讀次數:391783次
農村一層三間平房設計圖,告別土氣養老房,讓人忍不住點贊
閱讀次數:350581次
新農村二層樓房圖片造價12萬,挑一套回家建房吧!
閱讀次數:349126次
