
|
現在的農村不比以前,大家的生活水平越來越高,房子也一個比一個漂亮。村里的平房漸漸變少,二層別墅也算一般,三層的別墅才算亮眼。現在不少村子就和別墅區差不多,不同風格的小別墅精致漂亮,引人注目。 今天給大家推薦4套實用型農村三層別墅,占地130平造價只要三十萬,好設計不容錯過! 第一套
別墅效果圖一
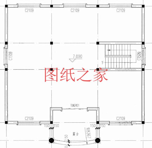
別墅效果圖二 占地面積:10.0m*13.5m,135平方米左右; 建筑層高:三層; 建筑高度:12.00米(含屋頂); 設計功能: 一 層:客廳、主臥(帶衛生間)、品茶室(可做臥室)、廚房、餐廳、衛生間、儲藏間(樓梯下); 二 層:客廳、主臥(帶衛生間)、臥室x2、衛生間(附淋浴房); 三 層:家庭活動房(健身房、棋牌室、家庭影院等)、主臥(帶衛生間)、臥室、屋面露臺;
一層平面圖
二層平面圖
三層平面圖 第二套
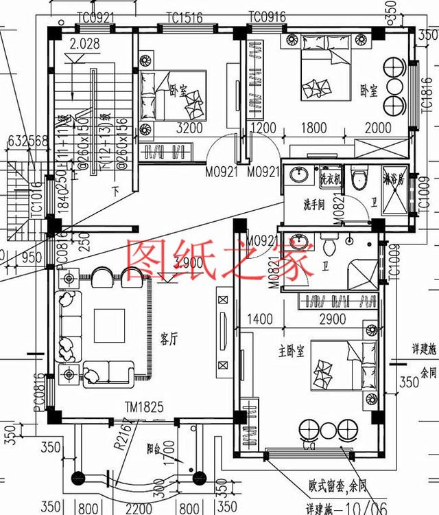
別墅效果圖 占地面積:11.40m*12.00m,一層建筑面積130平方米左右; 建筑層高:三層; 建筑高度:11.54米(含屋頂); 設計功能: 一 層:門廳、客廳、廚房、餐廳、臥室、衛生間、車庫; 二 層:客廳上空、主臥、臥室x3、衛生間、陽臺; 三 層:臥室x4、衛生間、曬衣間、露臺、陽臺;
一層平面圖
二層平面圖
三層平面圖 第三套
別墅效果圖 占地面積:11.2m*12.2m,136平方米左右; 建筑層高:三層; 建筑高度:12.00米(含屋頂); 設計功能: 一層:門廳、客廳、餐廳、廚房、臥室、衛生間、儲藏間、樓梯間、車庫(可做臥室); 二層:客廳、臥室(帶衛生間)、臥室(帶書房)、臥室、衛生間、露臺; 三層:活動廳、主臥(帶衛生間和衣帽間)、臥室x2、衛生間、大露臺、小露臺x2;(衣帽間可以不建,更寬敞)
一層平面圖
二層平面圖
三層平面圖 第四套
別墅效果圖 占地面積:13.0m*11.0m,140平方米左右; 建筑層高:三層; 建筑高度:11.41米(含屋頂); 設計功能: 一 層:客廳、廚房、餐廳、衛生間、臥室x2; 二 層:客廳(可以去掉隔斷)、臥室x4、棋牌室、衛生間、陽臺; 三 層:根據需求自行隔斷;
一層平面圖
二層平面圖
三層平面圖 圖紙之家-專注農村別墅/自建房設計18年,集合國內200余位經驗豐富的設計師,被評為口碑最好的農村建筑設計公司! |

最新款二層鄉下別墅設計圖,新中式風格,24萬建好主體
占地:150.94平方米
經濟實用二層樓房設計圖紙,功能布局多,12×11米
占地:130平方米
二層精美偏法式風格別墅設計圖,不但顏值高,品質還高
占地:154.17平方米
150平農村二層復式別墅房屋設計方案圖,帶外觀效果圖片
占地:150平方米
275平方米新農村雙拼樓中樓戶型別墅設計圖紙及效果圖21X14米
占地:275平方米
農村120平米三間三層樓房設計圖紙,農村理想住房設計圖
占地:120平方米
簡簡單單一層農村自建別墅方案,布局緊湊又不擁擠
占地:133.55平方米
新農村三層房屋設計圖紙(含效果圖),農村小別墅圖紙推薦
占地:116.15平方米
新農村二層小別墅全套設計圖紙(含外觀效果圖)
占地:85.6平方米
農村15萬元二層小樓設計圖,外觀簡潔、樸素,造價低
占地:138平方米
農村二層半別墅設計圖,簡單實用,造價低
占地:140平方米
100平方米農村二層CAD設計圖紙帶外觀圖,12X8米
占地:100平方米
面寬8米也能建別墅,小面寬農村三層別墅設計圖
占地:93.83平方米
160-170平方米二層自建別墅設計CAD圖紙帶效果圖,田園風
占地:167平方米左右
95平米二層別墅必蓋戶型圖,造型洋氣,布局接地氣,趕緊回村建
占地:95.38平方米
農家中式小院一層三合院自建房,布局寬敞大氣又舒適
占地:186.07平方米
造價33萬左右超漂亮的三層別墅圖紙設計圖,旋轉樓梯戶型設計
占地:121.59平方米
外觀高檔大氣的三層別墅房屋設計圖,高端別墅設計展示
占地:147平方米
農村三層雙拼別墅戶型圖及全套施工圖紙,帶書房,帶衣帽間
占地:260平方米
村里三層新中式風自建別墅圖,對稱設計,氣派好看
占地:135.3平方米
推薦:10套新農村自建房設計圖,2026年最新設計
閱讀次數:4825737次
100套鄉村別墅圖片大全,2026年最新設計
閱讀次數:2492203次
6款農村蓋一層平房的設計圖,10萬元就能建起來
閱讀次數:1852637次
這11個一層農村自建房別墅火爆了朋友圈!我最喜歡戶型十!你呢
閱讀次數:750268次
農村6萬元建一層小別墅圖,你敢相信嗎
閱讀次數:567686次
農村5萬塊就能自建房,6套普通房子設計圖分享,你沒看錯!
閱讀次數:419410次
8套農村漂亮三間平房圖片,非常適合在農村修建!
閱讀次數:411197次
農村自建房化糞池怎么做?附方案及施工過程
閱讀次數:391783次
農村一層三間平房設計圖,告別土氣養老房,讓人忍不住點贊
閱讀次數:350581次
新農村二層樓房圖片造價12萬,挑一套回家建房吧!
閱讀次數:349126次
