
|
今天分享給大家的是10套農村自建房別墅戶型,兩層,三層都有,中式西式全含,您可以挑一套您喜歡的,作為您自建房的設計基礎。您也可以對這些戶型提出意見,大家評論最實用的一套,我們會將戶型根據大家意見調整,細化,并配上3d效果圖,立面圖及平面圖,如新農村實用自建房雙拼戶型 24米X11米 戶型效果平面圖。
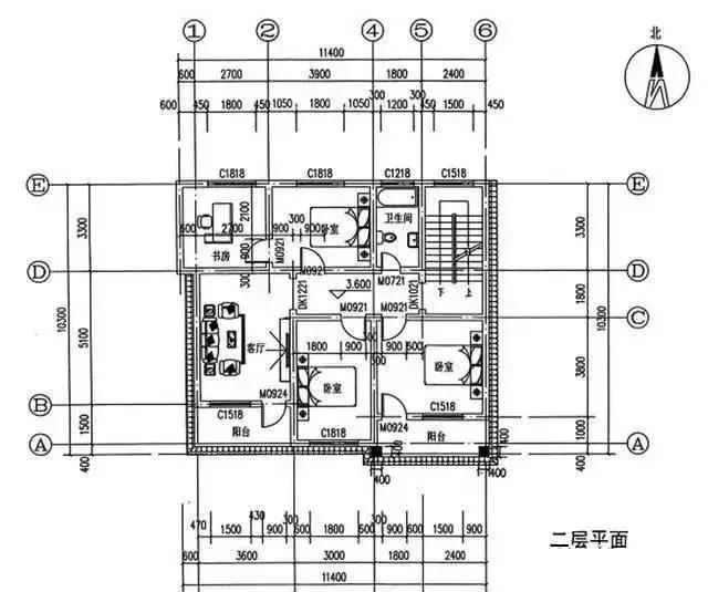
戶型一 長寬:11.4×10.3米; 建筑面積:208平方米;
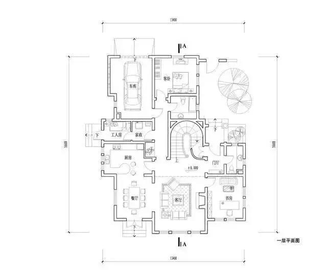
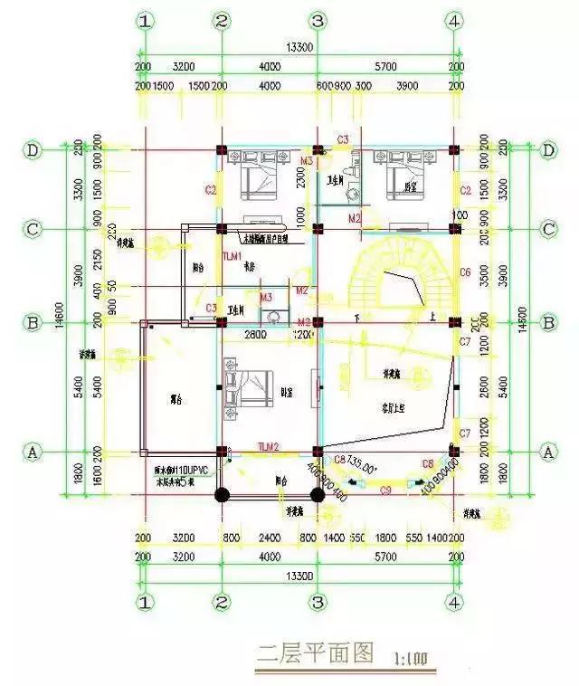
戶型二 長寬:13.32×13.72米; 建筑面積:316平方米;
點擊免費下載海量工程資料
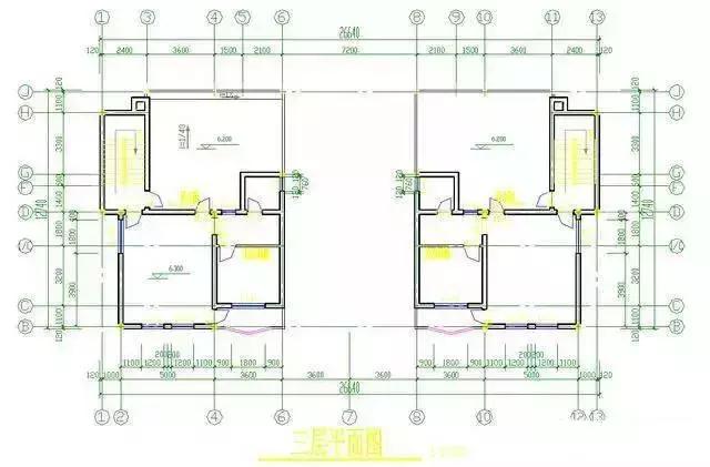
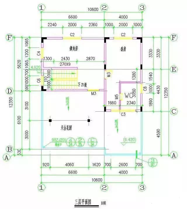
戶型三 長寬:10.66×12.35米; 建筑面積:323平方米;
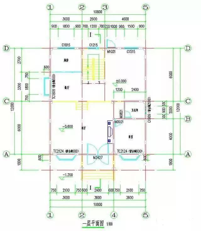
戶型四 長寬:12×14.6米; 建筑面積:324平方米;
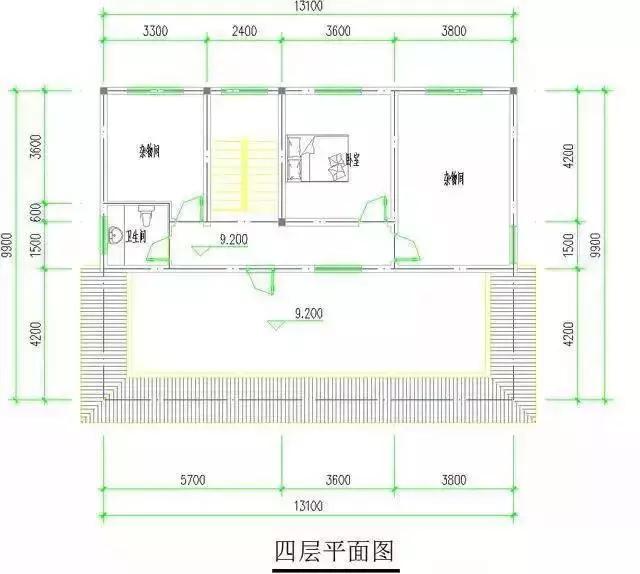
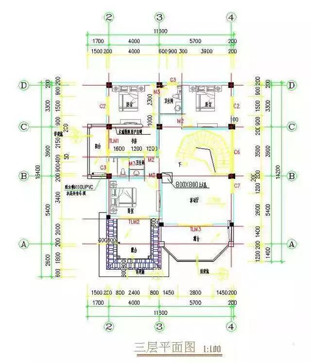
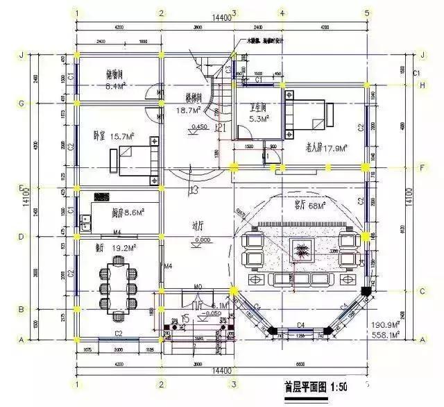
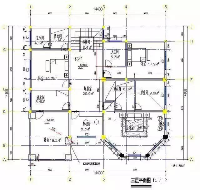
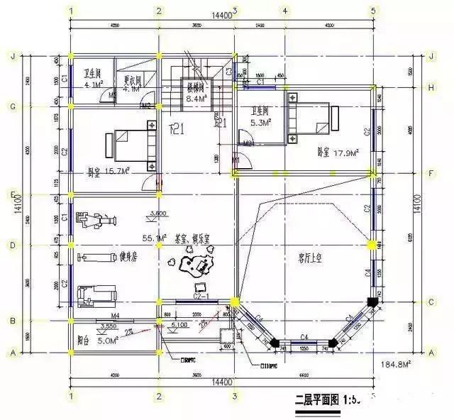
戶型五 長寬:14.4×14.1米; 建筑面積:560平方米;
戶型六 長寬:14.4×13.6米; 建筑面積:268平方米;
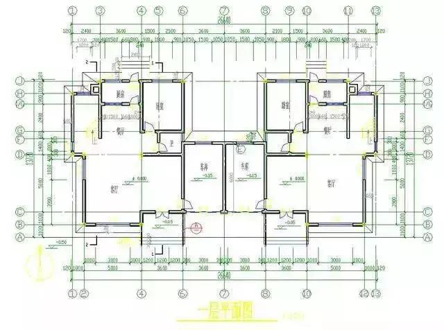
戶型七 長寬:13.3×14.6米; 建筑面積:366平方米;
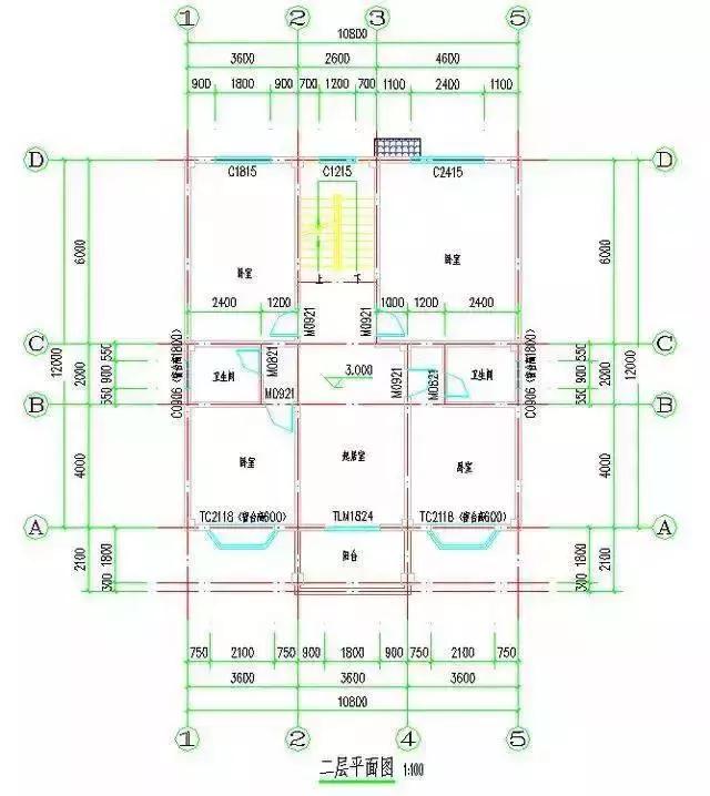
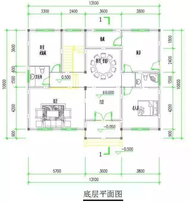
戶型八 長寬:13.1×10.8米; 建筑面積:492平方米;
點擊免費下載海量工程資料
戶型九 長寬:10.5×10.2米; 建筑面積:265平方米;
戶型十 長寬:10.8×12米; 建筑面積:460平方米;
![]()
圖紙之家-專注農村別墅/自建房設計18年,集合國內200余位經驗豐富的設計師,被評為口碑最好的農村建筑設計公司! |

200平米二層自建房別墅設計圖,外觀漂亮布局實用
占地:207.09平方米
12x12農村三層別墅設計圖,自建房屋推薦戶型
占地:148平方米
農村一層四開間養老別墅設計圖,造型美布局佳
占地:164.27平方米
二層樓房設計圖,占地120平米左右,符合現代農村的建房政策
占地:120平方米
140平一層平房別墅設計圖,兩客廳兩衛四臥室
占地:140平方米
農村小別墅一層設計圖紙,外觀漂亮極了,130和160兩個戶型
占地:多種戶型可選
農村簡易二層樓設計圖,外觀簡單漂亮,經典時尚
占地:140平方米
農村中式四合院房屋圖片及設計圖,白墻黛瓦的江南風格
占地:337平方米
一層半中式合院別墅設計圖,帶配房,有庭有院有品位
占地:135平方米左右
簡單實用新農村三層住宅房屋設計圖,時尚大氣,低調
占地:140平方米
農村小別墅一層設計圖紙,全套施工圖兩款戶型可選
占地:多種戶型可選
農村二層半新中式小別墅設計圖(帶閣樓層),二層半自建房戶型
占地:144平方米
七字形農村自建房二層設計圖,“L”型別墅設計,簡約時尚!
占地:209平米左右
面寬8米農村二間二層小別墅設計方案,施工簡單造價低
占地:73.77平方米
共用中堂雙拼兄弟三層別墅設計圖,簡歐式風格
占地:230平方米
二層小別墅設計方案圖,平頂設計帶cad施工圖和外觀效果圖
占地:147平方米
140平方米現代偏中式實用型三層房屋設計圖紙,新農村建房推薦
占地:142平方米
兩層樓房設計圖,兩層新農村樓房圖紙,外觀典雅古樸
占地:140平方米
歐式豪華三層別墅設計圖,占地面積170平米,高端大氣帶露臺
占地:170平方米
2026新農村三層雙拼房屋設計圖紙平面圖與效果圖,帶堂屋
占地:190平方米
推薦:10套新農村自建房設計圖,2026年最新設計
閱讀次數:4825737次
100套鄉村別墅圖片大全,2026年最新設計
閱讀次數:2492203次
6款農村蓋一層平房的設計圖,10萬元就能建起來
閱讀次數:1852637次
這11個一層農村自建房別墅火爆了朋友圈!我最喜歡戶型十!你呢
閱讀次數:750268次
農村6萬元建一層小別墅圖,你敢相信嗎
閱讀次數:567686次
農村5萬塊就能自建房,6套普通房子設計圖分享,你沒看錯!
閱讀次數:419410次
8套農村漂亮三間平房圖片,非常適合在農村修建!
閱讀次數:411197次
農村自建房化糞池怎么做?附方案及施工過程
閱讀次數:391783次
農村一層三間平房設計圖,告別土氣養老房,讓人忍不住點贊
閱讀次數:350581次
新農村二層樓房圖片造價12萬,挑一套回家建房吧!
閱讀次數:349126次
