
|
城里有棟房子的意義就是上班要方便一點,如果條件允許的話,如果我家離上班地方不算太遠的話,我肯定選擇在老家建房子住,這樣才瀟灑。兩棟很氣派的四層農村自建房,第二棟看了讓城里的別墅都是自愧不如啊! 第一棟別墅:建房尺寸19×13米,外墻用米白色的面磚來裝飾,屋頂蓋紅色琉璃瓦,造型很大氣。
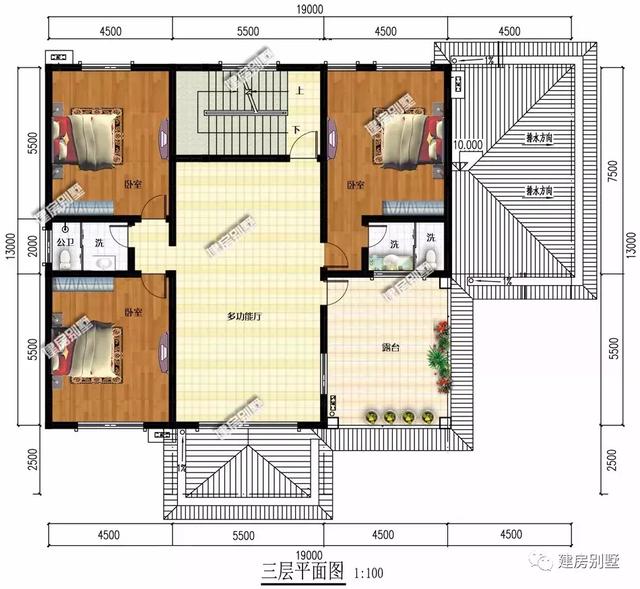
平面布局說明:一層三室兩廳一廚兩衛,客廳空間很大,可以擺幾桌酒席了,主臥帶獨衛,樓梯下做了個儲物間;二層三室兩廳一廚兩為,室內還有書房、休閑娛樂室、儲物室等等;三層三室一廳兩衛,室內配有多功能休閑廳,室外有露臺;四層兩室一廳兩衛,室外有露臺。
第二棟豪華四層住宅:建房尺寸是18.3×11.1米,框架結構,外墻色調搭配柔和。
平面布局說明:一層一室兩廳一廚兩衛,主臥帶獨衛和衣帽間,配有休閑娛樂室一個,開放式的車庫,看起來很是現代化;二層就兩間臥室一個客廳,室外有陽臺,如果我家有一個這樣的臥室,那數量不多也是可以的;三層兩間臥室配有健身房和露臺;四層安排了三間臥室按照具體的需要來布置。
如果我家能有一棟這樣的房子,走出去別提多有面子了。 圖紙之家-專注農村別墅/自建房設計18年,集合國內200余位經驗豐富的設計師,被評為口碑最好的農村建筑設計公司! |

經典農村二層小別墅設計圖紙帶露臺(含外觀效果圖)
占地:110平方米
經典的農村三層小樓房設計圖,外觀圖片時尚、精致
占地:100平方米
預算10萬左右新農村自建房屋設計圖紙,帶效果圖
占地:82平方米
面寬不到10米的小戶型自建房戶型圖,全套設計圖紙可施工
占地:123.2平方米左右
面寬9米的三層農村自建房設計圖,適合鄉下地區自建
占地:121.94平方米
精致簡歐一層別墅設計圖,經典大氣百看不厭
占地:139.57平方米
獨立餐廳廚房,平屋頂現代風格三層別墅設計圖
占地:159.02平方米
90平方米新農村住宅設計二層小別墅設計圖紙11x9米
占地:90平方米
2026最火的現代別墅設計圖農村三層戶型,帶地下室
占地:119.79平方米
農村200平一層別墅房屋設計圖,外觀圖片時尚、漂亮
占地:200平方米
簡單大氣的農村二層樓設計圖,二層歐式農村別墅設計圖
占地:180平方米
大氣的150平方米新中式三層別墅建筑圖及效果圖
占地:150平方米左右
130平左右三層樓房設計圖,新農村住宅自建推薦
占地:128平方米
農村一層小別墅設計圖,經濟大氣,16米乘9米
占地:124.12平方米
最新歐式三層別墅設計圖紙,超漂亮,預算30到40萬
占地:160平方米
農村蓋房設計大全一層房子的設計圖紙,色調清新靚麗
占地:220平方米
100平方米自建房二層設計圖紙及效果圖,12x9米
占地:100平方米
新中式農村三層四合院別墅設計圖,四合院風格的別墅圖
占地:177平方米
農村二層樓建房造型圖及全套施工圖紙,占地110平米左右,帶地下
占地:110平方米
80平方米新農村二層房屋設計圖紙,造價15萬左右
占地:80平方米
推薦:10套新農村自建房設計圖,2026年最新設計
閱讀次數:4825737次
100套鄉村別墅圖片大全,2026年最新設計
閱讀次數:2492203次
6款農村蓋一層平房的設計圖,10萬元就能建起來
閱讀次數:1852637次
這11個一層農村自建房別墅火爆了朋友圈!我最喜歡戶型十!你呢
閱讀次數:750268次
農村6萬元建一層小別墅圖,你敢相信嗎
閱讀次數:567686次
農村5萬塊就能自建房,6套普通房子設計圖分享,你沒看錯!
閱讀次數:419410次
8套農村漂亮三間平房圖片,非常適合在農村修建!
閱讀次數:411197次
農村自建房化糞池怎么做?附方案及施工過程
閱讀次數:391783次
農村一層三間平房設計圖,告別土氣養老房,讓人忍不住點贊
閱讀次數:350581次
新農村二層樓房圖片造價12萬,挑一套回家建房吧!
閱讀次數:349126次
