
|
目前農村自建房傾向于建造歐式風格的戶型,因為歐式風格的房子總能給人奢華大氣感,不過這種戶型在造價上也不低,簡單的歐式風格反而更受廣大建房者的喜愛,今天小編挑選了一款清爽大方的簡歐90平米實用型帶露臺農村三層自建房設計圖,預算不到25萬!一起來看看! 圖紙詳情 層數: 三層結構形式: 框架結構主體造價:20萬 開間: 8.1米進深: 10.5米占地面積: 89.6平方米建筑面積: 194.94平方米
效果圖 這套戶型配色清新優雅,清爽的薄荷綠給人一種舒適的視覺感受,與農村周邊的綠色融為一體,接地氣的戶型設計一點也不復雜,對于農村建房來說,這一款可以說是比較經濟實用的戶型,主體預算20萬左右就可以建成! 設計功能
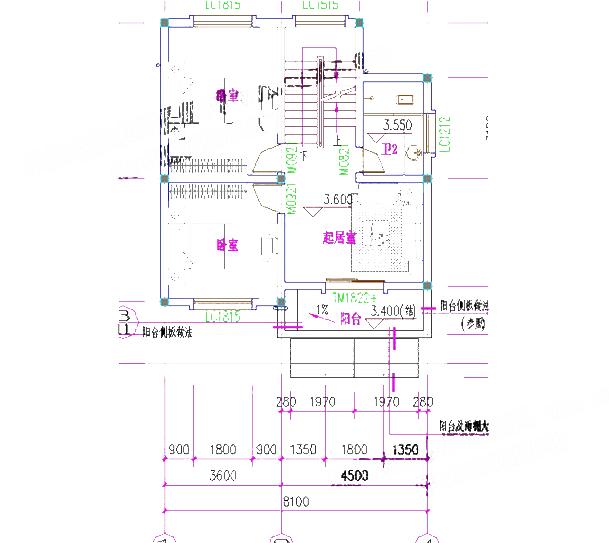
一 層:廚房、老人房、堂前、衛生間、農具間
二層平面圖 二 層:臥室、主臥、起居室、衛生間 三 層:客臥、曬臺、儲藏室、衛生間 圖紙之家-專注農村別墅/自建房設計18年,集合國內200余位經驗豐富的設計師,被評為口碑最好的農村建筑設計公司! |

外觀看起來高端、奢華的二層小別墅設計圖,推薦
占地:130平方米
170平米自建三層房屋別墅設計圖紙及效果圖
占地:170平米
三層小別墅40萬造價,大氣農村三層新中式自建房設計圖紙
占地:171.656平方米
面寬11米超實用的農村一層別墅設計圖,南北通透造價不高
占地:110.47平方米
2026二層農村新款別墅新式二層樓房設計圖,非常時尚
占地:多種戶型
七字型一層平房別墅設計圖紙,15X16米
占地:177.9平方米
精致農村別墅圖,150平米一層三合院設計,四臥二廳舒適宜居
占地:149.43平方米
150平米二層鄉村小別墅圖,戶型合理,外觀清新淡雅
占地:150平方米
120平方房子設計圖,農村120平建房設計圖推薦
占地:122平方米
四層(三層半)豪華歐式別墅房屋設計圖,外觀高端、大氣
占地:150平方米
面寬20米四開間二層別墅,火爆全村的戶型,美好生活的起點
占地:245.73平方米
帶雙車庫的新中式二層四合院別墅設計圖,戶型布局實用
占地:321平方米
鄉村三層別墅施工圖紙帶效果圖,田園別墅設計圖紙推薦
占地:178平方米
2026年獨棟三層雙拼別墅戶型圖,總占地面積300平方米左右
占地:300平方米
160平方米二層平屋頂房屋設計圖紙及效果圖17x11米
占地:164平方米
人氣頗高的三層新中式別墅方案,五種戶型,五種尺寸
占地:120-165平方米
兩間二層農村自建房設計圖,面積雖小功能齊全,布局緊湊。
占地:118.75平方米
仿古建筑中式祠堂設計圖紙及外觀效果圖
占地:546平方米
農村二層帶閣樓四間別墅設計圖,外觀美觀,戶型實用
占地:175平方米
復式別墅農村四層霸氣豪宅設計圖紙,建好你就是村里第一
占地:136.356平方米
推薦:10套新農村自建房設計圖,2026年最新設計
閱讀次數:4825737次
100套鄉村別墅圖片大全,2026年最新設計
閱讀次數:2492203次
6款農村蓋一層平房的設計圖,10萬元就能建起來
閱讀次數:1852637次
這11個一層農村自建房別墅火爆了朋友圈!我最喜歡戶型十!你呢
閱讀次數:750268次
農村6萬元建一層小別墅圖,你敢相信嗎
閱讀次數:567686次
農村5萬塊就能自建房,6套普通房子設計圖分享,你沒看錯!
閱讀次數:419410次
8套農村漂亮三間平房圖片,非常適合在農村修建!
閱讀次數:411197次
農村自建房化糞池怎么做?附方案及施工過程
閱讀次數:391783次
農村一層三間平房設計圖,告別土氣養老房,讓人忍不住點贊
閱讀次數:350581次
新農村二層樓房圖片造價12萬,挑一套回家建房吧!
閱讀次數:349126次
