
|
說起農村的美妙風景,人們想起的一定是青山碧水稻花香,殊不知現在的農村漂亮的建筑,也成了農村別樣的風景 對很多人來說,家是這個世界上最重要的地方,這就不難理解,為何有人愿意,找最好的設計,使用最好的材料,請最專業的施工,花費時間和金錢在建房這件事情上,目的很簡單,就是把自己的家過成理想的樣子。
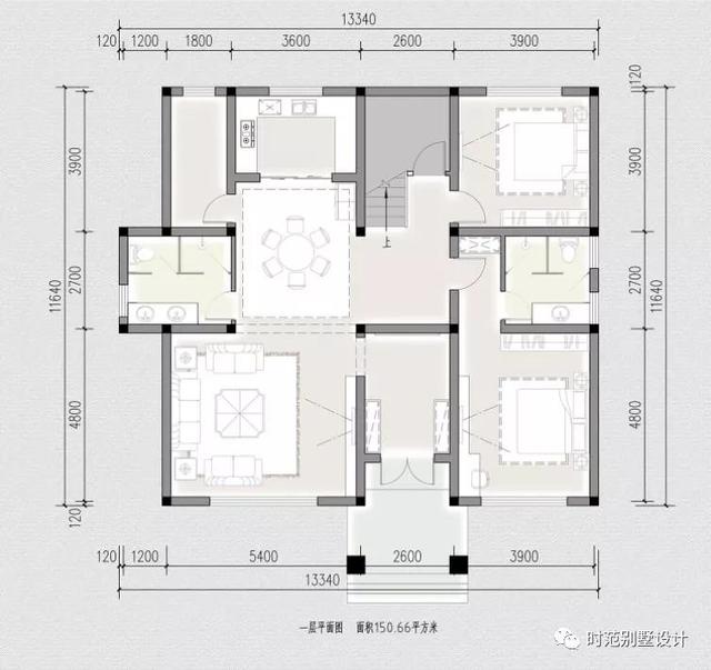
這款別墅占地150平,開間13.3,進深11.6,磚混結構,淡黃色外墻時尚的結合,超大的落地玻璃窗有著良好的通風采光效果,高挑門廳和拱形的門廊,盡顯優雅大方。
色彩清新淡雅,富有時代的韻味;房間尺度設計適宜,空間利用率高,明廚明衛,各使用空間都有較好的采光通風。
一層設門廳玄關,客廳、餐廳、廚房、兩間臥室、兩間衛生間,一間儲物間。 客廳空間寬敞,客餐廳和門廳設置柔性隔斷,但又未完全分隔開來,空間開闊無壓抑感,無論是成人聊天聚會,還是孩童嬉笑打鬧,都有足夠的空間。 一層設置臥室,朝南主臥設有衛生間,夜晚上廁所方便,可以作老人房使用。
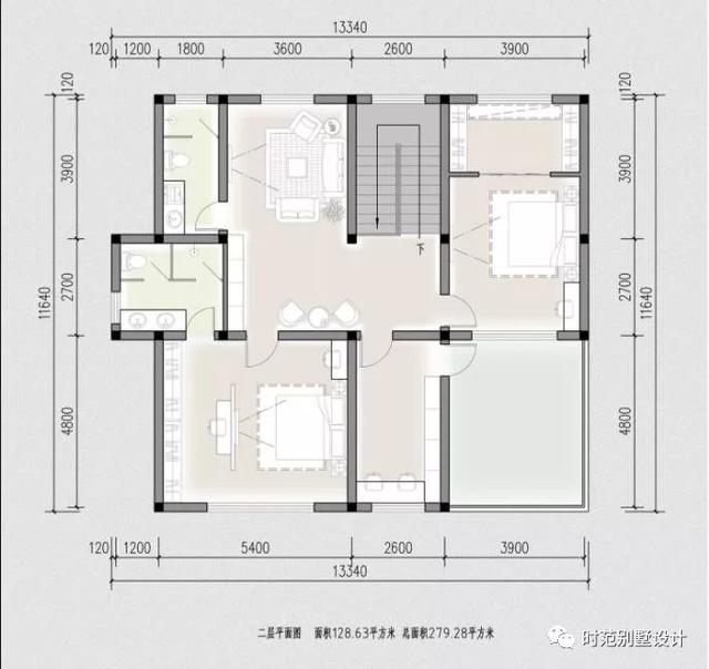
二層:二層為主要的居住空間,設置兩間臥室,一間書房,,兩間衛生間,一個露臺,一個陽臺,兩間臥室分布在不同方位,避免夜間相互干擾, 其中一間主臥室帶有獨立衛生間、衣帽間,私密性強,居住體驗得到全面升級,最大程度的保留了隱私性。 業主可以在看書或者工作到夜深時能夠立馬回臥室休息。衣帽間則可以為女主人最愛的衣服和包包提供專屬的小天地。 設置朝南露臺和陽臺,晾曬乘涼都很方便。大的露臺適合種植花草,陶冶情操,陽光充足,花香自來四季的田園都可以被揉進一座房子里。 室內示例: 臥室:
書房:
圖紙之家-專注農村別墅/自建房設計18年,集合國內200余位經驗豐富的設計師,被評為口碑最好的農村建筑設計公司! |

新農村兄弟合建三層雙拼房屋設計方案圖,開間18米有全套圖紙
占地:237.21平方米
私人經濟小別墅設計圖,農村自建小洋樓100平左右戶型
占地:104平方米
兄弟雙拼三層小戶型別墅設計圖紙,160平方米(單戶80平)
占地:163平方米
平屋頂現代風格三層蓋別墅設計圖紙,面寬18米
占地:235.34平方米
2026新款四層樓房設計圖,占地120平方米左右,客廳中空
占地:120平方米
實用農村三層房屋設計圖紙,效果圖+全套施工圖
占地:113平方米
12×12米農村二層經濟型自建房設計圖,設計了6間臥室
占地:140平方米
110平方米新農村三層房屋設計圖紙,含效果圖,帶車庫
占地:113平方米
客廳中空的三層豪華小別墅設計圖,時尚靚麗,鄉下建一棟有面子
占地:171.25平方米
農村自建超漂亮中式四合院別墅設計圖,22X25米
占地:473平方米
三層新農村住宅設計圖及效果圖,三層樓房設計圖展示
占地:140平方米
居家養老一層別墅設計圖,面寬20米,農村建一棟不吃虧
占地:259.7平方米
300平方二層別墅四合院設計圖紙方案(效果圖+施工圖)
占地:332平方米
新中式三層樓房設計圖紙,帶地下室,地下車庫,帶電梯
占地:230平方米
簡歐復式四層別墅房屋設計圖,外觀圖高端、大氣
占地:143平方米
歐式三層樓中樓別墅設計圖紙帶車庫(含外觀效果圖)
占地:130平方米
新款三層豪華大氣歐式別墅設計圖,3種戶型設計方案
占地:125平方米左右
新農村中式一層三合院效果圖及全套設計圖,喜歡合院的有福了
占地:118平方米
超大氣的農村一層雙拼自建別墅設計方案,絕對讓人羨慕的“平房
占地:424平方米
120平方米帶地下室三層復式別墅戶型圖,現代風格
占地:120.78平方米左
推薦:10套新農村自建房設計圖,2026年最新設計
閱讀次數:4825737次
100套鄉村別墅圖片大全,2026年最新設計
閱讀次數:2492203次
6款農村蓋一層平房的設計圖,10萬元就能建起來
閱讀次數:1852637次
這11個一層農村自建房別墅火爆了朋友圈!我最喜歡戶型十!你呢
閱讀次數:750268次
農村6萬元建一層小別墅圖,你敢相信嗎
閱讀次數:567686次
農村5萬塊就能自建房,6套普通房子設計圖分享,你沒看錯!
閱讀次數:419410次
8套農村漂亮三間平房圖片,非常適合在農村修建!
閱讀次數:411197次
農村自建房化糞池怎么做?附方案及施工過程
閱讀次數:391783次
農村一層三間平房設計圖,告別土氣養老房,讓人忍不住點贊
閱讀次數:350581次
新農村二層樓房圖片造價12萬,挑一套回家建房吧!
閱讀次數:349126次
