
|
農村人大都熱情好客,對他們來說,建房一定要有接待客人的地方,甚至逢年過節的還要留客人住幾天,所以家里的房間一定要多。這種情況下,一層的平房就不太實用,三層房間太多又太浪費,二層別墅就是最合適的選擇了。今天給大家介紹5套大戶型二層別墅,占地140平方米,造價只要20萬左右,經濟又實用,非常受大家的歡迎! 第一套
正面效果圖
鳥瞰效果圖
背面效果圖 占地面積:14.0m*10.0m,140平方米左右; 建筑層高:二層; 建筑高度:9.48米(含屋頂); 設計功能: 一層別墅戶型:門廳、客廳、廚房、餐廳、衛生間、臥室x2、儲藏間; 二層別墅戶型:起居室、臥室x2、書房、衛生間、大露臺;
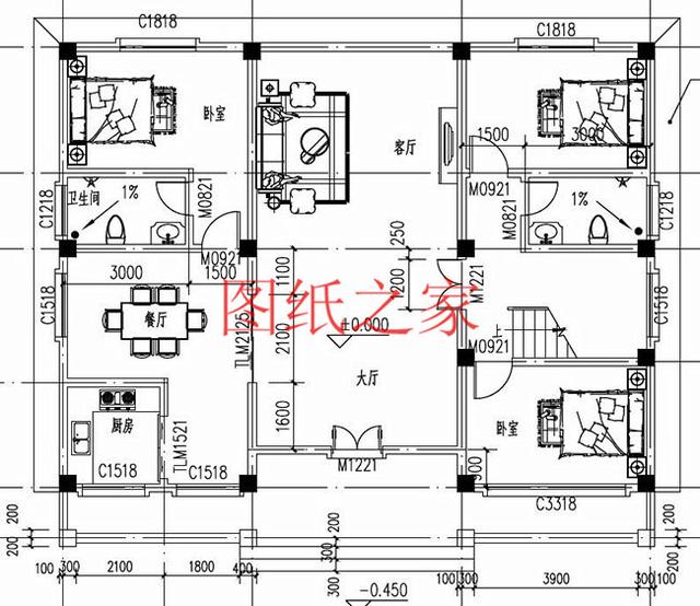
一層平面圖
二層平面圖 第二套
正面效果圖
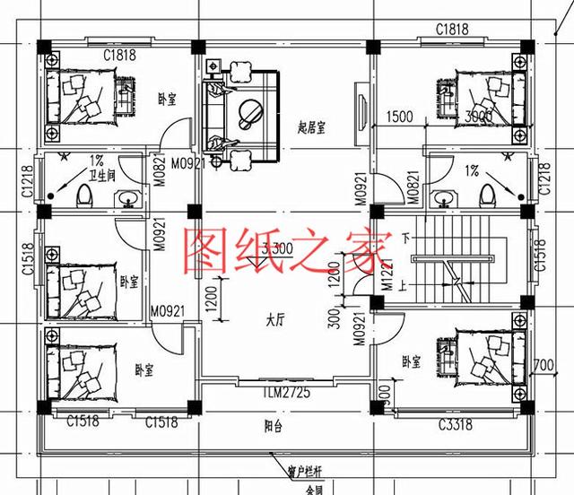
背面效果圖 占地面積:12.8m*11.1m,142平方米左右; 建筑層高:二層; 建筑高度:8.70米(含屋頂); 設計功能: 一層別墅戶型:客廳、餐廳、廚房、儲藏間、主臥(帶衛生間)、臥室、衛生間; 二層別墅戶型:起居室、臥室x4、衛生間x3、小露臺;
一層平面圖
二層平面圖 第三套
正面效果圖
鳥瞰效果圖 占地面積:13.4m*11.0m,145平方米左右; 建筑層高:二層; 建筑高度:9.34米(含屋頂); 設計功能: 一層別墅戶型:玄關、客廳、餐廳、廚房、臥室x2、衛生間、洗衣間(可改主衛); 二層別墅戶型:客廳、主臥(帶書房、衛生間、陽臺)、臥室x2、衛生間、大露臺;
一層平面圖
二層平面圖 第四套
別墅效果圖 占地面積:12.0m*12.0m,144平方米左右; 建筑層高:二層; 建筑高度:8.2米(含屋頂); 設計功能: 一層別墅戶型:客廳、廚房、餐廳、臥室x2、衛生間、書房; 二層別墅戶型:客廳上空、主臥(帶衛生間、書房)、臥室(帶衛生間)、臥室、露臺x2;
一層平面圖
二層平面圖 第五套
別墅效果圖 占地面積:14.0m*11.7m,一層建筑面積146平方米左右; 建筑層高:二層(帶悶頂層); 建筑高度:8.57米(含屋頂); 設計功能: 一層別墅戶型:大廳、客廳、廚房、餐廳、主臥(帶衛生間)、臥室x2、衛生間; 二層別墅戶型:大廳、起居室、主臥(帶衛生間)、臥室x3、衛生間; 悶頂層:功能自定義;
一層平面圖
二層平面圖
悶頂平面圖
圖紙之家-專注農村別墅/自建房設計18年,集合國內200余位經驗豐富的設計師,被評為口碑最好的農村建筑設計公司! |

現代二層樓房圖片造價25萬,含全套設計圖,風格獨特
占地:多戶型可選
鄉下建房一層戶型圖,一層住宅設計圖紙,誰說一層平房不能叫別
占地:200平方米
新式160平方米農村三層樓房設計圖,客廳中空
占地:160平方米
小青瓦一層中式小院三合院設計施工圖,白墻青瓦古色古香
占地:155.3平方米
2026最受歡迎的三層農村小別墅設計圖紙,占地155平方米
占地:155平方米
堂屋共用的三層雙拼別墅設計圖,總占地面積245平米
占地:245平方米
80多平米二層小型自建房設計圖,經濟舒適別具一格
占地:84.48平方米
帶地下室的農村三層雙拼別墅設計圖,復式戶型,面寬23米
占地:261.6平方米左右
120平方米現代新農村二層自建房設計圖,造型時尚好看
占地:120平方米
雙戶168平方米小戶型新農村雙拼樓房設計建筑圖紙帶外觀圖
占地:168平方米
二層美式花園洋房設計圖,帶堂屋戶型,外觀簡直美爆了
占地:159.32平方米
經典三層雙拼房屋設計圖,帶效果圖,戶型好,單戶面積120
占地:240平方米
二層樓房圖片及施工圖紙,占地160平米左右,帶車庫
占地:160平方米
最美中式農村別墅二層三間的房子圖,帶土灶房,娛樂室,大露臺
占地:180平方米
120平方米農村四層別墅施工設計圖紙及效果圖
占地:120平方米
175平大客廳三層別墅房屋設計圖,含外觀造型現代,美觀
占地:175平方米
四開間一層自建房設計圖,四臥二廳+棋牌室+書房
占地:181.29平方米
小型三層別墅cad建筑圖紙帶效果圖,帶屋頂露臺
占地:101平方米左右
80平方米三層農村自建民房設計圖,小戶型別墅方案
占地:81平方米
大戶型帶車庫的兩層農村自建房設計圖,施工簡單,戶型方正
占地:236平方米
推薦:10套新農村自建房設計圖,2026年最新設計
閱讀次數:4825737次
100套鄉村別墅圖片大全,2026年最新設計
閱讀次數:2492203次
6款農村蓋一層平房的設計圖,10萬元就能建起來
閱讀次數:1852637次
這11個一層農村自建房別墅火爆了朋友圈!我最喜歡戶型十!你呢
閱讀次數:750268次
農村6萬元建一層小別墅圖,你敢相信嗎
閱讀次數:567686次
農村5萬塊就能自建房,6套普通房子設計圖分享,你沒看錯!
閱讀次數:419410次
8套農村漂亮三間平房圖片,非常適合在農村修建!
閱讀次數:411197次
農村自建房化糞池怎么做?附方案及施工過程
閱讀次數:391783次
農村一層三間平房設計圖,告別土氣養老房,讓人忍不住點贊
閱讀次數:350581次
新農村二層樓房圖片造價12萬,挑一套回家建房吧!
閱讀次數:349126次
