
|
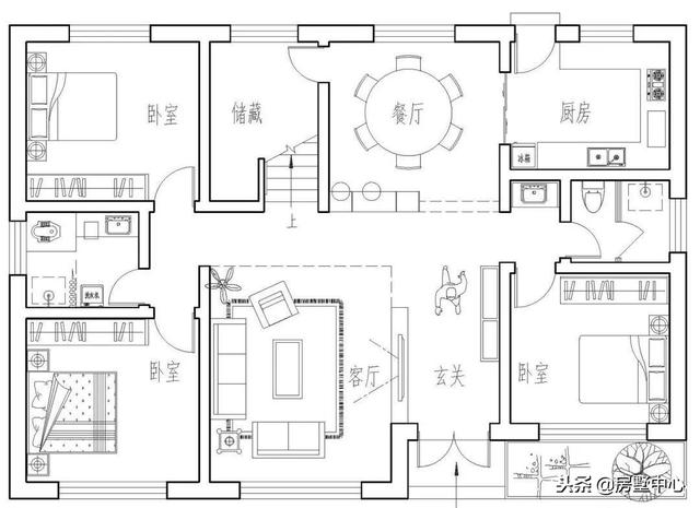
基本信息 進深:15m 面寬:10.5m 面積:303m² 結構:磚混結構 造價:43w
這家的房主位于河南省, 為了照顧家里的父母,房主決定回老家,在老家的宅基地上蓋棟新別墅出來。 考慮到房主一家人的喜好,以及宅基地四周的環境情況,最終決定別墅建為歐式風格。
別墅一共有兩層設計,正中的中庭屋頂設計,采用的是斜坡屋頂的設計,能夠在雨季來臨的時候,幫助雨水盡快的排出。
別墅的二層,還專門設計有一個半開放式的露臺。既可以拿來晾曬衣物,也可以當做休閑娛樂的場所。雙層歐式別墅,自帶車庫和露臺,真正老少皆宜的好住所!
除了建筑本身之外,還有一個不小的庭院,在庭院的西北角,還專門設計有一處車庫,可以方便房主一家人的出行。
大方的造型讓整體感覺十分清爽。顏色對比度強烈,具有視覺沖擊力。
在一層中我們根據業主的要求設計了三間臥室,另外設置了客廳,中餐廳和廚房,樓梯緊鄰餐廳,樓梯下方位置設計為儲藏間使用,充分利用每一處空間。
二層的格局與一層基本一致,而一層門廳位置對應的二層空間被設計為衣帽間,供主臥使用。 圖紙之家-專注農村別墅/自建房設計18年,集合國內200余位經驗豐富的設計師,被評為口碑最好的農村建筑設計公司! |

農村三合院設計圖及效果圖,自建三合院圖紙
占地:470平方米
110平預算20萬內三層別墅設計圖,含效果圖
占地:110平方米
160平方米三層帶大露臺的復式別墅設計圖紙
占地:155平方米
進深15米新農村三層房屋設計圖紙,農村住宅設計圖集
占地:128平方米
帶車庫農村二層雙拼別墅設計圖,外觀現代
占地:235平方米
一層帶閣樓農村別墅設計圖,多得一層可變空間,太值了!
占地:165.89平方米
農村實用三層樓房圖片,占地140平米左右,客廳中空
占地:140平方米
農村一層平房別墅設計圖,18米乘9米,實實在在的好戶型
占地:162平方米
歐式兩層別墅樓房設計圖紙施工方案,高端豪華外觀圖片
占地:138平方米
歐式大氣三層小別墅設計圖紙,外觀、造型大方,色彩明快
占地:140平方米
雙拼小別墅設計圖紙(含效果圖),二層別墅設計方案精選
占地:130平方米
地中海風格二層別墅房屋設計圖,帶外觀效果圖
占地:150平方米
10×12米三層別墅戶型,挑空大客廳設計,圈粉無數的爆款方案
占地:120平方米
12米寬三間二層農村自建房設計圖,左右對稱布局緊湊看著就舒服
占地:144.94平方米
大氣的三層鄉村別墅設計方案圖,小面積建出豪宅感
占地:104.9平方米
140平三層別墅房屋設計圖,含外觀圖片,外觀現代時尚
占地:143平方米
2026二層農村新款別墅戶型圖,占地不到110平米
占地:110平方米
170平方米歐式農村兩層小別墅設計圖紙帶外觀圖,精致好看
占地:多種戶型
農村一層7字型平房別墅設計圖,“L”自行戶型,外觀簡約低調
占地:213.39平方米
農村10萬元一層小別墅設計圖紙,戶型實用又合理
占地:130平方米
推薦:10套新農村自建房設計圖,2026年最新設計
閱讀次數:4825737次
100套鄉村別墅圖片大全,2026年最新設計
閱讀次數:2492203次
6款農村蓋一層平房的設計圖,10萬元就能建起來
閱讀次數:1852637次
這11個一層農村自建房別墅火爆了朋友圈!我最喜歡戶型十!你呢
閱讀次數:750268次
農村6萬元建一層小別墅圖,你敢相信嗎
閱讀次數:567686次
農村5萬塊就能自建房,6套普通房子設計圖分享,你沒看錯!
閱讀次數:419410次
8套農村漂亮三間平房圖片,非常適合在農村修建!
閱讀次數:411197次
農村自建房化糞池怎么做?附方案及施工過程
閱讀次數:391783次
農村一層三間平房設計圖,告別土氣養老房,讓人忍不住點贊
閱讀次數:350581次
新農村二層樓房圖片造價12萬,挑一套回家建房吧!
閱讀次數:349126次
