
|
家里人口越來越多,現在居住的老房子已經不能滿足家人的生活需求,修建新房已經刻不容緩。既然要修建新房,肯定是想把房子修的漂漂亮亮的,不僅要滿足家人的生活需求,更要改善生活環境、提升生活質量。 接下來給大家分享3套實用又奢華的獨棟農村二層別墅,方正大戶型,你喜歡嗎? 第一套:奢華歐式二層樓房設計
正面效果圖
背面效果圖
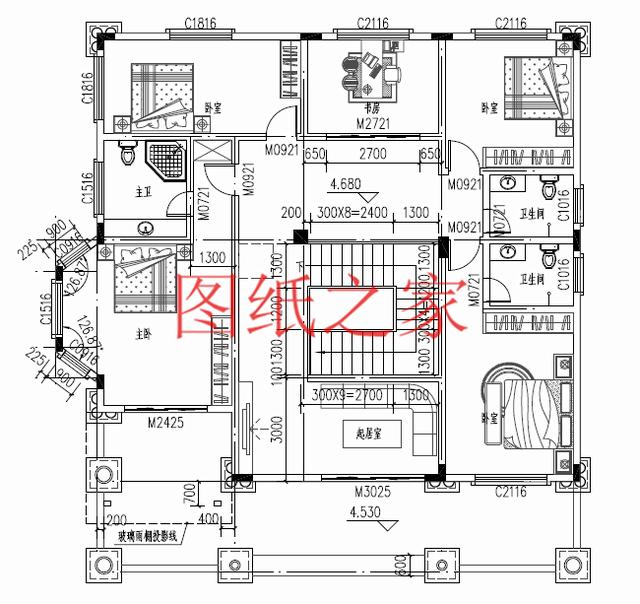
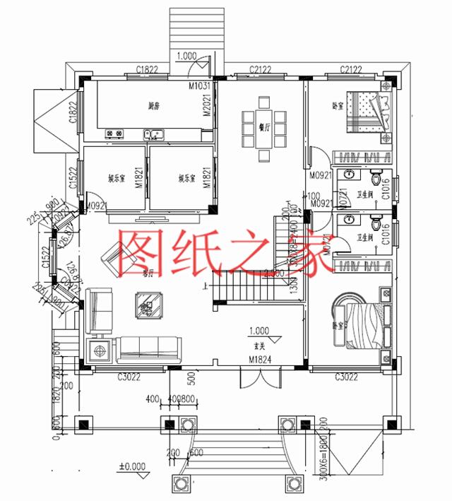
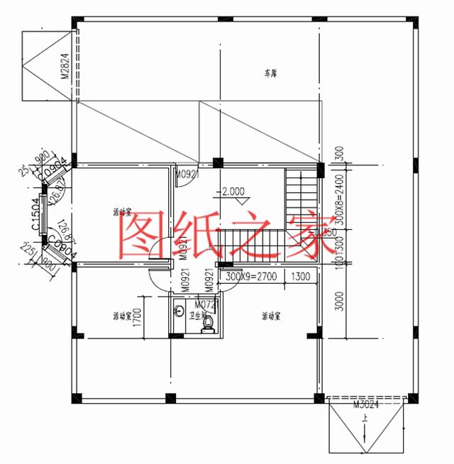
鳥瞰效果圖 占地面積:15.2m*15.6m,190平方米左右; 建筑層高:二層; 建筑高度:10.58米(含屋頂); 設計功能: 地下戶型:車庫、活動室、衛生間; 一層戶型:玄關、客廳、餐廳、廚房、衛生間、主臥(帶衛生間)、臥室; 二層戶型:起居室、主臥(帶衛生間)×2、臥室×2、書房、衛生間、、大露臺;
地下平面圖
一層平面圖
二層平面圖 第二套:農村兩層帶露臺自建房
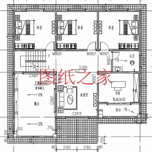
別墅效果圖 占地面積:13.5m*13.5m,一層建筑平房170平左右; 建筑層高:二層(帶悶頂層); 建筑高度:10.00米(含屋頂); 設計功能: 一層戶型:客廳、餐廳、廚房、臥室x2、衛生間、衛生間(樓梯下,可以做儲藏間); 二層戶型:起居室、書房、臥室x3、大露臺、陽臺; 悶頂戶型:功能自定義;
一層平面圖
二層平面圖
悶頂平面圖 第三套:氣派美觀的平頂別墅
別墅效果圖 占地面積:14.0m*13.8m,190平方米左右; 建筑層高:二層; 建筑高度:9.60米(含屋頂); 設計功能: 一層戶型:門廳、客廳、廚房、餐廳、臥室(含衛生間、衣帽間)、臥室x2、書房、衛生間、洗衣房(儲物間); 二層戶型:起居室(客廳)、臥室(帶衣帽間和衛生間)、臥室x3、書房、衛生間、陽臺; 三層戶型:涼亭、露臺、活動室。
一層平面圖
二層平面圖
屋頂平面圖 這幾套別墅的設計圖,你最喜歡哪一套? 圖紙之家-專注農村別墅/自建房設計18年,集合國內200余位經驗豐富的設計師,被評為口碑最好的農村建筑設計公司! |

160平方米新農村自建二層樓房設計圖紙及效果圖,15x11米
占地:160平方米
11x9三層別墅房屋設計圖,含效果圖片
占地:97平方米
新中式三層別墅,旋轉樓梯+挑空客廳,高級感拉滿
占地:125平方米
農村120平方房子設計圖,三層房屋設計圖精選
占地:120平方米
七字形農村自建房二層設計圖,“L”型別墅設計,簡約時尚!
占地:209平米左右
造價15萬經濟美觀一層農村別墅設計圖,占地150平米
占地:多戶型可選
180平方米農村二層別墅四合院建筑設計圖紙
占地:181平方米
回村蓋一層養老房別墅設計圖紙,面寬16米四開間戶型圖
占地:127平方米左右
新中式農村自建二層別墅設計圖,占地160平米左右,客廳中空
占地:160平方米
田園輕奢三層帶露臺的鄉村別墅設計圖紙,11x10米
占地:106.64平方米
農村四層樓房外形設計圖,主臥配有陽臺和衣帽間還有衛生間
占地:126平方米
農村一層中式別墅設計圖,經典大氣,布局舒適,面寬20米
占地:192.92平方米
農村一層中式三合院太香了!白墻黛瓦,有院有景超宜居
占地:364.72平方米
簡約實用農村自建房戶型圖,美觀經濟又通透,南北通透住得爽!
占地:160.6平方米
農村兩層新中式自建房屋設計圖,受歡迎的帶小配房戶型
占地:多戶型可選
160平方農村三層別墅CAD設計圖紙,含外觀圖片效果圖
占地:156平方米
120平方米現代新農村二層自建房設計圖,造型時尚好看
占地:120平方米
帶框架層的四層別墅設計圖,框架層功能布局很多,很實用
占地:169.09平方米
時尚大方的農村二層自建房屋設計圖紙,占地120平米左右
占地:120平米
好看實用農村2開間二層別墅設計圖,主體19萬
占地:117.36平方米
推薦:10套新農村自建房設計圖,2026年最新設計
閱讀次數:4825737次
100套鄉村別墅圖片大全,2026年最新設計
閱讀次數:2492203次
6款農村蓋一層平房的設計圖,10萬元就能建起來
閱讀次數:1852637次
這11個一層農村自建房別墅火爆了朋友圈!我最喜歡戶型十!你呢
閱讀次數:750268次
農村6萬元建一層小別墅圖,你敢相信嗎
閱讀次數:567686次
農村5萬塊就能自建房,6套普通房子設計圖分享,你沒看錯!
閱讀次數:419410次
8套農村漂亮三間平房圖片,非常適合在農村修建!
閱讀次數:411197次
農村自建房化糞池怎么做?附方案及施工過程
閱讀次數:391783次
農村一層三間平房設計圖,告別土氣養老房,讓人忍不住點贊
閱讀次數:350581次
新農村二層樓房圖片造價12萬,挑一套回家建房吧!
閱讀次數:349126次
