
|
現在國家政策對宅基地的限制越來越嚴格,相信給不少建房者帶來了諸多困擾,有些外觀驚艷,平面布局卻不如人意。有時平面布局舒適宜居,造型卻總欠缺了點什么。尤其是面寬小進深長的別墅,更是不好設計。今天推薦6款面寬不足10米的農村別墅戶型,小面寬也可以建讓人喜歡、惹人羨慕的別墅。 圖紙1
這是一棟別有風味的一層別墅,僅僅是外部裝飾就讓人眼前一亮。設計尺寸開間開間9.3米,進深9.54米,占地面積84.99平方米。雖然不到90個平方,但是室內布局齊全,進門客廳餐廳相連,拓展室內空間,西側南北各設計一個臥室,公衛設計在臥室中間。
圖紙2
這是一款復式田園風別墅,無論是外部裝飾材料還是整體配色都是是農村自建房當下的經典流行色。開間10米,進深13.8米,占地面積118.71平方米。廚房單獨設計在東側,進門的客廳和餐廳相接成一個縱向活動空間。二層又3間臥室,并且設計了一個具有收納功能的儲藏室,露臺讓農村生活更加豐富有趣。
圖紙3
這是一款外觀造型比較典雅端莊的二層歐式別墅,戶型設計尺寸7.8米,進深10.8米,占地面積88平方米。如果你家的宅基地正是這樣的小面寬、小進深,那么這一棟合理構造室內空間,功能豐富齊全,干濕分離、潔凈分區的別墅一定不能錯過。
圖紙4
簡潔的外觀和新穎的配色讓整體建筑更顯干凈清新,外墻采用原生態的紅磚裝飾,經濟實用方便打理。戶型設計開間8.8米,進深9.6米,占地面積88.95米,一共設計5間臥室、2間客廳、3間衛生間、1個陽臺,一層還有一個觀景走廊。
圖紙5
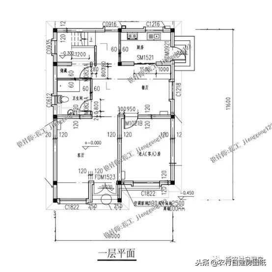
真石漆和文化石作為外部裝飾材料,簡單經濟易于屈才,絳紫色屋頂為整棟建筑的點睛之筆。戶型設計開間8米,進深11.6米,占地面積93平方米。室內一共設計3室2廳、3衛、1廚房、1儲藏室、1書房、1露臺。
圖紙6
開間9.8米,進深14.85米,典型的小面寬大進深設計,雖然面寬較小,但是外觀采用黃色大理石裝飾,凸顯大氣時尚。屋頂的配色更顯活力。整體造型歐式宮廷風十足,非常適合年輕人自建。室內功能豐富齊全,多間臥室帶有衣帽間,提升住家品質。陽臺、大露臺、家庭娛樂室一應俱全,農村生活娛樂性更強。
![]()
圖紙之家-專注農村別墅/自建房設計18年,集合國內200余位經驗豐富的設計師,被評為口碑最好的農村建筑設計公司! |

150平米簡歐三層農村別墅設計圖,低調又奢華
占地:151.2平方米
農村二層住宅設計圖,大窗戶客廳,一起享受大面積采光的溫暖
占地:220平方米
自建一層農村別墅圖,經濟實用新選擇,建房必備參考戶型!
占地:142.88平方米
鄉村一層房屋設計圖,養老還是一層好,多臥室的設計
占地:195平方米
300平方二層別墅四合院設計圖紙方案(效果圖+施工圖)
占地:332平方米
二層半別墅設計圖,占地150平米,帶露臺,地中海風格,內部布局
占地:150平方米
復式別墅農村四層霸氣豪宅設計圖紙,建好你就是村里第一
占地:136.356平方米
新農村二層住宅設計圖紙,簡單別墅設計圖(含效果圖)
占地:77.6平方米
一層平房小面積雙拼房屋住宅設計圖,造價低,面積適中
占地:245.7平方米
適合兄弟自建的二層雙拼別墅設計方案,帶效果圖
占地:180平方米
占地180平方米二層鄉村小洋樓設計戶型圖及圖紙,外觀華麗
占地:180平方米
一層帶商鋪的四層樓房別墅設計圖紙和效果圖,房屋戶型圖
占地:133平方米
12x12農村三層別墅設計圖,自建房屋推薦戶型
占地:148平方米
面寬18米二層農村大別墅設計圖,可帶電梯,舒適又實用
占地:138.29平方米
面寬15米一層四間現代風別墅,外觀漂亮布局實用,養老度假超巴
占地:180平方米
開間12米的三層簡歐別墅設計圖,農村建房布局實用住的舒服
占地:108.15平方米
125平方米新農村三層自建別墅施工設計圖,13x10米
占地:125平方米
帶車庫二層別墅設計圖及效果圖,帶車庫的農村二層樓房推薦
占地:123平方米
農村30萬別墅款式三層設計圖紙,帶地下儲藏室,挑空客廳
占地:110平方米
經濟實惠一層戶型圖,農村養老房舒適至上,簡約而不失溫馨
占地:147.5平方米
推薦:10套新農村自建房設計圖,2026年最新設計
閱讀次數:4825737次
100套鄉村別墅圖片大全,2026年最新設計
閱讀次數:2492203次
6款農村蓋一層平房的設計圖,10萬元就能建起來
閱讀次數:1852637次
這11個一層農村自建房別墅火爆了朋友圈!我最喜歡戶型十!你呢
閱讀次數:750268次
農村6萬元建一層小別墅圖,你敢相信嗎
閱讀次數:567686次
農村5萬塊就能自建房,6套普通房子設計圖分享,你沒看錯!
閱讀次數:419410次
8套農村漂亮三間平房圖片,非常適合在農村修建!
閱讀次數:411197次
農村自建房化糞池怎么做?附方案及施工過程
閱讀次數:391783次
農村一層三間平房設計圖,告別土氣養老房,讓人忍不住點贊
閱讀次數:350581次
新農村二層樓房圖片造價12萬,挑一套回家建房吧!
閱讀次數:349126次
