
|
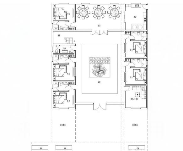
在農村最好的炫富手段就是房子,最簡單的建個浮夸的歐式,當然可能被那些眼紅的人罵暴發戶,高級的炫富方式來一套中式合院吧,外表中庸大氣值得回味的美,品味人首選,營造書香門第的氛圍。 話不多說,今天來一套顏值超高的中式合院,無論自住還是作為民宿都是絕佳選擇,一起來看看吧!
不光有建筑的規劃,如果土地足夠大的話,也可按效果圖來布置小花園,葡萄架花壇水池,生活起來自然舒服萬分。
外表古色古香又不缺乏新意,和別的中式合院很容易的能區分開,黛瓦白墻清新自然,和周圍田園景觀很好的融合在一起,不顯突兀
戶型基本信息:開間18米,進深19.7米,占地面積251.6平方米,建筑面積429.6平方米,結構框架結構
室內設計了9室2廳11衛1廚1堂屋,每個臥室都搭配獨立衛浴,方便衛生,如果自住,不需要那么多洗手間,可以改為衣帽間或者書房。
圖紙之家-專注農村別墅/自建房設計18年,集合國內200余位經驗豐富的設計師,被評為口碑最好的農村建筑設計公司! |

農村一層帶小院房屋設計圖,帶院子一層自建房別墅戶型圖
占地:161.16平方米
2026新款二層別墅房屋設計圖,帶外觀圖片
占地:138平方米
190平方米新農村三層(二層半)雙拼房屋設計圖紙,兄弟合建
占地:192平方米左右
12×12米農村二層經濟型自建房設計圖,設計了6間臥室
占地:140平方米
闊氣高端的三層別墅設計圖,亮得恰到好處,永遠也住不膩
占地:160平方米
新農村二層住宅設計圖紙,簡單別墅設計圖(含效果圖)
占地:77.6平方米
簡歐漂亮農村二層別墅設計方案圖紙,12米乘9米
占地:多戶型可選
三層現代簡約農村雙拼小別墅圖,好看精致,開間17米
占地:187平方米
小戶型二層農村別墅設計圖,占地140平經典漂亮
占地:139.54平方米
新農村二層半房屋設計圖紙及效果圖,別墅設計圖精選
占地:113平方米
復式挑空現代簡約風三層別墅設計圖,簡單時尚最受年輕人最愛
占地:149.7平方米
高端大氣三層別墅設計圖,建好就是村里最靚的
占地:120平方米
戳中年輕人喜好!時尚三層自建房,簡約時尚設計,住著舒適自然
占地:169.76平方米
田園輕奢三層帶露臺的鄉村別墅設計圖紙,11x10米
占地:106.64平方米
豪華三層別墅設計圖紙,全套施工方案帶效果圖
占地:130平方米
新款現代一層小別墅設計圖,農村自建平房推薦戶型
占地:多戶型可選
100平米兩間三層樓房設計圖,農村蓋房舒服實用最重要
占地:100平方米
200平米左右二層樓房設計圖,外觀看著舒服、布局住著坦然
占地:190平方米
占地130平方米二層鄉村別墅自建房圖紙設計圖,效果圖好看
占地:131.658平方米
精致時尚一層雙拼別墅設計圖,造價實惠,起居互不打擾
占地:369.54平方米
推薦:10套新農村自建房設計圖,2026年最新設計
閱讀次數:4825737次
100套鄉村別墅圖片大全,2026年最新設計
閱讀次數:2492203次
6款農村蓋一層平房的設計圖,10萬元就能建起來
閱讀次數:1852637次
這11個一層農村自建房別墅火爆了朋友圈!我最喜歡戶型十!你呢
閱讀次數:750268次
農村6萬元建一層小別墅圖,你敢相信嗎
閱讀次數:567686次
農村5萬塊就能自建房,6套普通房子設計圖分享,你沒看錯!
閱讀次數:419410次
8套農村漂亮三間平房圖片,非常適合在農村修建!
閱讀次數:411197次
農村自建房化糞池怎么做?附方案及施工過程
閱讀次數:391783次
農村一層三間平房設計圖,告別土氣養老房,讓人忍不住點贊
閱讀次數:350581次
新農村二層樓房圖片造價12萬,挑一套回家建房吧!
閱讀次數:349126次
