
|
現在的鄉村旅游發展這么火熱,很多農村家庭房屋的院子夠大,而且老家風景也很是不錯,不少人借助這得天獨厚的優勢,將老宅改造為民宿。于是,原來的農家院,搖身一變成了古色古香、如詩如畫的中式庭院。農村建房可不是件容易事,更不必說建一棟民宿了,辛苦攢下多年的積蓄,就是為了在老家能夠建起一棟屬于自己的房子。 下面小編就分享一款中式民宿住宅,對稱設計! 戶型介紹 開間:18.7米 進深:16.2米 首層建筑面積:303.6米 總建筑面積:889.12平方米 層數:三層 結構形式:框架結構 主體造價:60萬左右 建筑高度:14.6米
該戶型左右對稱,青磚及白色真石漆外墻,兩面灰色坡屋頂,磚紅色的墻檐以及鏤空窗格,這些都是中式建筑的特點,古色古香,非常有韻味。房屋頂層正中間為平屋頂設計,可放置太陽能、水箱等,非常方便。 功能設計
一層平面圖 一層:客廳、廚房、餐廳、2臥室(帶內衛)、娛樂室、儲藏室
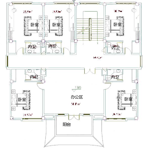
二層平面圖 二層:辦公室、5臥室(帶內衛)、陽臺
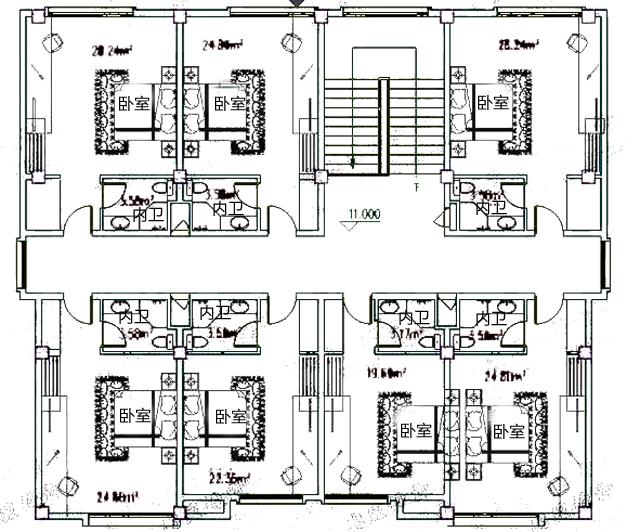
三層平面圖 三層:7臥室(帶內衛)、過道 圖紙之家-專注農村別墅/自建房設計18年,集合國內200余位經驗豐富的設計師,被評為口碑最好的農村建筑設計公司! |

12.8x10米二層自建房別墅設計圖,大氣美觀實用,建造無憂
占地:128平方米
農村30萬別墅款式三層設計圖紙,帶地下儲藏室,挑空客廳
占地:110平方米
面寬17米農村實用自建房一層別墅設計圖,簡約大氣經濟時尚
占地:192.94平方米
14米乘10米農村二層別墅新款,外觀對稱設計,經久耐看!
占地:140平方米
復式三層帶車庫簡歐小別墅設計圖,農村三層房屋設計圖
占地:126平方米
新中式農村50萬三層別墅款式圖,占地面積160平米左右
占地:150平方米
農村自建二層半樓房效果圖,美觀大氣布局合理,很適合農村人自
占地:160.11平方米
簡單實用農村自建小樓二層別墅設計圖,戶型造型簡約好看
占地:146平方米
新中式三層雙拼別墅設計圖及效果圖,中式大氣風格
占地:235.26平方米
155平方米二層別墅房屋設計圖,帶獨立車庫
占地:155平方米
造價便宜的二層雙拼別墅設計圖,造型簡約大氣,進深10米
占地:SP23059
農村蓋平房設計大全圖,鄉下建房一層戶型圖及效果圖
占地:160平方米
12x13米豪華三層農村別墅設計圖,宅基地上的貴族人生
占地:156平方米
L字型自建房屋設計圖,一層別墅類型,外觀效果圖漂亮
占地:188.62平方米
農村建房兄弟雙拼三層,經典的歐式風格,大氣的外觀
占地:250平方米
二層中式四合院別墅設計圖,經典、漂亮(全套施工圖)
占地:350平方米
10萬內2層小洋樓設計圖,平屋頂,戶型設計合理
占地:90平方米
三間三層房子設計圖,高端三層樓房設計圖,三層兩個大露臺
占地:170平方米
現代風平屋頂一層自建房設計,經濟時尚
占地:147.17平方米
100平方米新農村住宅二層小別墅設計CAD圖紙及效果圖,10x10米
占地:96平方米
推薦:10套新農村自建房設計圖,2026年最新設計
閱讀次數:4825737次
100套鄉村別墅圖片大全,2026年最新設計
閱讀次數:2492203次
6款農村蓋一層平房的設計圖,10萬元就能建起來
閱讀次數:1852637次
這11個一層農村自建房別墅火爆了朋友圈!我最喜歡戶型十!你呢
閱讀次數:750268次
農村6萬元建一層小別墅圖,你敢相信嗎
閱讀次數:567686次
農村5萬塊就能自建房,6套普通房子設計圖分享,你沒看錯!
閱讀次數:419410次
8套農村漂亮三間平房圖片,非常適合在農村修建!
閱讀次數:411197次
農村自建房化糞池怎么做?附方案及施工過程
閱讀次數:391783次
農村一層三間平房設計圖,告別土氣養老房,讓人忍不住點贊
閱讀次數:350581次
新農村二層樓房圖片造價12萬,挑一套回家建房吧!
閱讀次數:349126次
