
|
經典之所以被世人所喜歡,正是因為它不變的內涵,就算經過了再長時間的洗刷,經典永流傳,這套戶型就是在我們房墅網原先的設計上,為了豐富農村人的日常生活,更進一步優化出來的戶型,三層田園別墅,不過時,不繁瑣,一切都是如此的簡單。 建造別墅的人,擔憂的只有兩件事: 第一件設計,房型的設計和風格的設計。 現在農村建房有個普遍現象,就是村里同一類型的房子特別多,差不多的外型,看多了也就沒什么新鮮感了。這主要也是和農村人建房不怎么找專業設計有關,大多都是看著別人家蓋了就照著模樣給自己家蓋一棟。 第二件就是宅基地的問題。 針對宅基地面積問題,小編給大家介紹一款小基地也能建造的別墅,讓你小基地也能享受大別墅的舒適感。
此戶型為三層獨棟別墅,外觀造型古樸大方,色彩清新淡雅,富有時代的韻味;房間尺度設計適宜,空間利用率高,明廚明衛,各使用空間都有較好的采光通風。
用現代流行美學的特點勾畫出最具現代特色家宅,前置的庭院,給人一種寬敞明亮之感,設計師的精心構思,讓主人得到一種舒適的體驗。
背面效果圖。
新中式風格建筑不同于其他風格建筑,追求的是極致的莊嚴古典之美。別墅南立面多落地窗設計適合少雨的地區,無論是冬季還是夏季,只要出太陽時,明媚的陽光便可照進室內的每個角落。
側面效果圖。
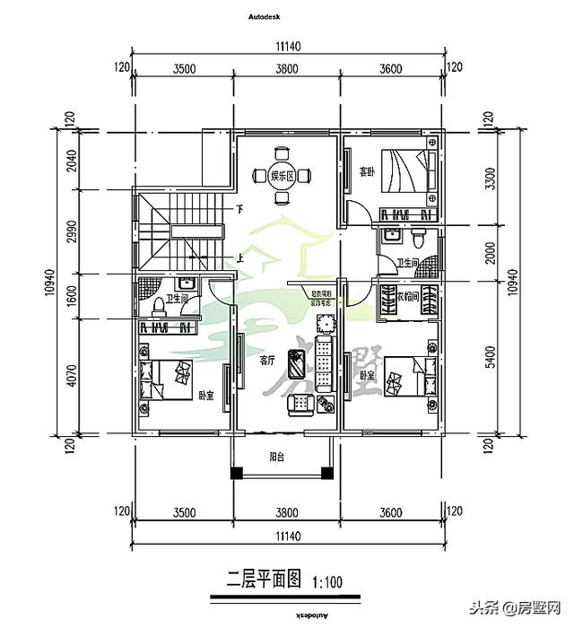
接下來我們來看看別墅的平面設計圖:
一層平面圖:廚房、餐廳、客廳、臥室
二層平面圖:臥室、娛樂室、客廳
三層平面圖:娛樂室、陽臺、健身房、臥室 圖紙之家-專注農村別墅/自建房設計18年,集合國內200余位經驗豐富的設計師,被評為口碑最好的農村建筑設計公司! |

一層半房屋別墅設計圖,帶閣樓圖、帶露臺,外觀新穎時尚
占地:130平方米
95平米二層別墅必蓋戶型圖,造型洋氣,布局接地氣,趕緊回村建
占地:95.38平方米
新中式一層別墅設計圖紙,農村自建平房戶型方案圖
占地:183.7平方
農村帶閣樓一層房屋設計施工圖,13X9米
占地:102平方米
簡歐漂亮農村二層別墅設計方案圖紙,12米乘9米
占地:多戶型可選
經典四合院別墅設計圖,復式挑空客廳讓四合院更高端
占地:175平方米左右
新中式三層豪華大氣三層別墅自建房屋設計圖,帶地下室,土豪專
占地:194平方米
新農村一層小別墅設計方案,四臥二廳耐看實用,方便打掃更便捷
占地:153.55平方米
140平二層帶閣樓別墅設計方案圖,外觀圖片色彩明快
占地:140平方米
農村自建三層別墅設計圖,開間17米進深13米,外觀對稱設計
占地:187.6平方米
二層美式花園洋房設計圖,帶堂屋戶型,外觀簡直美爆了
占地:159.32平方米
120多平米三層農村別墅設計圖,把實用做到極致,造價適中
占地:126.85平方米
現代風格四合院別墅設計圖,回老家建一棟吧
占地:177.89平方米
農村三間三層豪宅設計圖,自建別墅推薦戶型,帶地下室
占地:170平方米
帶架空層的兩層別墅設計圖,通透又明亮,建在農村絕對有面子
占地:106.79平方米
130平米帶小院一層自建房屋設計圖,省錢實用,養老房首選
占地:130平方米左右
農村一層養老別墅設計圖,兩個戶型方案可選
占地:多種戶型
奢華歐式二層樓房設計圖,入戶設有玄關,一層大窗設計
占地:190平方米
四間兩層實用簡約的住房設計圖,毛坯24萬,農村建正合適
占地:159.48平方米
110平方米農村三層復式房屋施工圖,通透時尚,低調又奢華
占地:107.98平方米
推薦:10套新農村自建房設計圖,2026年最新設計
閱讀次數:4825737次
100套鄉村別墅圖片大全,2026年最新設計
閱讀次數:2492203次
6款農村蓋一層平房的設計圖,10萬元就能建起來
閱讀次數:1852637次
這11個一層農村自建房別墅火爆了朋友圈!我最喜歡戶型十!你呢
閱讀次數:750268次
農村6萬元建一層小別墅圖,你敢相信嗎
閱讀次數:567686次
農村5萬塊就能自建房,6套普通房子設計圖分享,你沒看錯!
閱讀次數:419410次
8套農村漂亮三間平房圖片,非常適合在農村修建!
閱讀次數:411197次
農村自建房化糞池怎么做?附方案及施工過程
閱讀次數:391783次
農村一層三間平房設計圖,告別土氣養老房,讓人忍不住點贊
閱讀次數:350581次
新農村二層樓房圖片造價12萬,挑一套回家建房吧!
閱讀次數:349126次
