
|
房子房子,不僅城市里的人在為了房子而奮頭,農村人一輩子的夢想就是能在鄉下建個體面的房子,等老了,兒孫一堂,聚在一起,熱熱鬧鬧的過日子。目前雖然國家對于農村宅基地自建房的要求在一步步的的收緊,趁著現在還在國家允許的范圍內,趕緊先建把房子建好才是正是。今天的這5款農村建房別墅都是三層的,面積都比較大,框架結構,不管是房子的安全性和實用性都非常強,使用年限也可達到70年,一次性把房子建好,不僅自己有面子,兒孫后代也有福。 戶型一
戶型基本信息 開間:15.5米 進深:14.2米 占地面積:227.65米 建筑面積:674.88米 結構類型:框架結構
戶型二
戶型基本信息 開間:13.49米 進深:12.392米 占地面積:164.29米 建筑面積:463.47米 結構類型:框架結構
戶型三
戶型基本信息 開間:14.5米 進深:12.5米 占地面積:166.89米 建筑面積:413.04米 結構類型:框架結構
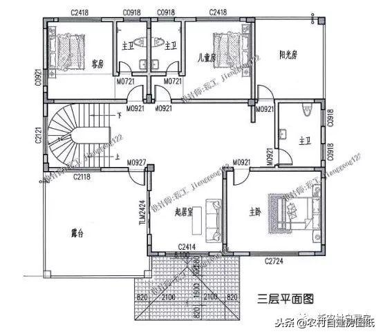
戶型四
戶型基本信息 開間:11.1米 進深:13.1米 占地面積:125.4米 建筑面積:348.92米 結構類型:框架結構
戶型五
戶型基本信息 開間:15.76米 進深:13.6米 占地面積:203.34米 建筑面積:571.42米 結構類型:混合結構
這5款三層別墅面積都很大,豪華大氣,外觀經典,三代不過時,絕對滿足面子和里子的雙重需求,這樣風格各異的農村別墅,你喜歡什么樣的風格的,如果當地不能建房子,豈不是憾事一樁。 圖紙之家-專注農村別墅/自建房設計18年,集合國內200余位經驗豐富的設計師,被評為口碑最好的農村建筑設計公司! |

占地80平四層平頂別墅設計圖,現代風房子效果圖
占地:80平方米
堂屋共用的三層雙拼別墅設計圖,總占地面積245平米
占地:245平方米
中式二層三合院設計圖紙含外觀效果圖片,大氣又實用
占地:216.04平方米
130平米最新氣派農村四層樓房設計圖,四層樓房圖片
占地:130平方米
50萬以內的歐式三層房屋別墅施工設計圖紙及效果圖
占地:169平方米
160平方米農村實用型二層自建小別墅設計施工圖紙15米*10米
占地:160平方米
一層農村三合院平房設計圖,可以倆兄弟或和父母兒女一起住
占地:202.79平方米
L“型”一層自建房小平層設計圖紙,180平方米
占地:179.355平方米
12.8x10米二層自建房別墅設計圖,大氣美觀實用,建造無憂
占地:128平方米
新中式高端三層雙拼自建房別墅設計圖,豪華霸氣的外觀
占地:256.02平方米左
時尚一層別墅圖,一層這樣蓋房最漂亮
占地:160平方米
面寬13米帶堂屋三層農村別墅圖,新中式大氣風格
占地:151.58平方米
對稱一層農村養老別墅設計方案,室內戶型布局合理,14x12米
占地:141.46平方米
100平米左右簡單實用的二層樓房設計圖,施工簡單造價低
占地:95平方米
新款鄉村二層半別墅設計圖紙帶效果圖,三層別墅外觀圖片大全
占地:108.795平方米
面寬13米方正戶型二層小別墅設計方案,南北通透采光好
占地:166.78平方米
二層半新中式別墅設計圖,農村自建24萬,帶庭院規劃設計
占地:140.68平方米
135平鄉村三層復式樓房設計圖,自建房推薦
占地:135平方米
面寬22米的高端三層自建房別墅設計圖,功能齊全
占地:222.47平方米
三層樓房設計圖紙含效果圖,外觀造型高低錯落,別致大方
占地:152.4平方米
推薦:10套新農村自建房設計圖,2026年最新設計
閱讀次數:4825737次
100套鄉村別墅圖片大全,2026年最新設計
閱讀次數:2492203次
6款農村蓋一層平房的設計圖,10萬元就能建起來
閱讀次數:1852637次
這11個一層農村自建房別墅火爆了朋友圈!我最喜歡戶型十!你呢
閱讀次數:750268次
農村6萬元建一層小別墅圖,你敢相信嗎
閱讀次數:567686次
農村5萬塊就能自建房,6套普通房子設計圖分享,你沒看錯!
閱讀次數:419410次
8套農村漂亮三間平房圖片,非常適合在農村修建!
閱讀次數:411197次
農村自建房化糞池怎么做?附方案及施工過程
閱讀次數:391783次
農村一層三間平房設計圖,告別土氣養老房,讓人忍不住點贊
閱讀次數:350581次
新農村二層樓房圖片造價12萬,挑一套回家建房吧!
閱讀次數:349126次
