
|
這幾年回農村建房的熱潮一股高過一股,而農村呢也一時間出現了很多小洋樓,不得不說這幾年農村的確發展的越來越好。很多人回村建房是處于以后養老的考慮,雖然現在在大城市生活,但都打算以后退休了回農村養老,因為農村空氣清新,對于老年人的生活非常合適了。100平以內的宅基地在農村來說也很平常,下面小編就給推薦兩款: 第一套 圖紙詳情 占地面積:10.0m*10.0m,100平方米左右; 建筑層高:二層; 建筑高度:9.6米(含屋頂);
精致典雅的100平方米二層樓房圖紙,藏不住的經典,戶型簡單合理,造價十幾萬,一輛車錢就能蓋棟新房。墻用面磚簡單的裝飾,一層外墻可以用差不多顏色的文化石或者面磚,整棟建筑給人的感覺的就是比較的精致小巧,很適合建給家里老人或者家庭人口不是很多的。 設計功能:
一層平面圖 一層戶型:客廳、餐廳、廚房、衛生間、臥室×2;
二層平面圖 二層戶型:家庭廳、主臥(帶書房)、臥室x2、衛生間、陽臺、露臺; 第二套 圖紙介紹 層數:二層,開間:11.5米,進深:9米,占地面積:105.45,總建筑面積:193.77平方米,結構形式:磚混結構;主體造價:15-18萬元
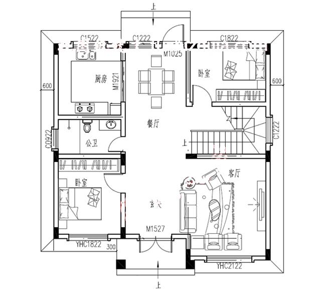
客廳寬敞,戶型簡潔,外觀設計漂亮,屋頂錯落別致,布局緊湊,主臥舒適性好。 設計功能:
一層平面圖 一層:堂屋、客廳、餐廳、廚房、老人房(帶衛生間)、衛生間。
二層:臥室x2(附帶露臺)、主臥室、起居室、衛生間。 圖紙之家-專注農村別墅/自建房設計18年,集合國內200余位經驗豐富的設計師,被評為口碑最好的農村建筑設計公司! |

農村中式四合院房屋圖片及設計圖,白墻黛瓦的江南風格
占地:337平方米
美爆的三層經典復式別墅設計圖紙及效果圖,建好更漂亮
占地:130平方米左右
四層自建別墅設計圖,有車庫帶露臺,時尚大氣給你一個五星級的
占地:152.51平方米
農村四層樓房設計圖,含外觀圖片,自建四層房屋推薦
占地:140平方米
農村中式二層4開間別墅圖紙設計方案圖,帶車庫戶型
占地:198平方米
2026年簡單實用二層農村別墅,經典大氣真的香
占地:165.98平方米
140平二層帶閣樓別墅設計方案圖,外觀圖片色彩明快
占地:140平方米
二層半大客廳復式別墅房屋設計圖,客廳寬闊明亮
占地:125平方米
80平方米二層房屋設計圖,造價10萬左右
占地:80平方米
面寬8米多小開間三層農村別墅設計圖,占地不足百平
占地:95.21
二開間二層別墅設計圖,面寬9米,不可多得的好選擇!
占地:93.24平方米
農村三層雙拼房屋建筑施工設計圖紙,帶車庫
占地:180平方米
小戶型經濟型三層雙拼小別墅施工設計圖紙,單戶100平內
占地:150平方米
二層自建房子最新款設計圖,平屋頂簡約經濟,美觀不失大方。
占地:115.64平方米
面寬13米二層鄉村自建別墅戶型圖,帶堂屋和露臺
占地:135.47平方米
二層簡歐風格自建房別墅戶型設計圖,造價26萬
占地:132.4平方米
造型新穎漂亮的農村二層現代風別墅設計圖,老少皆宜的外觀
占地:144.54平方米
農村一層四開間自建別墅,美麗住宅如詩如畫里15米乘10米
占地:142平方米
農村建房二樓設計圖,占地百平帶配房設計,顏值高布局好
占地:103.11平方米
小面寬農村兩開間二層小別墅,簡單實用雖小但不擁擠
占地:118.56平方米
推薦:10套新農村自建房設計圖,2026年最新設計
閱讀次數:4825737次
100套鄉村別墅圖片大全,2026年最新設計
閱讀次數:2492203次
6款農村蓋一層平房的設計圖,10萬元就能建起來
閱讀次數:1852637次
這11個一層農村自建房別墅火爆了朋友圈!我最喜歡戶型十!你呢
閱讀次數:750268次
農村6萬元建一層小別墅圖,你敢相信嗎
閱讀次數:567686次
農村5萬塊就能自建房,6套普通房子設計圖分享,你沒看錯!
閱讀次數:419410次
8套農村漂亮三間平房圖片,非常適合在農村修建!
閱讀次數:411197次
農村自建房化糞池怎么做?附方案及施工過程
閱讀次數:391783次
農村一層三間平房設計圖,告別土氣養老房,讓人忍不住點贊
閱讀次數:350581次
新農村二層樓房圖片造價12萬,挑一套回家建房吧!
閱讀次數:349126次
