
|
二層現代風格別墅,前衛的橫向條形窗、純白立面、把現代風格演繹的美輪美奐。南向大開間舒適開闊,采光通透,一層客廳、餐廳空間處大面積落地玻璃窗,把南側庭院景觀盡收眼底;二層長條形窗把四個空間在立面上做了一個整體連接,既舒適實用又簡潔耐看;三層超級無敵大的全方位大露臺,生活娛樂空間隨你想象。宅地北側、東南角、西側皆設有入戶院門,南側L型開闊舒適大庭院,這宅地環境真不是一般的讓人羨慕啊!
整體建筑鳥瞰效果 項目基本信息建筑面積:總建筑面積336.4平方米,一層建筑面積144.7平方米,二層建筑面積164.6平方米,閣樓建筑面積27.1平方米。 建筑風格:現代風格 建筑結構:框架結構 建造地點:浙江 參考造價:主體40萬(未含內外裝xiu及其他費用) 設計機構:杭州田口建筑設計有限公司 建 筑 師:戴工、時工 結 構 師:陳工
南立面透視
東立面透視
北立面透視
西北角度透視 現狀照片
老宅院門現狀
老宅院落現狀
宅地現狀
宅地現狀 平面戶型
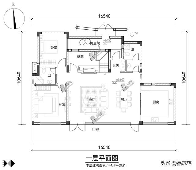
▲一層平面功能:北側入戶庭院、獨立玄關,玄關兩側是公衛、樓梯,樓梯下做儲藏間,樓梯間旁是一間北向臥室,南側空間是廚房、餐廳、客廳、臥室。
▲二層平面功能:東側南向一間大臥室套房(帶書房、衛生間),西側南向兩間臥室,一間北向臥室。
▲閣樓層平面功能:樓梯間旁是公衛,大露臺滿足生活晾曬功能、喝茶聊天的生活娛樂功能。
▲屋頂平面 建筑立面
南立面圖
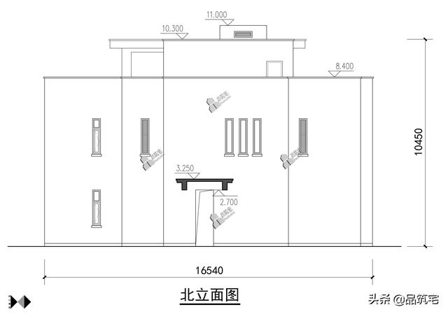
北立面圖
東立面圖
西立面圖 建筑效果圖
頂視圖
東南角度鳥瞰
西南角度鳥瞰
東北角度鳥瞰
南立面人視圖
北立面人視圖(圍墻外)
東立面人視圖(圍墻外)
西立面人視圖(圍墻外)
東南角度透視
東南角院門透視
南側庭院透視
圖紙之家-專注農村別墅/自建房設計18年,集合國內200余位經驗豐富的設計師,被評為口碑最好的農村建筑設計公司! |

歐式大戶型三層農村房屋設計圖紙,歐式住宅圖推薦
占地:178平方米
新中式二層雙拼樓房設計圖,單戶面積100平米左右,實用美觀
占地:200平方米
新中式高端豪宅三層別墅自建房設計圖,大戶型經典
占地:270平方米左右
農村五間房子設計圖,大戶型別墅設計圖推薦
占地:240平方米
14米×10米農村二層小別墅自建房設計圖,外觀設計時尚美觀
占地:125平方米
帶閣樓的二層半別墅設計圖和效果圖,外飾簡單但不失奢華
占地:210平方米
180平方農村二層別墅施工設計圖紙,15.8x11.7米
占地:180平方米
私人二層歐式別墅建筑設計圖(效果圖+全套別墅設計方案)
占地:144平方米
20萬左右農村雙拼別墅住宅設計圖,簡單小戶型設計
占地:120平方米
140平方米新農村二層自建平屋頂房屋設計圖紙帶外觀效果圖
占地:140平方米左右
新中式農村三層樓房設計圖,帶地下室,主體建筑面積110平米
占地:110平方米
210平米新農村自建二層施工圖紙,預留電梯位,美觀大氣舒適實用
占地:208.5平方米
二層復式雙拼別墅設計圖(客廳中空),含外觀效果圖
占地:195平方米
背面不開窗二層別墅設計圖,對稱設計簡單好看,眾多建房者的選
占地:183.79平方米
農村三層雙拼別墅戶型圖設計圖,整體外觀氣派
占地:220平方米
一層鄉村別墅設計戶型圖,占地100平左右,外觀很時尚
占地:100平方米左右
175平方米二層別墅設計CAD圖紙及效果圖大全,中式風格
占地:175平方米
105平一層簡單農村別墅設計圖,造價8萬左右
占地:105平方米
歐式漂亮農村三層自建房設計圖紙,兩個戶型方案可選
占地:多戶型可選
150平方米二層別墅設計及效果圖展示下載,17X10米
占地:150平方米
推薦:10套新農村自建房設計圖,2026年最新設計
閱讀次數:4825737次
100套鄉村別墅圖片大全,2026年最新設計
閱讀次數:2492203次
6款農村蓋一層平房的設計圖,10萬元就能建起來
閱讀次數:1852637次
這11個一層農村自建房別墅火爆了朋友圈!我最喜歡戶型十!你呢
閱讀次數:750268次
農村6萬元建一層小別墅圖,你敢相信嗎
閱讀次數:567686次
農村5萬塊就能自建房,6套普通房子設計圖分享,你沒看錯!
閱讀次數:419410次
8套農村漂亮三間平房圖片,非常適合在農村修建!
閱讀次數:411197次
農村自建房化糞池怎么做?附方案及施工過程
閱讀次數:391783次
農村一層三間平房設計圖,告別土氣養老房,讓人忍不住點贊
閱讀次數:350581次
新農村二層樓房圖片造價12萬,挑一套回家建房吧!
閱讀次數:349126次
