
|
本案例位于上海市,建筑面積230 平米,占地面積72平米,占地狹小方正,外觀錯落有致,簡潔大方,現代感十足。 效果圖
建筑整體為經典的黑白色搭配,主體采用框架結構,一層設計有小院,使建筑更具生活氣息,二三層均有露臺,實用性強。
挑空客廳與落地窗的搭配,不僅滿足了通風與采光的需求,也使整體造型更有時尚感。
整體造型簡潔明快,客廳挑空增高增加了高低錯落感,陽臺露臺的設計使外觀更富層次感。
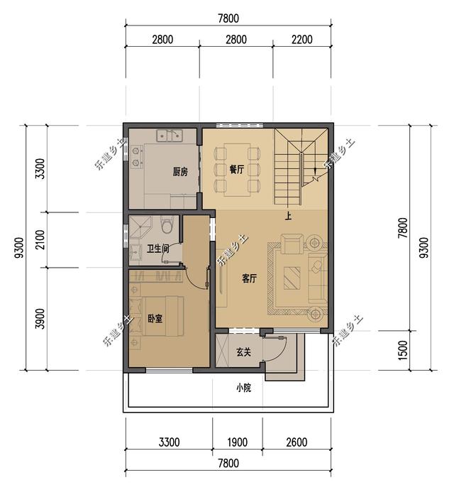
平面圖 一層設有客廳、餐廳、廚房和帶獨衛的臥室,一層的臥室作為老人房最合適不過了。玄關的設立形成室內外的過渡空間。
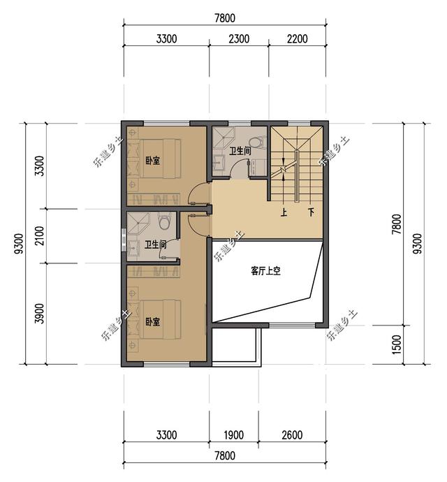
▲一層平面圖 二層主要為生活區,一個公衛,一個獨衛,兩間臥室規劃統一,私密性良好。
▲二層平面圖 三層布置臥室套房,有書房和獨立衛生間,工作生活兩不誤。大露臺的設計完全滿足農村的生產生活需求,晚上還可以去賞月亮看星星,實用性與觀賞性兼具。
▲三層平面圖 這套簡約的三層獨棟別墅,線條簡潔,配色經典,占地面積小,內部功能齊全,能滿足家庭成員日常生活需要。 圖紙之家-專注農村別墅/自建房設計18年,集合國內200余位經驗豐富的設計師,被評為口碑最好的農村建筑設計公司! |

農村一層平房設計圖,人字坡戶型簡單大方,養老自住都不錯
占地:139.2平方米
農村兩層新中式自建房屋設計圖,受歡迎的帶小配房戶型
占地:多戶型可選
農村自建房鄉村超現代平屋頂二層別墅圖設計方案,造價低,施工
占地:142平方米
120平現代實用三層別墅房屋設計圖,含外觀效果圖
占地:120平方米
復式大客廳帶旋轉樓梯二層別墅設計圖,大廳很闊氣
占地:193平方米左右
新中式一層合院別墅圖,15米×15.8米,主體造價低至15萬
占地:183.08平方米
140平米一層農村自建房設計圖,好看不貴簡約耐看
占地:141.12平方米
農村一層中式別墅設計圖,經典大氣,布局舒適,面寬20米
占地:192.92平方米
雅致的鄉下二層蓋別墅設計圖紙,造價35萬左右
占地:178平方米
省錢美觀一層自建房子設計圖,父母養老住很適合
占地:117平方米
帶架空層的三層農村別墅設計火了!雨季不怕返潮
占地:147.15平方米
簡歐復式四層別墅房屋設計圖,外觀圖高端、大氣
占地:143平方米
13×16米農村自建樓房三層別墅戶型設計圖,大氣
占地:168平方米
經典小戶型二層新農村房屋設計圖紙,客廳中空,造價20萬
占地:94平方米
農村帶閣樓一層房屋設計施工圖,13X9米
占地:102平方米
四層別墅豪宅外觀效果圖及全套施工圖,高端歐式風格
占地:176.97平方米
四開間2層別墅設計圖,外觀圖配色清新淡雅,占地200平米
占地:200平方米
一層中式四合院別墅設計圖,符合國人審美,簡單大氣穩妥沉穩
占地:388平方米
二層復式小洋樓設計圖,外觀精致,戶型合理
占地:115平方米
農村養老房還是一層好,帶閣樓的一層房子設計圖
占地:135平方米
推薦:10套新農村自建房設計圖,2026年最新設計
閱讀次數:4825737次
100套鄉村別墅圖片大全,2026年最新設計
閱讀次數:2492203次
6款農村蓋一層平房的設計圖,10萬元就能建起來
閱讀次數:1852637次
這11個一層農村自建房別墅火爆了朋友圈!我最喜歡戶型十!你呢
閱讀次數:750268次
農村6萬元建一層小別墅圖,你敢相信嗎
閱讀次數:567686次
農村5萬塊就能自建房,6套普通房子設計圖分享,你沒看錯!
閱讀次數:419410次
8套農村漂亮三間平房圖片,非常適合在農村修建!
閱讀次數:411197次
農村自建房化糞池怎么做?附方案及施工過程
閱讀次數:391783次
農村一層三間平房設計圖,告別土氣養老房,讓人忍不住點贊
閱讀次數:350581次
新農村二層樓房圖片造價12萬,挑一套回家建房吧!
閱讀次數:349126次
