
|
這幾年的農村變化,光從房子上,就能看出不少亮點所在,它見證了農村的發展,也見證了社會的不斷進步,從過去的土舊老宅,到如今的高樓別墅,房子是越蓋越好,生活也是越過越幸福。在這青山綠水的環境里,建一棟屬于自己的房子,享受生活的芳華,簡直是人生最大的樂事。 農村修建別墅外觀其實過得去就可以了,最重要的是實用。不實用的別墅住起來不是自己給自己找罪受么?今天給大家帶來的這款別墅,外觀精致大方,內部布局簡潔明了。 圖紙屬性 層數:二層 主體造價:15-19萬 結構形式:磚混結構 開間:10米 進深:10.5米 占地面積:111平方米 總建筑面積:194.89平方米 效果圖:
黃色外墻,暖色調搭配,帶有老虎窗,造型錯落有致,看似隨性卻又是精心布置的外墻線走向,增添一絲活潑靈動感。 實景圖:
黃色外墻漆,與原效果圖相似度99.9%,營造出溫馨的生活環境,清新自然。一層走廊和二層陽臺上下對稱,晾曬衣物被褥極為方便!
窗戶為推開窗設計,美觀且更利于室內的采光和通風。
門前的3根方形承重柱搭配著客廳右側的3面小落地窗,增添別墅的立體感和大氣;二層陽臺上設有玻璃雨棚,即使下雨也不害怕晾曬的衣物被淋濕。
黑色鐵藝圍墻護欄與別墅更配,時尚大方! 功能設計
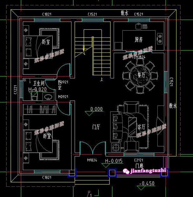
一層平面圖 一層:門廳、客廳、餐廳、廚房、2臥室、衛生間。
二層平面圖 二層:臥室(帶書房)、2臥室、書房、露臺、衛生間。 圖紙之家-專注農村別墅/自建房設計18年,集合國內200余位經驗豐富的設計師,被評為口碑最好的農村建筑設計公司! |

現代風平屋頂一層自建房設計,經濟時尚
占地:147.17平方米
農村二層仿古尖屋頂別墅設計圖,外觀古樸耐看
占地:87平方米左右
120平米農村三層房屋設計圖,客廳中空,戶型合理
占地:120平方米
歐式大氣新農村三層別墅豪宅設計圖,外觀高端,對稱設計
占地:225平方米左右
農村四間三層豪華別墅設計方案圖,造型輕奢雅致
占地:200平方米
農村二層樓房設計圖紙,含全套設計方案(施工圖+效果圖)
占地:98平方米
160平方米農村二層別墅設計效果圖帶CAD建筑圖
占地:160平方米
12x13米豪華三層農村別墅設計圖,宅基地上的貴族人生
占地:156平方米
帶架空層的三層農村別墅設計火了!雨季不怕返潮
占地:147.15平方米
農村帶地下室二層半自建房屋設計圖,樓中樓設計,歐式風格
占地:140平方米
160平方米經典鄉村二層房屋設計圖紙
占地:160平方米
農村二層四合院設計圖,秒殺各種洋別墅
占地:220平方米
歐式漂亮農村三層自建房設計圖紙,兩個戶型方案可選
占地:多戶型可選
300平四層別墅房屋設計圖,含外觀效果圖,大面積、多臥室
占地:261平方米
雅致的鄉下二層蓋別墅設計圖紙,造價35萬左右
占地:178平方米
農村4間3層樓房設計圖,帶車庫,挑空客廳,坡屋頂設計
占地:160平方米
兄弟四間三層雙拼別墅設計圖,造價40萬左右
占地:210平方米
農村兩層新中式別墅圖紙設計圖,外觀圖片大氣,21萬左右
占地:108平方米
經典三層別墅設計圖紙(全套施工圖+效果圖),新農村自建推薦
占地:123平方米
復式200平米三層樓房設計圖紙,大露臺還有健身房和書房
占地:200平方米
推薦:10套新農村自建房設計圖,2026年最新設計
閱讀次數:4825737次
100套鄉村別墅圖片大全,2026年最新設計
閱讀次數:2492203次
6款農村蓋一層平房的設計圖,10萬元就能建起來
閱讀次數:1852637次
這11個一層農村自建房別墅火爆了朋友圈!我最喜歡戶型十!你呢
閱讀次數:750268次
農村6萬元建一層小別墅圖,你敢相信嗎
閱讀次數:567686次
農村5萬塊就能自建房,6套普通房子設計圖分享,你沒看錯!
閱讀次數:419410次
8套農村漂亮三間平房圖片,非常適合在農村修建!
閱讀次數:411197次
農村自建房化糞池怎么做?附方案及施工過程
閱讀次數:391783次
農村一層三間平房設計圖,告別土氣養老房,讓人忍不住點贊
閱讀次數:350581次
新農村二層樓房圖片造價12萬,挑一套回家建房吧!
閱讀次數:349126次
