
|
現在農村人口簡單,大家也越來越務實,建房子不會再一味的攀比,很多人會選擇蓋個一層,也有的會選擇蓋一層半,設計的另外半層可以根據家庭需求靈活使用,而且造價也不會太高。一層板的自建房力求新求變,今天這3款一層半的農村自建房大家看是否能夠滿足你的需求呢? 戶型一
該戶型開間21.34米,進深14米,占地面積230.87平方米。這是一款外觀清新素雅,配色簡單樸素的自建房戶型,門外設計走廊,直通內部,羅馬柱的設計讓整個房屋更顯氣勢,閣樓尖頂的造型非常別致。
建筑入戶就是一個空間開闊的堂屋,和客廳相連,讓視野更加開闊。餐廳廚房相鄰,但是又單獨分開,可以有效保持室內整潔干凈。一共設計有5間臥室,可以滿足三代人的居住需求,同時還設計了洗衣房和雜物間,大大提高了居住的便利性。 戶型二
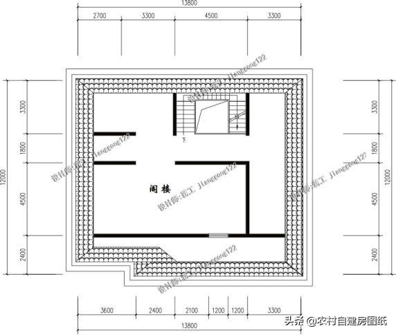
該戶型開間13.8米,進深12米,占地面積138.15平方米。主體采用淺色瓷磚,屋頂鋪設洋紅色西瓦,門前的六根頂梁柱闊氣十足,外觀和整體效果都很不錯。寬敞的入戶門廳,臺階式入戶,經濟適用型的典型建筑。
建筑入戶是客廳,餐廳和客廳在北面,用推拉門做分離式設計,既可以保證室內干凈無污染,又節省了交通面積。一共設計三間臥室,其中一間是帶衛生間的套房,可以作為老人房。戶型設計閣樓,可以做衣帽間,儲藏間,工具間,雜物間使用。 戶型三
該戶型開間11.7米,進深11.1米,占地面積137.8平方米。這個是經典的一層半自建房彗星,整個外墻以深褐色真石漆為主,大方又時尚,設計感十足的屋頂是整棟建筑的點睛之筆,顏值高,而且在多余的南方地區還有利于排水。造價20萬左右,造價經濟又美觀。
一層設計客廳,餐廳,廚房,公衛,棋牌室。一共設計兩間臥室,其中一件是帶套房的設計。餐廳客廳相連,互借空間,增加室內活動空間,棋牌室豐富鄉村生活,如果需要棋牌室,也可以根據家庭需求設置。這一棟建筑的閣樓設計了2間臥室,一間起居室以及一間公衛,多臥室的設計滿足一半家庭居住需求,可以和樓下形成兩個獨立的空間。 這三款設計造型別致,但是取材簡單,易于建造。對于人口簡單的家庭來說這樣的一層半房屋已經足夠,還可以留出多余的空間招待客人。 圖紙之家-專注農村別墅/自建房設計18年,集合國內200余位經驗豐富的設計師,被評為口碑最好的農村建筑設計公司! |

農村自建房就選它!一層新中式設計,日常居住需求全搞定
占地:128.45平方米
農村二層小別墅自建房屋設計圖,客廳中空,占地150平米
占地:150平方米
16米乘12米農村二層別墅設計圖,布局舒適寬敞、客廳挑空
占地:188.18平方米
農村4間2層樓房設計圖,帶車庫,外觀時尚,帶屋頂花園
占地:210平方米
舒適大方三層房屋設計圖紙及圖片,占地150平米,布局合理,臥室
占地:150平方米
140平方米新農村二層自建平屋頂房屋設計圖紙帶外觀效果圖
占地:140平方米左右
回村蓋一層養老房別墅設計圖紙,面寬16米四開間戶型圖
占地:127平方米左右
農村小別墅一層設計圖紙,外觀漂亮極了,130和160兩個戶型
占地:多種戶型可選
復式別墅農村四層霸氣豪宅設計圖紙,建好你就是村里第一
占地:136.356平方米
160平方米二層自建別墅設計施工建筑圖紙及效果圖,15x11米
占地:163平方米
帶地下室三層新農村房屋設計圖紙,外觀效果大氣
占地:220平方米
簡單農村二層自建房子設計圖,主體18萬就能建好,太心動了!
占地:124.53
二層歐式別墅設計圖,挑空客廳+柴火灶,12.5米乘12米
占地:131.25平方米
農村房子設計圖三層獨棟別墅方案,占地130平方米
占地:130平方米
210平米新農村自建二層施工圖紙,預留電梯位,美觀大氣舒適實用
占地:208.5平方米
帶車庫現代三層房屋別墅設計圖,占地110平米左右,功能齊全
占地:110平米
預算20萬的農村三層房屋設計圖方案,帶外觀效果圖
占地:115平方米
農村新款二層中式別墅設計圖效果圖,帶堂屋設計
占地:144平方米
三層歐式自建房別墅設計方案,11x11米洋氣實用,飽受大家好評
占地:127平方米
帶小院七字形一層自建房戶型設計圖,平屋頂圖紙
占地:201.08平方米
推薦:10套新農村自建房設計圖,2026年最新設計
閱讀次數:4825737次
100套鄉村別墅圖片大全,2026年最新設計
閱讀次數:2492203次
6款農村蓋一層平房的設計圖,10萬元就能建起來
閱讀次數:1852637次
這11個一層農村自建房別墅火爆了朋友圈!我最喜歡戶型十!你呢
閱讀次數:750268次
農村6萬元建一層小別墅圖,你敢相信嗎
閱讀次數:567686次
農村5萬塊就能自建房,6套普通房子設計圖分享,你沒看錯!
閱讀次數:419410次
8套農村漂亮三間平房圖片,非常適合在農村修建!
閱讀次數:411197次
農村自建房化糞池怎么做?附方案及施工過程
閱讀次數:391783次
農村一層三間平房設計圖,告別土氣養老房,讓人忍不住點贊
閱讀次數:350581次
新農村二層樓房圖片造價12萬,挑一套回家建房吧!
閱讀次數:349126次
