
|
現代化的農村自建房,以建筑之美結合現代流行元素,展現與時俱進的傳統農村住宅特點,通過對傳統文化的發展和傳承,打造富有情趣的獨有的生活韻味。 今天這款成都龐先生定制款一層農村別墅,讓人耳目一新,每一處都驚艷。
龐先生想蓋一個三合院,有很多的想法,并且自己也參考著圖紙畫了很多平面功能圖,這是自己畫的。
外墻簡單大氣,主要以黑白灰作為基礎色調,中間輔以紅色、橘色作為點綴。視覺效果豐富,復古又具有時尚的氣息。
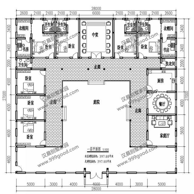
平面圖,入戶即是開闊的庭院,功能比較簡單。靠近北面的正堂旁邊的臥室都帶有衛生間,左邊是次臥右邊是獨立的餐廳廚房和家庭廳設計。
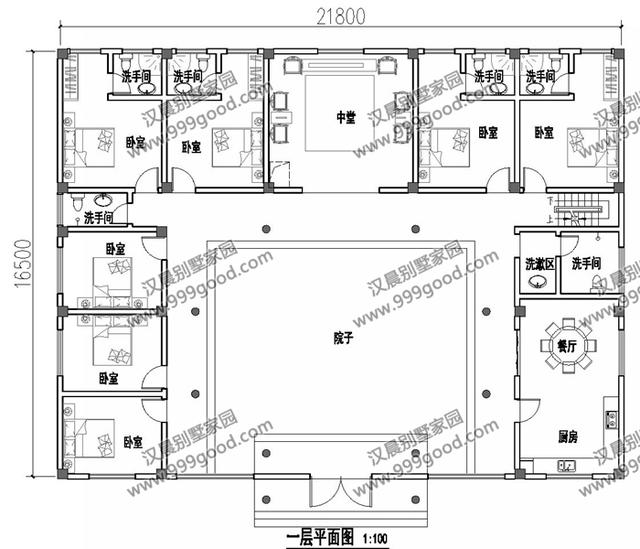
一棟差不多結構的農村三合院,占地和開間進深都小,相對來說更適合農村自建。
平面圖,布局結構非常相似,正堂接待親朋好友,臥室主次分明。廚房、餐廳洗手間等外建,很好的做到了潔污分區。
關注本頭條號,更多農村別墅圖紙,自建房施工經驗分享! 圖紙之家-專注農村別墅/自建房設計18年,集合國內200余位經驗豐富的設計師,被評為口碑最好的農村建筑設計公司! |

農村中式二層4開間別墅圖紙設計方案圖,帶車庫戶型
占地:198平方米
110平方米新農村實用現代的二層建筑設計圖紙帶外觀圖11X10米
占地:110平方米
豪華三層歐式風格別墅圖紙設計,挑空客廳大面寬大戶型
占地:225.72平方米
徽派自建房一層設計圖,七字型設計,獨立餐廚便捷實用
占地:171.65平方米
四層農村別墅設計圖,一二層都有廚房和餐廳的戶型方案
占地:128.52平方米
回農村建養老房,還是一層平頂戶型最合適,不單單只是省錢
占地:102.24平方米
戶型獨特的、二層臥室挑高的別墅房屋設計圖,外觀簡歐風格
占地:250平方米
人氣頗高的三層新中式別墅方案,五種戶型,五種尺寸
占地:120-165平方米
320平方米高端農村帶車庫四合院別墅設計圖,徽派韻味十足
占地:320.89平方米
農村兩間兩層樓房設計圖,造價15萬左右,獨立的廚房設計,干凈
占地:95平方米
最新12x9米一層平房別墅設計圖,好看不貴居住舒適!
占地:108平方米
最實用一層小別墅設計方案,造價不高顏值高,家家都喜歡!
占地:143.48平方米
新款農村三拼三戶別墅設計圖及效果圖三層戶型,外觀靚麗新穎
占地:360平方米
兄弟雙拼別墅設計戶型圖及設計方案圖,帶外觀效果圖,外觀好看
占地:185平方米(單棟)
簡單實用農村自建小樓二層別墅設計圖,戶型造型簡約好看
占地:146平方米
實用農村10萬一層小別墅戶型圖及圖紙,全套施工圖
占地:多種面積
鄉村房屋改建三層房屋設計圖紙,農村樓房設計圖推薦
占地:90平方米
一層帶閣樓農村別墅設計圖,多得一層可變空間,太值了!
占地:165.89平方米
農村25萬別墅款式二層自建房設計圖,外觀簡約大氣
占地:多種戶型
125平方米復式三層別墅房屋設計圖,房間多,采光好
占地:125平方米
推薦:10套新農村自建房設計圖,2026年最新設計
閱讀次數:4825737次
100套鄉村別墅圖片大全,2026年最新設計
閱讀次數:2492203次
6款農村蓋一層平房的設計圖,10萬元就能建起來
閱讀次數:1852637次
這11個一層農村自建房別墅火爆了朋友圈!我最喜歡戶型十!你呢
閱讀次數:750268次
農村6萬元建一層小別墅圖,你敢相信嗎
閱讀次數:567686次
農村5萬塊就能自建房,6套普通房子設計圖分享,你沒看錯!
閱讀次數:419410次
8套農村漂亮三間平房圖片,非常適合在農村修建!
閱讀次數:411197次
農村自建房化糞池怎么做?附方案及施工過程
閱讀次數:391783次
農村一層三間平房設計圖,告別土氣養老房,讓人忍不住點贊
閱讀次數:350581次
新農村二層樓房圖片造價12萬,挑一套回家建房吧!
閱讀次數:349126次
