
|
以前都是大城市堵車嚴重,但是現在的一些小縣城也是如此。人們的生活水平提高了,買私家車的人也愈發的多。特別是農村,現在幾乎是每個家庭配備一輛小轎車,沒錢的也花個幾萬塊錢買部二手車。畢竟村里都修好了水泥路,去縣里采購或者出門辦事也方便得多。家里有了小車,車庫自然是不能少的,如果你的車直接停放在露天下,風吹日曬雨淋,那么你家的愛車必定壽命不長。 今天分享幾款帶車庫設計的二層別墅設計圖紙,適不適合你家的宅基地呢? 第一套 圖紙基本信息 開間:15.0m 進深:12m 占地面積:180平方米 總建筑面積:210平方米 建筑層高:二層 主體造價:22萬 結構形式:框架結構
該戶型占地180平米,算是比較大的戶型,室內功能空間尺寸適宜,布局緊湊合理。不因面積大而隨意設計,否則會顯得空曠無章。房屋右側設有開放式車庫,節省不少建筑材料。車庫旁邊還設計了小菜園,符合農村生活習慣,自給自足,無污染無危害。 平面圖:
一層:客廳、餐廳、廚房、臥室×2、衛生間、車庫、小菜園;
二層:健身廳、臥室×2、主臥(帶內衛、露臺)、衛生間、露臺; 第二套 圖紙屬性 層數:二層 結構形式:框架結構 主體造價:20-25萬 開間:11.7米 進深:13.7米 占地面積:145.45平方米 總建筑面積:235.19平方米
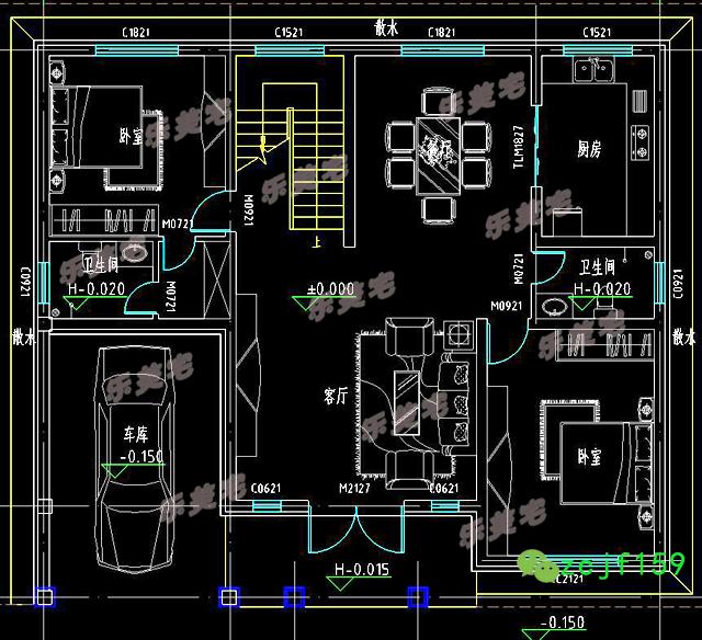
該戶型造價在25萬以內,田園歐式風格別墅,內帶庭院及開放式車庫,私家車的出入方便。車庫上方為露臺,可以觀賞到全院的美景,也可以把露臺上布置成一個小的休閑空間,看書、喝茶、發呆等。 平面圖:
一 層:客廳、臥室(帶內衛)、廚房、餐廳、衛生間、車庫
二 層:3臥室、臥室(帶書房、衣帽間、內衛)、衛生間、露臺 第三套 圖紙屬性 層數: 二層結構形式: 磚混結構主體造價: 20-25萬 開間: 11.5米進深: 12米占地面積: 153.18平方米建筑面積: 270平方米
黃色的真石漆外墻,少許的文化石點綴,顯得非常時尚,均有文化底蘊。屋頂設計錯落有致,高聳的門庭屋面與屋頂相對應。黑色鐵藝窗架和露臺護欄增添該別墅的神秘感。 室內平面布局圖:
一層平面圖 一 層:客廳、廚房、餐廳、衛生間、臥室、臥室(帶內衛)、車庫
二層平面圖 二 層:客廳、臥室(帶內衛)、2臥室、衛生間、露臺、書房 圖紙之家-專注農村別墅/自建房設計18年,集合國內200余位經驗豐富的設計師,被評為口碑最好的農村建筑設計公司! |

面寬12米新中式三層別墅設計圖,回家建房就選它,全家人都愛的
占地:180平方米
帶地下室的農村自建三層半歐式別墅設計圖,看著真豪氣!
占地:142.45平方米
2026新款農村四層別墅設計圖紙戶型圖,帶挑空客廳
占地:150平方米
新中式二層雙拼樓房設計圖,單戶面積100平米左右,實用美觀
占地:200平方米
自建二層獨棟別墅建筑施工圖,含效果圖和全套設計圖紙
占地:198.72平方米
豪華新中式兩層半農村別墅設計圖,繁華之外,心之所向
占地:290.4平方米
農村養老房還是一層好,帶閣樓的一層房子設計圖
占地:135平方米
150平方米農村二層磚混結構別墅施工建筑設計圖,平頂設計
占地:150平方米
18×15米新中式高檔農村三層別墅設計圖,低調奢華又實用
占地:195.91平方米
135平方米新農村三層別墅設計圖紙,外觀效果圖很漂亮
占地:134平方米
農村二層小別墅圖片,二層別墅效果圖及設計圖
占地:153平方米
新徽派農村三層小別墅設計圖,白墻黛瓦中式風,12米乘11米
占地:115.46平方米
四層復式別墅設計方案,外觀氣派布局實用,舒適宜居美極了!
占地:204.64平方米
高端三層帶地下室別墅房屋設計圖方案及效果圖
占地:135平方米
帶車庫二層別墅設計圖及效果圖,帶車庫的農村二層樓房推薦
占地:123平方米
150平米左右農村二層房屋設計圖,造價25萬左右漂亮實用
占地:150平方米
新中式120平米農村20萬元二層小樓圖,外觀柔和而雅致
占地:120平方米
兄弟共建一層雙拼平房設計圖,省錢省心又可相互照應
占地:177.27平方米
農村三層雙拼房屋建筑施工設計圖紙,帶車庫
占地:180平方米
農村一層半房屋設計圖,帶外觀效果圖,外觀時尚
占地:155平方米
推薦:10套新農村自建房設計圖,2026年最新設計
閱讀次數:4825737次
100套鄉村別墅圖片大全,2026年最新設計
閱讀次數:2492203次
6款農村蓋一層平房的設計圖,10萬元就能建起來
閱讀次數:1852637次
這11個一層農村自建房別墅火爆了朋友圈!我最喜歡戶型十!你呢
閱讀次數:750268次
農村6萬元建一層小別墅圖,你敢相信嗎
閱讀次數:567686次
農村5萬塊就能自建房,6套普通房子設計圖分享,你沒看錯!
閱讀次數:419410次
8套農村漂亮三間平房圖片,非常適合在農村修建!
閱讀次數:411197次
農村自建房化糞池怎么做?附方案及施工過程
閱讀次數:391783次
農村一層三間平房設計圖,告別土氣養老房,讓人忍不住點贊
閱讀次數:350581次
新農村二層樓房圖片造價12萬,挑一套回家建房吧!
閱讀次數:349126次
