
|
現在的生活水平變得越來越高,相信大家對別墅都是很熟悉了吧,別墅的優點不言而喻,所以想要建造別墅,住別墅的人越來越多了,別墅的建造風格,外觀種類也是不不勝數,下面這三款別墅是否吸引住你的眼球了呢?? 戶型一
編號:3409 架構形式:磚混 占地尺寸:8.8m×16.8m 占地面積:147.84㎡ 建筑面積:356.26㎡
一樓的神位,也是保留了中國傳統建筑的一個特點,也是許多戶主所需要的,功能房比較多,比較齊全,是比較現代的設計能更好的享受生活。當然6個臥室的設計更適合大戶人家的選擇。當然這個超大露臺更是讓人駐足的地方。 戶型二
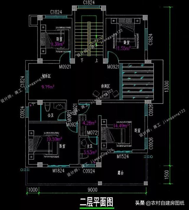
編號:3407 結構形式:磚混 占地尺寸:9m×13.3m 占地面積:120.65㎡ 建筑面積:339.19㎡
這款別墅的外觀不像一般的建筑外觀都是規規矩矩的,雖然它是方形但是有高低起伏變化,同時,玻璃墻運用的比較多,開窗的尺度也比較大,給建筑本身增添了一種時尚感。所以對于采光的問題就不必擔心了。 戶型三
編號:3412 結構形式:框架 占地尺寸:6m×13m 占地面積:62.03㎡ 建筑面積:186.73㎡
不同于前兩款,這款戶型較小,整體設計也更偏向于年輕化,外觀顏色以黑白搭配為主,更樸素,雅潔,更經典,同樣大膽的玻璃墻的運用。 圖紙之家-專注農村別墅/自建房設計18年,集合國內200余位經驗豐富的設計師,被評為口碑最好的農村建筑設計公司! |

140平方米歐式三層別墅建筑設計圖紙,復式結構
占地:140平方米
60多平三層現代風格別墅設計圖,小戶型平屋頂
占地:66.4平方米
?13.5x9米這尺寸火了!好多人家照著建這款二層別墅,簡單實用
占地:115.11平方米
廚房餐廳在配房的歐式三層農村別墅設計方案,華麗又宜居
占地:177.58平方米
農村二層小別墅圖片,二層別墅效果圖及設計圖
占地:153平方米
超漂亮的二層別墅設計圖,外觀對稱設計,建好很大氣
占地:255平方米
現代三層復式小別墅設計圖及外觀圖片,25萬造價
占地:105平方米
農村三間三層豪宅設計圖,自建別墅推薦戶型,帶地下室
占地:170平方米
2026兩層半20多萬農村自建房圖,簡歐風格,美觀大氣
占地:120平方米
適合小面寬宅基地的兩開間別墅設計圖,8.5米乘13.5米
占地:107.66平方米
經濟實惠一層戶型圖,農村養老房舒適至上,簡約而不失溫馨
占地:147.5平方米
高端大氣三層歐式別墅設計圖,客廳中空,旋轉樓梯
占地:150平方米
歐式獨棟二層小別墅設計圖,客廳中空,占地126平米
占地:120平方米
140平方米一層歐式新農村平房設計圖,主體造價僅11萬
占地:141.218平方米
一層合院中式小別院設計圖,白墻灰瓦,愜意十足!
占地:219平方米
150平米左右歐式三層鄉村別墅設計圖,客廳中空
占地:150平方米
復式三層別墅設計圖片及全套圖紙,客廳中空,外觀為歐式建筑的
占地:175平方米
160平方米新農村自建二層樓房設計圖紙及效果圖,15x11米
占地:160平方米
160平方米農村三層別墅CAD設計圖紙及效果圖,13.7x12.6米
占地:160平方米
偏中式徽派的二層房屋農村別墅設計圖,馬頭墻小青瓦
占地:123.36平方米
推薦:10套新農村自建房設計圖,2026年最新設計
閱讀次數:4825737次
100套鄉村別墅圖片大全,2026年最新設計
閱讀次數:2492203次
6款農村蓋一層平房的設計圖,10萬元就能建起來
閱讀次數:1852637次
這11個一層農村自建房別墅火爆了朋友圈!我最喜歡戶型十!你呢
閱讀次數:750268次
農村6萬元建一層小別墅圖,你敢相信嗎
閱讀次數:567686次
農村5萬塊就能自建房,6套普通房子設計圖分享,你沒看錯!
閱讀次數:419410次
8套農村漂亮三間平房圖片,非常適合在農村修建!
閱讀次數:411197次
農村自建房化糞池怎么做?附方案及施工過程
閱讀次數:391783次
農村一層三間平房設計圖,告別土氣養老房,讓人忍不住點贊
閱讀次數:350581次
新農村二層樓房圖片造價12萬,挑一套回家建房吧!
閱讀次數:349126次
