
|
現代風格的別墅已經屢見不鮮,但在農村見得卻不多見。簡潔的外觀和大面積的落地窗構成了它主要的元素,相比于歐式或者中式風格的別墅,它少了許多復雜的裝飾元素,更多的是簡單的形體關系,今天給大家帶來一款現代風格的兩層別墅,外觀精致小巧,適合家里人數不是很多的家庭,亦可用來做度假的別墅。
效果圖
建房背景: 一個月前的深夜我們接到了來自廣東深圳的一個電話,電話那頭是一個中年男人的聲音,很低沉和沙啞。交流當中,他向我們說明自己老家的房子年初便打算重建,思索了很久,不知道該建一棟怎樣的房子合適,村里面大部分都是歐式風格,自己卻不喜歡那種樣式,覺得太浮夸,沒有居住的樂趣。我們便問他,他想要的房子應該是種怎么樣的居住體驗?他說道:家人都喜歡早上陽光灑進室內的感覺,房間有大大的落地窗,推開門便能看見美麗的景色,院子里是成片的草地,一家人可以在草地上休閑玩耍,房子不要太大,有溫馨感,干凈而又精致。于是在接下來的一個月里面我們從溝通到方案調整,一步步勾勒出了他們心目中想要的家的感覺。
側面
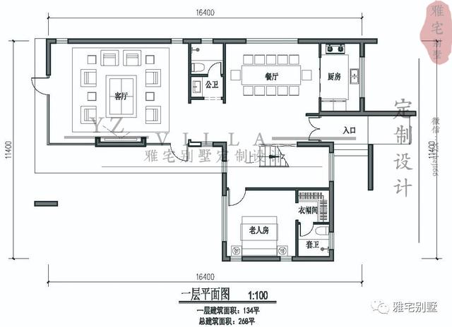
別墅參數: 開間:16.4米 進深:11.4米 占地面積:134平 總面積:268平 主體結構:框架結構 室內:4室2廳,1廚5衛,3陽臺
入口
別墅入戶選擇低調小道,靜謐而不張揚。 平面圖:
一層平面
別墅坐西朝東,村中主要馬路在東側,別墅又東側馬路進入庭院,經過庭院內的小路抵達入戶門廳。別墅在入口上選擇隱秘低調的形式,進入室內后便豁然開朗,開放式的餐廚空間,使得入戶便能享受大的空間感受。客廳面積較大,方便家中孩子的玩耍和招待客人,轉角的落地窗,入戶那一刻便能看見室外的景色,使人心曠神怡。老人房帶獨立衛生間和衣帽間,南向是展開落地窗,面向院內。
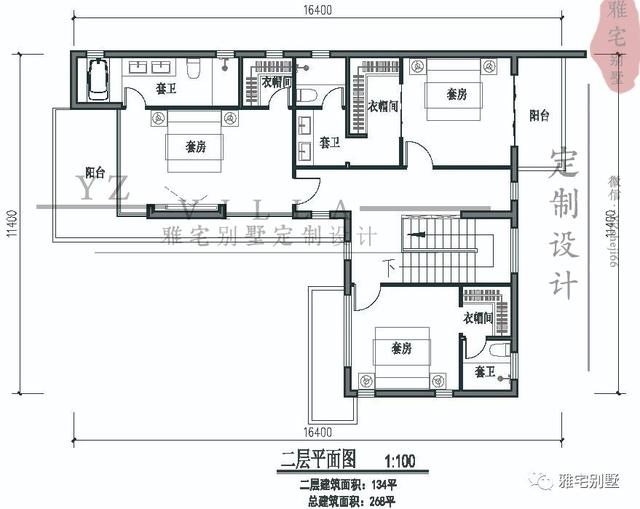
二層平面 二層準備了三個套房,每個套房都帶獨立衣帽間,衛生間和陽臺。 其他角度:
南側
南側落地窗和實墻相結合,形成了強烈的虛實對比,房間布局上朝南一側盡可能的多開窗,使是院內景色能更好地融入室內。
西側
別墅西側實墻為主,開窗也以豎向的小條形窗戶為主,減少西曬對整個房子的影響,達到最佳的熱比平衡。
北側
北側以高低錯落來塑造單面的外觀。
鳥瞰
別墅主體造型上分兩個層次。
鳥瞰圖 局部運用廊架的元素,形成虛實的反差。 房子是我們居住的載體,承擔我們居住的功能,是日常生活圍繞的核心,居住的體驗感需要我們自己去發掘,營造一個家人都喜歡的生活氛圍和居住環境,沒有好壞之分,適合自己才是最重要的,每人對自己的生活都有不同的想法好構思,這也是居住的差異性。適合的自己的就是一個好的房子。 圖紙之家-專注農村別墅/自建房設計18年,集合國內200余位經驗豐富的設計師,被評為口碑最好的農村建筑設計公司! |

農村自建房別再做傳統客廳!“客廳+茶室”一體設計,寬敞明亮
占地:143.73平方米
占地170平米2026新款三層別墅設計圖片及設計方案
占地:170平方米
160平方米三層帶大露臺的復式別墅設計圖紙
占地:155平方米
農村一層平房別墅設計施工圖效果圖,外觀簡約時尚,17萬到19萬
占地:168平方米
新農村二層歐式別墅設計圖,外觀漂亮,主體18萬起建
占地:115.2平方米
網紅中式一層三合院別墅設計圖,白墻黛瓦古典大氣,讓人心曠神
占地:248.82平方米
165平方米三層雙拼農村房屋設計圖大全14x12
占地:168平方米
歐式三層豪宅樓設計圖紙及外觀效果圖,占地180平左右
占地:177.82平方米
一層農村必蓋戶型設計方案,養老自住兩相宜,經濟實惠又耐用!
占地:150.36平方米
面寬10米左右的三層農村別墅設計案例,低調又奢華
占地:120平方米
預算30萬三層樓房設計圖含效果圖,戶型經典
占地:125平方米
新中式三層別墅設計圖紙(含效果圖),110平農村自建房施工圖推
占地:110平方米
農村15萬元二層小樓圖,占地100平米左右,簡單實用,戶型合理
占地:100平方米
進深14米的二層小別墅設計圖,農村自建房好方案
占地:144平方米左右
新農村二層客廳挑高樓房設計圖,外觀歐式風格
占地:178平方米
新農村四層房屋設計圖紙,高端大氣,占地150平方米
占地:150平方米
高端大氣中式四合院二層別墅小樓設計圖,外觀古香古色
占地:213平方米
帶地下室的一層別墅設計圖,農村自建房比較合適
占地:206平方米
120平方米農村四層別墅施工設計圖紙及效果圖
占地:120平方米
農村四間二層小洋樓設計圖,歐式別墅、現代洋氣
占地:200平方米
推薦:10套新農村自建房設計圖,2026年最新設計
閱讀次數:4825737次
100套鄉村別墅圖片大全,2026年最新設計
閱讀次數:2492203次
6款農村蓋一層平房的設計圖,10萬元就能建起來
閱讀次數:1852637次
這11個一層農村自建房別墅火爆了朋友圈!我最喜歡戶型十!你呢
閱讀次數:750268次
農村6萬元建一層小別墅圖,你敢相信嗎
閱讀次數:567686次
農村5萬塊就能自建房,6套普通房子設計圖分享,你沒看錯!
閱讀次數:419410次
8套農村漂亮三間平房圖片,非常適合在農村修建!
閱讀次數:411197次
農村自建房化糞池怎么做?附方案及施工過程
閱讀次數:391783次
農村一層三間平房設計圖,告別土氣養老房,讓人忍不住點贊
閱讀次數:350581次
新農村二層樓房圖片造價12萬,挑一套回家建房吧!
閱讀次數:349126次
