
|
項目概況
△總平面示意圖 基地情況: 東:村內道路 西:鄰家住宅 南:村內道路 北:鄰家住宅 項目簡介: 業主在項目前期溝通時并未提出過多具體的設計需求,只希望設計師能夠預留出堂屋和雙臥室,并提供易蓋房圖庫中642編號的項目以供設計師參考。 設計師根據業主建議和場地情況,將項目形式確定為南北朝向的二層新中式別墅。 平面布局 戶型概況: 2層 /5室 1堂屋 2廳 2衛 1廚 1儲藏 2衣帽 1書房 1平臺 1陽臺 1露臺
△一層平面圖 一層主要設置堂屋與客廳相鄰,和東北側客房相呼應,便于接待。東側的臥室設置成長輩臥室,搭配衣帽間使用。
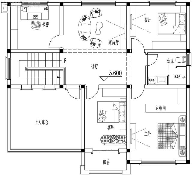
△二層平面圖 二層空間定位于日常居住,設置三室一廳的基本配置書房,為成年人提供了閑暇時安靜的閱讀和工作空間;同時搭配陽臺和觀景露臺,為日常起居提供更多休閑空間。 造型設計
△南側效果圖 建筑整體為新中式風格,立面采用暖色打造淡雅基調,配合褐色和連鎖瓦屋頂讓建筑視覺上干凈有韻味。平面凹凸有致讓建筑層次自然展現,配合庭院設計,視覺上十分豐富。
△鳥瞰圖 建筑立面采用真石漆勾縫,局部使用文化石,深淺交替間讓整體輕快起來。淺色立面點亮視覺,自然達到空間劃分的效果。頂層陽臺和露臺相呼應,搭配簡約大方的屋頂樣式讓建筑視覺上十分舒適。
△西南側效果圖 二層護欄在顏色上與屋頂相呼應,采用中式古樸設計工藝打造出精致感。正門位置的裝飾使得室內外空間過渡明確,并增加了儀式感。
△鳥瞰圖
△東南側效果圖 建筑坐落在基地上自然形成庭院部分。立面墻體稍顯單調空間使用綠植配合低矮灌木或盆栽鮮花,讓視覺上豐富不少。
△東立面圖
△西立面圖
△南立面圖
△北立面圖 圖紙之家-專注農村別墅/自建房設計18年,集合國內200余位經驗豐富的設計師,被評為口碑最好的農村建筑設計公司! |

帶架空層的農村二層別墅設計方案,造型大氣漂亮
占地:176平方米
2026最新款獨棟中西雙餐廳三層別墅設計圖,精巧實用好看不貴
占地:226.12平方米
新農村一層平屋頂簡單自建房別墅設計圖紙,全套設計
占地:130平方米
農村三層雙拼房屋建筑施工設計圖紙,帶車庫
占地:180平方米
新中式三層歐式別墅設計圖,盡顯貴族風范,占地135平
占地:134.37平方米
造價30萬多的三層簡歐新農村別墅設計施工圖紙及效果圖
占地:133平方米左右
10×12米三層別墅戶型,挑空大客廳設計,圈粉無數的爆款方案
占地:120平方米
平屋頂四間一層農村自建房設計圖紙,經濟時尚
占地:144平方米
新款農村三拼三戶別墅設計圖及效果圖三層戶型,外觀靚麗新穎
占地:360平方米
簡單實用農村自建房五間一層別墅設計圖,多款戶型
占地:多戶型可選
三間三層房子設計圖,高端三層樓房設計圖,三層兩個大露臺
占地:170平方米
小面寬農村兩開間二層小別墅,簡單實用雖小但不擁擠
占地:118.56平方米
95平米二層別墅必蓋戶型圖,造型洋氣,布局接地氣,趕緊回村建
占地:95.38平方米
面寬9米的三層農村自建房設計圖,適合鄉下地區自建
占地:121.94平方米
新中式三層雙拼別墅設計圖及效果圖,中式大氣風格
占地:235.26平方米
對稱一層農村養老別墅設計方案,室內戶型布局合理,14x12米
占地:141.46平方米
30萬以下的經典二層新農村別墅設計圖紙及效果圖,簡單大氣
占地:170平方米
L字型自建房屋設計圖,一層別墅類型,外觀效果圖漂亮
占地:188.62平方米
180平方現代風三層別墅設計圖,經典大氣,百看不厭
占地:180.48平方米
奢華歐式二層樓房設計圖,入戶設有玄關,一層大窗設計
占地:190平方米
推薦:10套新農村自建房設計圖,2026年最新設計
閱讀次數:4825737次
100套鄉村別墅圖片大全,2026年最新設計
閱讀次數:2492203次
6款農村蓋一層平房的設計圖,10萬元就能建起來
閱讀次數:1852637次
這11個一層農村自建房別墅火爆了朋友圈!我最喜歡戶型十!你呢
閱讀次數:750268次
農村6萬元建一層小別墅圖,你敢相信嗎
閱讀次數:567686次
農村5萬塊就能自建房,6套普通房子設計圖分享,你沒看錯!
閱讀次數:419410次
8套農村漂亮三間平房圖片,非常適合在農村修建!
閱讀次數:411197次
農村自建房化糞池怎么做?附方案及施工過程
閱讀次數:391783次
農村一層三間平房設計圖,告別土氣養老房,讓人忍不住點贊
閱讀次數:350581次
新農村二層樓房圖片造價12萬,挑一套回家建房吧!
閱讀次數:349126次
