
|
每個人都想建一棟豪華別墅,這樣自己肯定能成為全村最靚的仔。但是前提是你有這個資本和實力,最主要的是有最夠大的宅基地,因為豪華類的歐式別墅,基本上占地面積150平以上,畢竟房子大才能撐起豪華。并且房子的高度是有一定的要求的,太低了只會顯得臃腫。
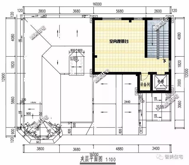
農村建房很少有設計室內電梯的,因為大部分人建房高度不會太大。但是如果家里老人小孩比較多的話,特別是行動不便,然后建房資金足夠的話,建豪華別墅,裝個室內電梯簡直吊炸天!
戶型立面外觀上:這款戶型還設計有夾層,高度為2.8米,并且室內電梯可通往。夾層屋頂和房子屋頂均采用的是紅色釉面瓦鋪蓋。主墻面為黃色真石漆搭配藍灰色仿蘑菇石面磚和浮雕裝飾,其中所有的窗套均為咖啡色真石漆。
== 戶型細節介紹 == 這款戶型比較亮點的地方之一在于其多邊形設計的涼亭,種植一些花草,擺上休閑桌和休閑椅,非常適合日常家里觀景休閑。
戶型設計陽光房,面積10.5m²左右大小,采用玻璃與金屬框架搭建,不僅能在冬天享受陽光,親近自然,更是居家休閑的寶地。
屋頂的設計包含夾層屋頂和房屋頂,其中房屋頂開有小的老虎窗。
一層高度3.9米,平面布局為:2主臥室+主衛、次臥室+主衛、大客廳、小客廳、棋牌室、門廳、大廳、電梯井。每個臥室帶衛生間看起來很奢侈,但是非常實用。客廳位置多處采用輕質隔斷隔開,這個屬于業主自理的范圍,所以未多加注釋。
二層高度3.6米,平面布局為:主臥室+2主衛、次臥室+主衛、小臥室、茶廳、客廳、書房、陽臺。二層四間臥室有三個是帶衛生間的,沒有公衛。
三層高度3.6米,平面布局為:臥室+書房+主衛的套間、家庭KTV、公衛、健身房、設備間和電梯井、陽臺+玻璃房、涼亭+露臺。
夾層高度為2.8米,高程為11.1米~13.9米,主要作為室內的觀景臺。
建豪華別墅,不一定是為了顯耀自己家多有實力多有錢。只是在自己的能力范圍內建自己想要的別墅,畢竟現在的農村也是“藏龍臥虎”,別人住平房說不定都比你家有錢。 圖紙之家-專注農村別墅/自建房設計18年,集合國內200余位經驗豐富的設計師,被評為口碑最好的農村建筑設計公司! |

農村二層L戶型農村別墅!設計圖簡約時尚又大氣,住著超舒適
占地:170.55平方米
10米×13米最好看的農村三層樓房圖,客廳中空
占地:124平方米
小型雙拼一層平房設計圖,外觀古樸
占地:100平方米
帶堂屋二層小別墅設計圖紙帶外觀圖,13.6米x9米
占地:122.4平方米
120平二層別墅房屋設計圖,造型美觀、現代
占地:120平方米
農村三間兩層樓房設計圖,背面不開窗,氣勢上就勝人一籌
占地:153.7平方米
單棟多戶三層別墅設計圖,適合兩三家一起住
占地:125平米
185平方米二層自建別墅設計施工圖紙及外觀效果圖,15x13米
占地:186平方米
超漂亮的二層別墅設計圖,外觀對稱設計,建好很大氣
占地:255平方米
爆款農村兄弟雙拼自建房設計圖,占地不大舒適宜居
占地:147.2平方米
高端大氣三層雙拼自建房設計圖,外觀漂亮,240平左右
占地:240平方米
新農村三層房屋設計圖紙(含效果圖),農村小別墅圖紙推薦
占地:116.15平方米
帶地下室的農村三層雙拼別墅設計圖,復式戶型,面寬23米
占地:261.6平方米左右
鄉下三層大氣房子設計圖,外觀挺高大上的,主體29萬多
占地:132.48平方米
占地百平農村三層戶型方案,簡約實用,獨具特色,理想新居等你
占地:105.61平方米
農村17萬元一層自建別墅設計圖,外觀簡潔,戶型方正
占地:163平方米
戶型好的農村三層樓房設計圖,帶外觀效果圖
占地:110平方米
新農村住宅設計圖集,三層房屋設計圖紙展示
占地:110平方米
農村兄弟合建一層雙拼房別墅圖,對稱設計,工整大方!
占地:170平方米
12米面寬一層農村別墅設計圖,實用又舒適
占地:110.41平方米
推薦:10套新農村自建房設計圖,2026年最新設計
閱讀次數:4825737次
100套鄉村別墅圖片大全,2026年最新設計
閱讀次數:2492203次
6款農村蓋一層平房的設計圖,10萬元就能建起來
閱讀次數:1852637次
這11個一層農村自建房別墅火爆了朋友圈!我最喜歡戶型十!你呢
閱讀次數:750268次
農村6萬元建一層小別墅圖,你敢相信嗎
閱讀次數:567686次
農村5萬塊就能自建房,6套普通房子設計圖分享,你沒看錯!
閱讀次數:419410次
8套農村漂亮三間平房圖片,非常適合在農村修建!
閱讀次數:411197次
農村自建房化糞池怎么做?附方案及施工過程
閱讀次數:391783次
農村一層三間平房設計圖,告別土氣養老房,讓人忍不住點贊
閱讀次數:350581次
新農村二層樓房圖片造價12萬,挑一套回家建房吧!
閱讀次數:349126次
