
這是款別墅采用的是磚混的結構形式 主體造價:22-28萬 占地面積:78.6平方米 是一款8m*10.1m的三層別墅。這款別墅底層使用灰色文化石作為基調,一二層使用紅色面磚作為主體,三層使用鵝黃色真石漆,屋頂是明亮的藍色琉璃瓦,清新自然,賞心悅目.門前使用灰白色羅馬柱和精致的雕花裝飾門面,十分的美觀.
入戶客廳映入眼簾,右側一間小室,上方餐廚一體的設計非常節約空間,也比較方便.樓梯旁是衛生間,設計的也非常合理.
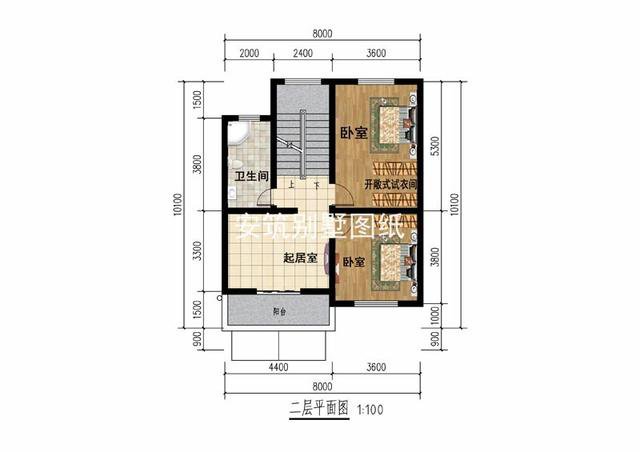
二層,右側兩間臥室,右上角臥室面積較大,有一間開放式試衣間,讓主人每天打扮的青春靚麗,元氣滿滿中間是起居室,靠近起居室,光線充足,空氣流動性強,環境宜人.
三層一間臥室,且臥室靠近陽臺,通風又通光.右下角露臺能夠很好的滿足日常晾曬的需求,也是和親友觀看風景的好地方. 圖紙之家-專注農村別墅/自建房設計18年,集合國內200余位經驗豐富的設計師,被評為口碑最好的農村建筑設計公司! |

兩層半帶閣樓別墅房屋設計圖,含外觀效果圖片
占地:118平方米
小戶型三層別墅房屋設計圖紙,占地80多平米,麻雀雖小五臟俱全
占地:80平方米
豪華新中式兩層半農村別墅設計圖,繁華之外,心之所向
占地:290.4平方米
建房老師傅力薦!這塊二層簡歐設計圖,花錢少、顏值高,必火
占地:131.65平方米
架空層設計的農村自建房別墅設計圖,既做車庫又做儲物間,太實
占地:230.62平方米
歐式三層豪宅樓設計圖紙及外觀效果圖,占地180平左右
占地:177.82平方米
農村新戶型房子設計圖二層,占地120平米,布局實用
占地:120.29平方米
農村二間二層小別墅設計方案,精而美的經典樣式不容錯過
占地:115.32平方米
農村120平米兩層樓的房子設計圖,外觀新穎
占地:120平方米
高端大氣三層雙拼自建房設計圖,外觀漂亮,240平左右
占地:240平方米
造型新穎漂亮的農村二層現代風別墅設計圖,老少皆宜的外觀
占地:144.54平方米
帶架空層的一層自建房太香了!防潮、停車、儲物全兼顧
占地:152.06平方米
私人二層歐式別墅建筑設計圖(效果圖+全套別墅設計方案)
占地:144平方米
經濟實用型二層農村小別墅設計圖,造價25萬內,外觀看起來時尚
占地:120平方米
廚房在前,簡約歐式二層農村自建別墅設計圖,戶型個性
占地:143.69平方米
鄉村高檔四層豪華別墅自建房設計圖,一層不帶餐廳廚房戶型
占地:147平方米
小占地二層徽派別墅設計圖,白墻黛瓦韻味十足,太氣派了
占地:89.6平方米
占地120平米清新脫俗簡單二層別墅設計方案,含效果圖
占地:119.01平方米
帶柴火房農村一層自建房設計圖,戶型布局接地氣
占地:126.29平方米
簡單實用二層自建房子設計圖,主體造價僅17萬
占地:106.387平方米
推薦:10套新農村自建房設計圖,2026年最新設計
閱讀次數:4825737次
100套鄉村別墅圖片大全,2026年最新設計
閱讀次數:2492203次
6款農村蓋一層平房的設計圖,10萬元就能建起來
閱讀次數:1852637次
這11個一層農村自建房別墅火爆了朋友圈!我最喜歡戶型十!你呢
閱讀次數:750268次
農村6萬元建一層小別墅圖,你敢相信嗎
閱讀次數:567686次
農村5萬塊就能自建房,6套普通房子設計圖分享,你沒看錯!
閱讀次數:419410次
8套農村漂亮三間平房圖片,非常適合在農村修建!
閱讀次數:411197次
農村自建房化糞池怎么做?附方案及施工過程
閱讀次數:391783次
農村一層三間平房設計圖,告別土氣養老房,讓人忍不住點贊
閱讀次數:350581次
新農村二層樓房圖片造價12萬,挑一套回家建房吧!
閱讀次數:349126次
