
第一款:一層帶閣樓自建房設計圖和戶型圖,主體造價10萬占地面積:10.76m*7.76m,80平方米左右 建筑高度:7.2米(含屋頂) 設計功能: 一層戶型:走廊、客廳、餐廳、廚房、臥室、衛生間、車庫 閣樓戶型:棋牌室、儲藏間、臥室x2、衛生間 這款80平方米鄉村一層帶閣樓自建別墅設計圖,帶車庫,外觀非常簡潔,灰色的外墻磚,簡約大氣的方柱,迂回的走廊,構成建筑明亮舒適的格局。
一層半別墅效果圖
一層半別墅效果圖
一層半別墅效果圖
一層半別墅戶型圖
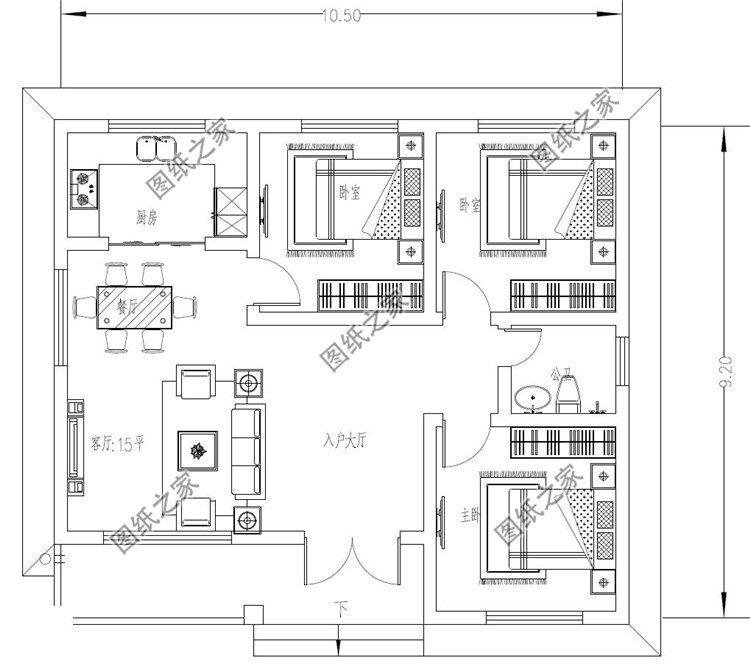
一層半別墅戶型圖 第二款:現代簡約式一層別墅設計圖,主體造價12萬占地面積:10.5m*9.2m,91.036平方米左右 建筑高度:5.903米(含屋頂) 設計戶型:入戶大廳、客廳、臥室x3、廚房、餐廳 這款美觀大氣的農村簡單一層三間平房小型農村別墅設計方案戶型圖,入戶設大客廳,門廳附帶門外廊,客廳后設餐廳,餐廳西側設大廚房,內設3間臥室,滿足普通的三口之家沒有任何問題。建筑裝飾簡潔,藍色屋頂,白色外墻漆,美觀又大方。
別墅效果圖
別墅戶型圖 第三款:現代式農村一層別墅設計圖,主體造價7萬占地面積:10.6m*7.9.m,79.478平方米左右 建筑高度:6.17米(含屋頂) 設計戶型:客廳、廚房、餐廳、臥室x2、衛生間、儲藏間 這款一層鄉村別墅設計圖,平屋頂自建房圖紙墻體采用大面積的米白色外墻磚搭配黃色文化石,以及藍色屋面瓦,整體配色素凈淡雅。室內布局很實用,兩室兩廳一衛,農村一般的家庭都很適用,是農村自建的不二之選。
別墅效果圖
別墅戶型圖 以上就是小編推薦的三款農村一層90自建房設計圖和戶型圖,有需要看圖紙的可以關注圖紙之家官網。 圖紙之家-專注農村別墅/自建房設計18年,集合國內200余位經驗豐富的設計師,被評為口碑最好的農村建筑設計公司! |

農村中式一層三合院自建房設計圖,古典大氣白墻黛瓦
占地:177.62平方米
13米開間的獨棟經濟型二層小別墅房屋設計圖,現代簡約
占地:150.39平方米
帶車庫,帶露臺的三層復式樓房設計圖,新農村房屋方案推薦
占地:140平方米
80平農村房屋設計圖,小戶型自建房三層別墅推薦
占地:80平方米
最火現代風三層半別墅設計圖,時尚簡約寬敞舒適
占地:169平方米
二層現代別墅設計圖及效果圖,外觀美觀,大氣
占地:195平方米
高端大氣三層歐式別墅設計圖,客廳中空,旋轉樓梯
占地:150平方米
適合農村自建四合院圖片,中式二層四合院別墅設計施工圖紙
占地:232平方米
170平方米新農村實用的三層雙拼設計圖紙,帶公用堂屋!
占地:173.62平方米
四層簡單新農村房屋設計圖紙,造價低,適合農村自建
占地:多種戶型
新農村兩層樓房設計圖,占地110平米,戶型簡單實用
占地:110平方米
140平方米現代偏中式實用型三層房屋設計圖紙,新農村建房推薦
占地:142平方米
農村二層住宅別墅設計圖,貼心實用,12.8米乘14.5米
占地:156.16平方米
農村兩間兩層樓房設計圖,造價15萬左右,獨立的廚房設計,干凈
占地:95平方米
簡歐漂亮農村二層別墅設計方案圖紙,12米乘9米
占地:多戶型可選
230平方農村雙拼別墅設計圖,26x11米自建房屋戶型
占地:230平方米
鄉村二層別墅設計圖,含外觀效果圖,設計師推薦
占地:140平方米
新中式高端三層雙拼自建房別墅設計圖,豪華霸氣的外觀
占地:256.02平方米左
漂亮時尚二層樓房設計圖紙,經濟實用,戶型通透
占地:150平方米
18米寬一層中式小院設計圖,三合院戶型布局寬敞大氣
占地:232.75平方米
推薦:10套新農村自建房設計圖,2026年最新設計
閱讀次數:4825737次
100套鄉村別墅圖片大全,2026年最新設計
閱讀次數:2492203次
6款農村蓋一層平房的設計圖,10萬元就能建起來
閱讀次數:1852637次
這11個一層農村自建房別墅火爆了朋友圈!我最喜歡戶型十!你呢
閱讀次數:750268次
農村6萬元建一層小別墅圖,你敢相信嗎
閱讀次數:567686次
農村5萬塊就能自建房,6套普通房子設計圖分享,你沒看錯!
閱讀次數:419410次
8套農村漂亮三間平房圖片,非常適合在農村修建!
閱讀次數:411197次
農村自建房化糞池怎么做?附方案及施工過程
閱讀次數:391783次
農村一層三間平房設計圖,告別土氣養老房,讓人忍不住點贊
閱讀次數:350581次
新農村二層樓房圖片造價12萬,挑一套回家建房吧!
閱讀次數:349126次
