
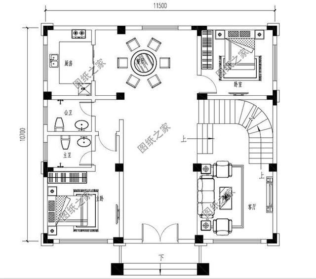
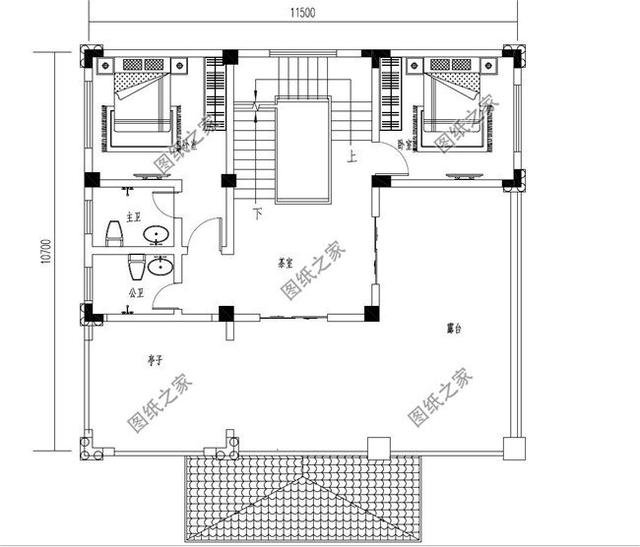
款式一:歐式新農村三層復式別墅圖紙,旋轉樓梯圖紙介紹:這款戶型設計有旋轉樓梯,總占地面積130平米左右,整體外觀看上去溫馨又有活力;拱形的落地窗寬敞通透,盡顯大氣之美。 占地面積:11.5m*10.7m,127.528平方米左右; 建筑層高:三層; 建筑高度:12.543米(含屋頂); 設計功能: 一層戶型:客廳、餐廳、廚房、臥室(帶衛生間)、臥室、衛生間; 二層戶型:客廳上空、起居室、臥室(帶衛生間、衣帽間兼書房)、臥室x2、衛生間; 三層戶型:茶室、臥室(帶衛生間)、臥室、衛生間、露臺、亭子;
三層別墅外觀戶型圖展示 款式二:豪華三層歐式別墅設計圖,挑空大客廳,大戶型別墅圖紙介紹:這款別墅功能齊全,有棋牌室、茶室、KTV、多居室+雙露臺,建一所這樣的房子體面又大氣;老人房設在一樓,避免老人上下樓不方便;二樓主要是休息區,四間臥室可以滿足一家人正常居住需求;三層雙露臺,采光非常好。 占地面積:19.6m*13.3m,225.72平方米左右; 建筑層高:三層; 建筑高度:12.671米(含屋頂); 設計功能: 一層戶型:玄關、茶室、棋牌室、客廳、餐廳、廚房、臥室(帶衛生間)、臥室x2、衛生間; 二層戶型:客廳上空、客廳、書房、臥室x2、臥室(帶衛生間、帶書房兼衣帽間)、臥室(帶衛生間)、衛生間、陽臺、露臺; 三層戶型:茶室、KTV、臥室(帶衣帽間、衛生間)、衛生間、露臺x2;
別墅外觀效果圖展示 款式三:歐式別墅三層設計圖,挑空客廳,外觀漂亮戶型實用圖紙介紹:這款戶型是深受農村歡迎的款式,整體為歐式風格;外觀清新簡約同時又端莊穩重,彰顯主人的品味;老人房緊鄰洗手間,方便老人生活;二層客廳挑空搭配旋轉樓梯,看起來非常高大上。
別墅外觀圖展示 這三款別墅豪華大氣,典型的歐式風格,蓋一所這樣的房子在農村那簡直太有面子了。喜歡哪一款式趕緊下方留言告訴小編。 圖紙之家-專注農村別墅/自建房設計18年,集合國內200余位經驗豐富的設計師,被評為口碑最好的農村建筑設計公司! |

農村一層平房別墅設計施工圖效果圖,外觀簡約時尚,17萬到19萬
占地:168平方米
面寬8米也能建別墅,小面寬農村三層別墅設計圖
占地:93.83平方米
農村二層樓房設計圖紙,含全套設計方案(施工圖+效果圖)
占地:98平方米
120平方米三層歐式別墅設計圖,進門就是旋轉樓梯
占地:119.76平方米
極簡大氣二層別墅設計圖,15米面寬,簡約大氣,年輕人的最愛!
占地:150平方米
帶框架層的四層別墅設計圖,框架層功能布局很多,很實用
占地:169.09平方米
獨棟兩層四開間房子施工設計圖紙及效果圖片,大氣時尚
占地:170平方米
14米乘10米農村二層別墅新款,外觀對稱設計,經久耐看!
占地:140平方米
二層精美偏法式風格別墅設計圖,不但顏值高,品質還高
占地:154.17平方米
大戶型美觀一層平房自建房設計圖,面寬19米左右
占地:245.1平方米
小平米四層自建房屋設計圖紙,戶型簡單實用,占地80平方米
占地:80平方米
農村二層半帶露臺別墅圖片及設計圖,戶型方案比較經典
占地:123平方米
簡約大氣四開間二層自建房設計圖,16x10米,經典耐看高顏值
占地:160平方米
歐式漂亮農村三層自建房設計圖紙,兩個戶型方案可選
占地:多戶型可選
210平方米新農村三層雙拼全套別墅設計圖紙帶效果圖
占地:207.25平方米
二層自建房屋設計圖,帶小院,帶地下室,外觀現代、時尚,內部
占地:200平米
高顏值又實用的一層雙拼鄉村別墅設計圖,舒適度堪比豪宅
占地:217.3平方米
農村三層私人住宅設計圖紙及效果圖,帶車庫,帶露臺
占地:150平方米
農村160平四間兩層樓房設計圖,全套施工圖+外觀效果圖片
占地:160平方米
推薦:10套新農村自建房設計圖,2026年最新設計
閱讀次數:4825737次
100套鄉村別墅圖片大全,2026年最新設計
閱讀次數:2492203次
6款農村蓋一層平房的設計圖,10萬元就能建起來
閱讀次數:1852637次
這11個一層農村自建房別墅火爆了朋友圈!我最喜歡戶型十!你呢
閱讀次數:750268次
農村6萬元建一層小別墅圖,你敢相信嗎
閱讀次數:567686次
農村5萬塊就能自建房,6套普通房子設計圖分享,你沒看錯!
閱讀次數:419410次
8套農村漂亮三間平房圖片,非常適合在農村修建!
閱讀次數:411197次
農村自建房化糞池怎么做?附方案及施工過程
閱讀次數:391783次
農村一層三間平房設計圖,告別土氣養老房,讓人忍不住點贊
閱讀次數:350581次
新農村二層樓房圖片造價12萬,挑一套回家建房吧!
閱讀次數:349126次
