
別墅圖紙一:三層現代平頂別墅,簡約時尚百看不厭
![]() 別墅效果圖
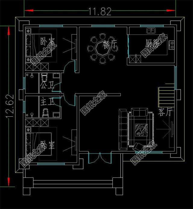
圖紙介紹:農村三層現代平頂別墅,簡約時尚百看不厭,外觀到布局都令人驚艷!外立面色調采用灰色和白色結合,整體看起來簡約時尚,線條干凈利落,別墅通透明朗,大面積的玻璃窗設計,使整體看上去視野開闊又寬敞。層次錯落有致,有廊有臺,充滿現代氣息又與周圍環境和諧相襯,享品質鄉野人生。符合年輕人的審美,居住區安排更多臥室,不怕家中人口多,看了就有想買的沖動! 占地面積:11.82m*12.62m,125.142平方米左右; 建筑層高:三層; 建筑高度:11.2米(含屋頂); 設計功能: 一層戶型:客廳、餐廳、廚房、臥室(帶衛生間)、臥室、衛生間; 二層戶型:客廳上空、小客廳、臥室(帶衛生間)、臥室x2、衛生間、陽臺; 三層戶型:臥室x2、衛生間、露臺、涼亭(帶頂); ![]() ![]() ![]() 別墅戶型圖
別墅圖紙二:占地130平三層現代別墅設計圖,帶電梯和地下室
![]() 別墅效果圖
圖紙介紹:占地130平三層現代別墅設計圖方案,電梯和地下室設計,30幾萬就能建,生活不要太享受!清新時尚的外觀,通透明亮的體態,還有層次分明的造型,都給人以深刻的印象,清新自然撲面而來,讓人賞心悅目,墻體依然是大理石涂料,真的太有美感了,比起傳統的貼瓷磚,不是一個檔次,灰白色調搭配,優雅迷人,時尚生活隨心暢享,在鄉下也能體會城市生活的感覺。 占地面積:10.64m*9.94m,134.75平方米左右; 建筑層高:三層; 建筑高度:13.15米(含屋頂); 設計功能: 地下室戶型:車庫、儲藏室; 一層戶型:客廳、餐廳、廚房、臥室(帶衣帽間)、衛生間; 二層戶型:書房、娛樂區、臥室(帶衛生間、衣帽間)、臥室(帶衛生間)、陽臺; 三層戶型:臥室(帶衛生間、衣帽間)、臥室(帶衛生間)、露臺; ![]() ![]()
![]() 別墅戶型圖
別墅圖紙三:面寬10米獨棟三層別墅自建房設計圖紙,復式選擇樓梯設計
![]() 別墅效果圖
圖紙介紹:農村面寬10米三層獨棟別墅自建房設計圖及效果圖片,復式客廳旋轉樓梯,外觀采用的歐式風格,沒有過多的設計那些歐式構件等繁瑣的裝飾,整體看起來還是比較簡約的,這符合我們現代人的審美,也一定程度的降低了施工成本。 占地面積:10.02m*12.76m,131.08平方米左右; 建筑層高:三層; 建筑高度:10.42米(含屋頂); 設計功能: 一層戶型:客廳、廚房、餐廳、臥室(衛生間)x2、衛生間; 二層戶型:客廳上空、小客廳、臥室(衛生間)x2、臥室、衛生間; 三層戶型:棋牌室、書房、臥室(衛生間)x2、臥室、露臺; ![]() ![]() ![]() 別墅戶型圖
以上就是三層平頂樓房帶平面圖,喜歡哪款,歡迎下方留言。
圖紙之家-專注農村別墅/自建房設計18年,集合國內200余位經驗豐富的設計師,被評為口碑最好的農村建筑設計公司! |

新農村住宅設計圖集,三層房屋設計圖紙展示
占地:110平方米
現代風格三拼別墅設計圖紙,三兄弟回村自建房戶型
占地:324平方米
三層帶露臺21萬別墅設計圖,占地面積100平米左右
占地:106平方米
兩層農村自建二層樓設計圖紙,面寬12米左右
占地:131.2平方米
農村四層復式樓房設計圖,外觀效果圖+全套圖紙
占地:108平方米
鄉村二層別墅設計圖,含外觀效果圖,設計師推薦
占地:140平方米
帶架空層一層農村別墅設計圖,回鄉建房優選,家有豪宅幸福來敲
占地:124.76平方米
11×10米農村二層別墅圖,百平占地經典實用舒適大氣
占地:103.47平方米
農村20萬元二層小樓房設計圖,經典新農村自建房戶型
占地:120平方米
農村四層樓房外形設計圖,主臥配有陽臺和衣帽間還有衛生間
占地:126平方米
面寬13米方正戶型二層小別墅設計方案,南北通透采光好
占地:166.78平方米
實用農村三層房屋設計圖紙,效果圖+全套施工圖
占地:113平方米
簡約L型一層平房自建房設計圖,經濟實用
占地:145.283平方米
2026最新款50萬左右農村三層別墅設計圖,客廳中空
占地:160平方米
L字型自建房屋設計圖,一層別墅類型,外觀效果圖漂亮
占地:188.62平方米
農村一層大別墅施工圖,18米乘12米,讓生活充滿儀式感
占地:216平方米
雙戶168平方米小戶型新農村雙拼樓房設計建筑圖紙帶外觀圖
占地:168平方米
二層半農村小別墅設計方案圖,南方設計圖精選
占地:82平方米
新款三層豪華大氣歐式別墅設計圖,3種戶型設計方案
占地:125平方米左右
二層農村房屋設計圖紙,帶效果圖和全套施工方案圖
占地:多種戶型
推薦:10套新農村自建房設計圖,2026年最新設計
閱讀次數:4825737次
100套鄉村別墅圖片大全,2026年最新設計
閱讀次數:2492203次
6款農村蓋一層平房的設計圖,10萬元就能建起來
閱讀次數:1852637次
這11個一層農村自建房別墅火爆了朋友圈!我最喜歡戶型十!你呢
閱讀次數:750268次
農村6萬元建一層小別墅圖,你敢相信嗎
閱讀次數:567686次
農村5萬塊就能自建房,6套普通房子設計圖分享,你沒看錯!
閱讀次數:419410次
8套農村漂亮三間平房圖片,非常適合在農村修建!
閱讀次數:411197次
農村自建房化糞池怎么做?附方案及施工過程
閱讀次數:391783次
農村一層三間平房設計圖,告別土氣養老房,讓人忍不住點贊
閱讀次數:350581次
新農村二層樓房圖片造價12萬,挑一套回家建房吧!
閱讀次數:349126次
