
|
不論是農村建房還是城里買房,都講究方方正正、四平八穩的戶型最受大家的喜愛。很多看我們戶型的朋友問我,12*12米怎么建別墅,我想說的是12*12米也是很好的戶型也可以建個漂亮的房子。12*12類似一個正方形,可謂是方方正正,今天小編給大家帶來了3套12米*12米農村建房設計圖,希望能給你一些幫助,話不多說趕緊來看看吧。 別墅圖紙一:150平農村二層復式別墅房屋設計方案圖,帶外觀效果圖
圖紙介紹:本戶型為二層復式別墅房屋設計圖,客廳中空,帶屋頂花園和閣樓(閣樓可以不建)。 占地面積:12.54m*12.4m,150平方米左右; 建筑層高:二層; 建筑高度:9.30米(含屋頂); 設計功能: 一層別墅戶型:客廳、餐廳、廚房、主臥(帶衛生間)、臥室、衛生間; 二層別墅戶型:棋牌室(小客廳)、臥室x3、書房、衛生間、陽臺、大露臺; 三層別墅戶型:閣樓;
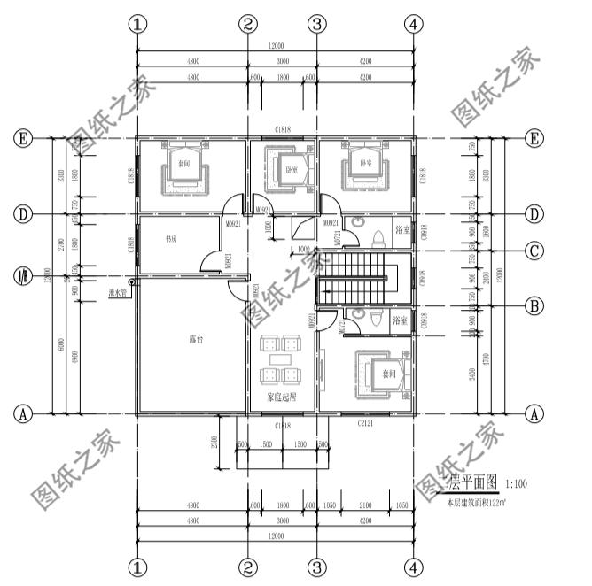
別墅圖紙二:12*12米農村二層經濟型自建房設計圖
圖紙介紹:12×12米農村二層經濟型自建房設計圖,設計了6間臥室,滿足不同人口的家庭使用。農村的條件越來越好,農村都有錢了,生活好了之后,就想著建房子改善居住環境,像這種經濟實用又美觀大方的二層小別墅在農村很受歡迎,看著農村一棟棟的小別墅建起,讓城里人羨慕不已。 占地面積:12.0m*12.0m,144平方米左右; 建筑層高:二層; 建筑高度:9.6米(含屋頂); 設計功能: 一層戶型:客廳、餐廳、廚房、衛生間、主臥(帶衛生間)、臥室、娛樂室; 二層戶型:起居室、主臥(帶衛生間)、臥室x3、衛生間、書房、大露臺;
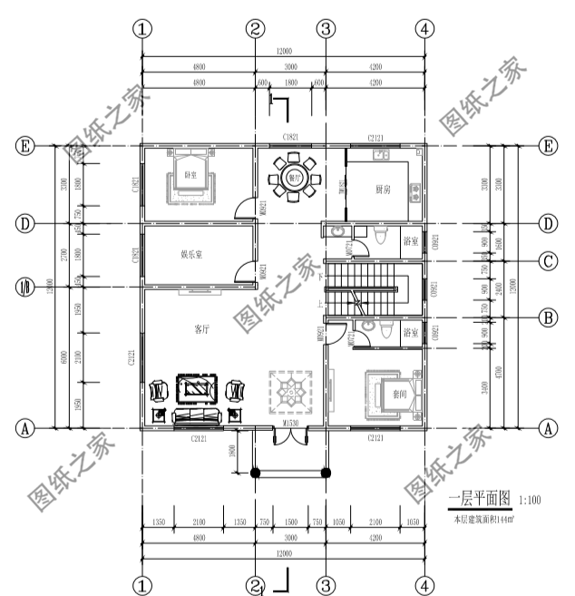
別墅圖紙三:私人二層歐式別墅建筑設計圖含效果圖
圖紙介紹:私人二層歐式別墅建筑設計圖(效果圖+全套別墅設計方案),溫馨大氣,這款二層農村自建房采用大氣的坡頂設計,戶型簡單大方,四面都可采光,外立面色彩簡約大氣,施工難度不大,適合農村建造。 占地面積:12m*12.50m,144平方米左右; 建筑層高:二層; 建筑高度:10.2米(含屋頂); 設計功能: 一層戶型:玄關、客廳、餐廳、廚房 、娛樂房、老人房、衛生間; 二層戶型:起居室、主臥室(帶衣帽間)、臥室x3、衛生間、露臺;
以上就是12米*12米農村建房設計圖,經典不過時,喜歡哪款,歡迎下方留言。 圖紙之家-專注農村別墅/自建房設計18年,集合國內200余位經驗豐富的設計師,被評為口碑最好的農村建筑設計公司! |

簡單經濟一層自建養老房,12米乘9.5米,溫暖舒適施工簡單
占地:103.2平方米
230平方米新農村二層自建別墅設計圖紙帶外觀圖,20X11米
占地:227平方米
130平新農村三層房屋設計圖紙,預算30萬以內,蓋房推薦
占地:132平方米
二開間小戶型設計三層農村自建房方案,經濟型適合小宅基地建房
占地:107.02平方米
對稱一層農村養老別墅設計方案,室內戶型布局合理,14x12米
占地:141.46平方米
共堂屋雙拼兩層小別墅設計圖,倆兄弟農村自建房首選
占地:198平方米
歐式三層雙拼別墅設計圖,精致大氣布局實用,兄弟建房上上之選
占地:234平方米
現代三層復式小別墅設計圖及外觀圖片,25萬造價
占地:105平方米
歐式三層農村別墅設計圖,占地130平方米自建房,低調又奢華鄉村
占地:129.8平方米
農村2026新式好看又簡單的二層樓房設計圖,外形美觀,家用足夠
占地:200平方米
中式四合院農村自建房設計圖,白墻黛瓦,四水歸堂
占地:137.72平方米
農村自建超漂亮中式四合院別墅設計圖,22X25米
占地:473平方米
14x11米一層平房戶型設計圖,帶前后門設計,好看不貴還實用!
占地:143.59平方米
二層農村房子圖片及全套施工圖紙,占地150平面左右
占地:150平方米
農村四間一層房屋設計圖,160平方米,用來養老正合適!
占地:160平方米
二層歐式農村小別墅設計圖,9.5米乘13米,戶型好到鄰居求圖紙
占地:118.32平方米
10米×13米最好看的農村三層樓房圖,客廳中空
占地:124平方米
新農村住宅設計圖紙含效果圖,方方正正的別墅方案
占地:134平方米左右
雙拼小別墅設計圖紙(含效果圖),二層別墅設計方案精選
占地:130平方米
70平農村小戶型二層別墅設計圖,小宅基地的福音
占地:70平方米
推薦:10套新農村自建房設計圖,2026年最新設計
閱讀次數:4825737次
100套鄉村別墅圖片大全,2026年最新設計
閱讀次數:2492203次
6款農村蓋一層平房的設計圖,10萬元就能建起來
閱讀次數:1852637次
這11個一層農村自建房別墅火爆了朋友圈!我最喜歡戶型十!你呢
閱讀次數:750268次
農村6萬元建一層小別墅圖,你敢相信嗎
閱讀次數:567686次
農村5萬塊就能自建房,6套普通房子設計圖分享,你沒看錯!
閱讀次數:419410次
8套農村漂亮三間平房圖片,非常適合在農村修建!
閱讀次數:411197次
農村自建房化糞池怎么做?附方案及施工過程
閱讀次數:391783次
農村一層三間平房設計圖,告別土氣養老房,讓人忍不住點贊
閱讀次數:350581次
新農村二層樓房圖片造價12萬,挑一套回家建房吧!
閱讀次數:349126次
