
|
農村建房子也不是隨隨便便就能建的,雖然說農村基本上家家都有宅基地,但是如果建房子的造價太高,有的人就會圖省事在外面直接買商品房。但是不管怎么說,還是自己建的房子住著舒服,想要什么樣的就可以建什么樣的。下邊小編給大家推薦的這幾款別墅,占地200平米,宅基地大的就有福利了,趕快一起看一看吧。 戶型一:農村新款別墅圖片,新中式風格古典大氣,占地200平方米圖紙介紹:本戶型新中式風格古典大氣,采用了坡屋頂的設計,深藍色的琉璃瓦在農村亮色系扎堆的別墅中顯得別具一格,經典中帶點創新。 占地面積:15.7m*13.0m,200平方米左右; 建筑層高:二層; 建筑高度:11.5米(含屋頂); 設計功能: 一層戶型:門廳、客廳、餐廳、廚房、衛生間、主臥(帶衛生間)、臥室、娛樂室; 二層戶型:休閑廳、主臥(帶書房、衣帽間)、臥室(帶衛生間)×2、臥室x2、公衛、陽臺;
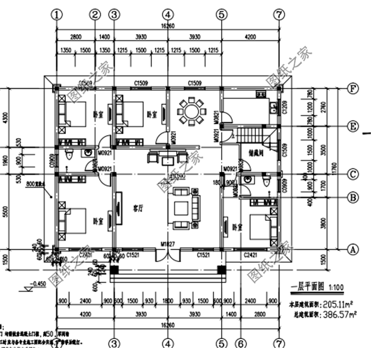
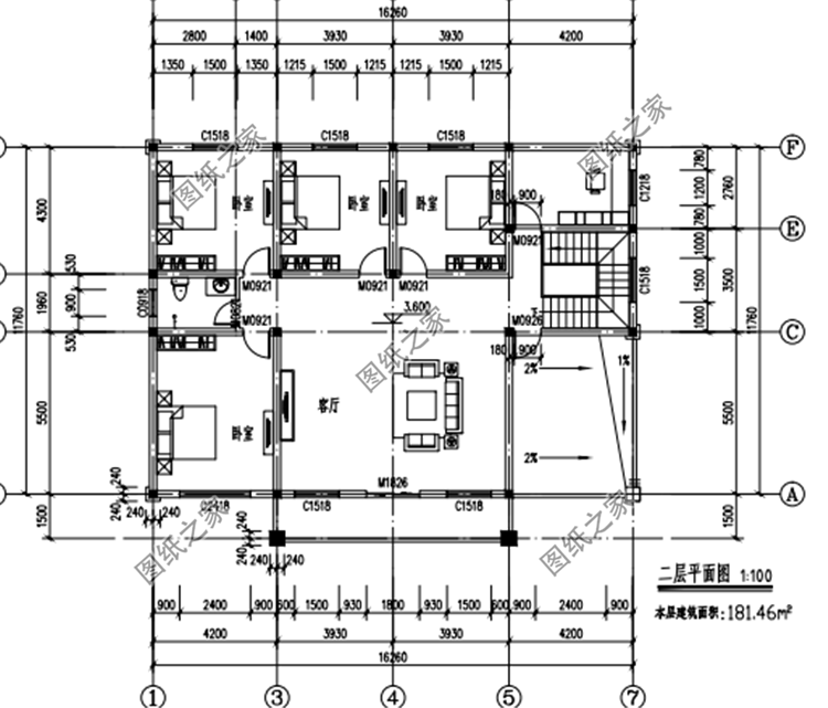
戶型二:二層別墅設計圖,占地200平米,主體造價35萬左右圖紙介紹:本戶型別墅外觀配色清新淡雅,濃濃的田園鄉村氣息;內部結構布局也是非常合理,二層有大露臺可以供農作物晾曬。 占地面積:16.2m*11.7m,205平方米左右; 建筑層高:二層; 建筑高度:10.2米(含屋頂); 設計功能: 一層戶型:客廳、餐廳、廚房、衛生間、主臥(帶衛生間)、臥室×3、儲藏間; 二層戶型:客廳、臥室x4、書房、衛生間、陽臺、大露臺;
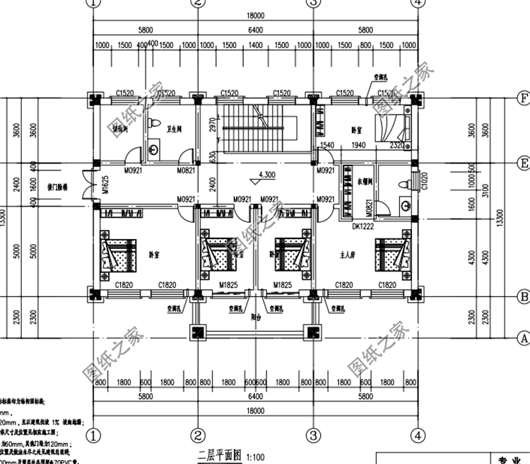
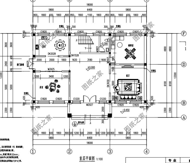
第三款:農村簡單二層別墅方案圖,好看又實惠,施工也簡單圖紙介紹:本戶型好看實惠,施工也簡單,非常適合農村!別墅外型設計比較時尚,采用歐式現代風格,外墻使用真石漆;內部結構也非常合理,適合一家人居住。 占地面積:18.0m*13.3m,200平方米左右; 建筑層高:二層; 建筑高度:11.55米(含屋頂); 設計功能: 一層戶型:客廳、餐廳、廚房、衛生間、茶室、棋牌室; 二層戶型:主臥(帶衣帽間、衛生間)、臥室x4、衛生間、雜物間、陽臺;
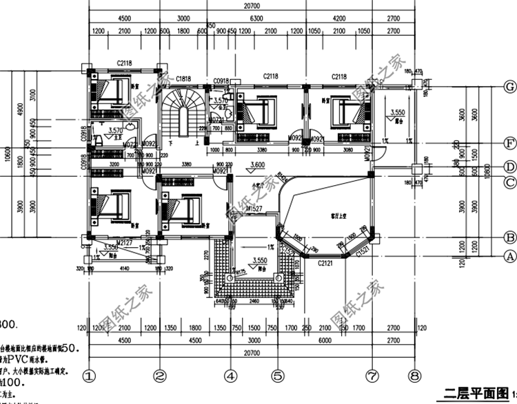
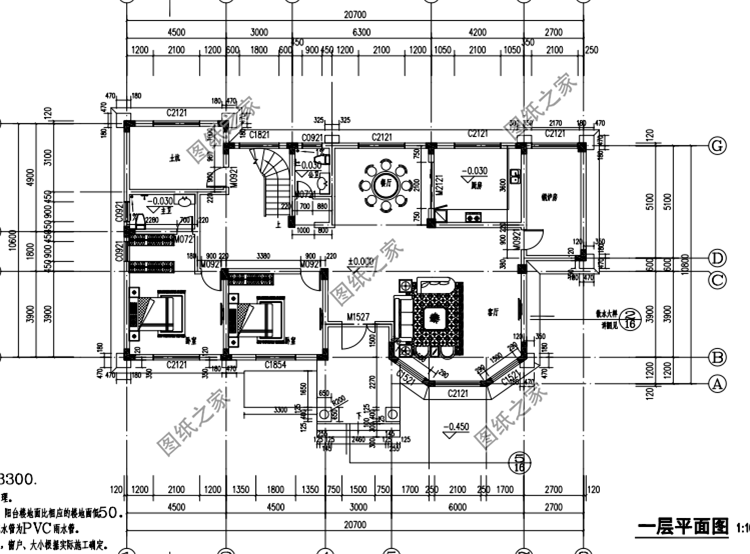
第四款:農村四間二層小洋樓設計圖,歐式別墅,占地200平米圖紙介紹:本戶型帶土炕和鍋爐房,冬天把屋子燒的暖暖的,待在里面最舒服不過了。還有二樓的大露臺和陽臺設計,方便了日常的晾曬和乘涼小憩。 占地面積:20.7m*10.8m,200平方米; 建筑層高:二層; 建筑高度:10.2米(含屋頂); 設計功能: 一層戶型:土炕,主臥(主衛),臥室,公衛,廚房,餐廳,客廳,鍋爐房; 二層戶型:臥室X4,公衛,主臥(主衛),露臺,陽臺,客廳,客廳上空;
這幾款我最喜歡最后一款了,你呢?喜歡哪一款下方留言告訴小編。
圖紙之家-專注農村別墅/自建房設計18年,集合國內200余位經驗豐富的設計師,被評為口碑最好的農村建筑設計公司! |

10萬農村別墅設計圖小戶型,經濟、耐看、實用
占地:多種戶型
100平方米新農村二層別墅設計圖紙,帶屋頂露臺
占地:100平方米
農村7字形漂亮房子設計圖及外觀效果圖
占地:189.3平方米
漂亮的農村三層小樓房設計圖,簡單大氣,帶車庫
占地:150平方米
帶小院七字形一層自建房戶型設計圖,平屋頂圖紙
占地:201.08平方米
130平氣派美觀的二層別墅房屋設計圖,含效果圖
占地:130平方米
面寬13米簡簡單單一層農村自建別墅設計圖,方正大氣經濟宜居
占地:126.1平方米
農村4間2層樓房設計圖,帶車庫,外觀時尚,帶屋頂花園
占地:210平方米
新中式別墅一層自建房設計,戶型實用緊湊
占地:170.54平方米
農村200平一層別墅房屋設計圖,外觀圖片時尚、漂亮
占地:200平方米
歐式新農村自建三層建筑施工設計圖紙及效果圖大全
占地:106平方米
農村新中式別墅設計圖及效果圖,造價25萬左右
占地:95平方米
L“型”一層自建房小平層設計圖紙,180平方米
占地:179.355平方米
農村160平四間兩層樓房設計圖,全套施工圖+外觀效果圖片
占地:160平方米
2026戶型方正三層農村小別墅設計圖紙(含外觀圖片)
占地:150平方米
140-150平方米新農村別墅設計圖紙,帶外觀效果圖,復式戶型
占地:146平方米
農村60萬三層別墅新款式設計圖,外觀和實用性并駕齊驅
占地:170平方米
兄弟共建一層雙拼平房設計圖,省錢省心又可相互照應
占地:177.27平方米
20萬農村一層半小洋樓圖,自建別墅設計方案推薦
占地:155平方米
80平方米新農村二層房屋設計圖紙,造價15萬左右
占地:80平方米
推薦:10套新農村自建房設計圖,2026年最新設計
閱讀次數:4825737次
100套鄉村別墅圖片大全,2026年最新設計
閱讀次數:2492203次
6款農村蓋一層平房的設計圖,10萬元就能建起來
閱讀次數:1852637次
這11個一層農村自建房別墅火爆了朋友圈!我最喜歡戶型十!你呢
閱讀次數:750268次
農村6萬元建一層小別墅圖,你敢相信嗎
閱讀次數:567686次
農村5萬塊就能自建房,6套普通房子設計圖分享,你沒看錯!
閱讀次數:419410次
8套農村漂亮三間平房圖片,非常適合在農村修建!
閱讀次數:411197次
農村自建房化糞池怎么做?附方案及施工過程
閱讀次數:391783次
農村一層三間平房設計圖,告別土氣養老房,讓人忍不住點贊
閱讀次數:350581次
新農村二層樓房圖片造價12萬,挑一套回家建房吧!
閱讀次數:349126次
