
|
人要以務實為本。千萬不要做打腫臉充胖子的事情。就拿在農村老家蓋房子這種事情來說,一家也就四五口人,何必為了攀比建高層呢?有個二層的別墅就完全夠了,無論是生活居住還是休閑都是可滿足普通的一家人的,這樣不但減少了經濟壓力,還能住的舒適,絕對是值得的好房子。今天小編就給大家推薦三套13×11米農村建房圖紙,二層樓房讓您住的舒適。
方案一:美式二層別墅自建房設計圖,占地145平方米,造價不到30萬
圖紙介紹:本戶型是二層美式自建別墅設計圖,含全套施工圖+外觀效果圖,外觀美觀,造型精致,室內布局實用、合理,5個大臥室足夠一般家庭居住。 占地面積:13.4m*11.0m,145平方米左右; 建筑層高:二層; 建筑高度:9.34米(含屋頂); 設計功能: 一層戶型設計:玄關、客廳、餐廳、廚房、臥室x2、衛生間、洗衣間(可改成主衛)、樓梯間; 二層戶型設計:客廳、主臥(帶書房、衛生間、陽臺)、臥室x2、衛生間、大露臺; ![]() ![]() ![]() ![]()
方案二:簡單實用的二層樓房戶型圖,占地130平方米
圖紙介紹:這款簡單實用的二層樓的房子設計圖,占地130平方米。它既結合城市里的審美外觀,又遵循了農村需要的實用大方,很多農村人都喜歡這款戶型。 占地面積:13.0m*10.7m,130平方米左右; 建筑層高:二層; 建筑高度:10.2米(含屋頂); 設計功能: 一層別墅戶型:客廳、餐廳、廚房、臥室×2、衛生間; 二層別墅戶型:起居室、臥室×4、衛生間、露臺; ![]() ![]() ![]() 這兩款精致的小別墅,誰見了不喜歡?三十來萬建個新家比城里買房輕松多了。趕快收藏圖紙吧。
圖紙之家-專注農村別墅/自建房設計18年,集合國內200余位經驗豐富的設計師,被評為口碑最好的農村建筑設計公司! |

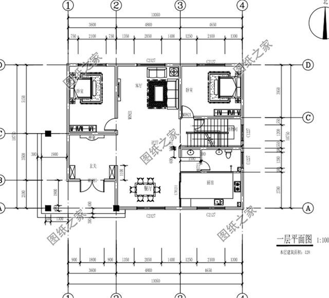
110平房子設計圖,經典的農村自建房屋設計圖
占地:110平方米
農村二層舒適好房,這款四開間別墅設計圖真的很不錯
占地:220.46平方米
歐式三層樓房設計圖,客廳中空,旋轉樓梯,帶土灶房
占地:206平方米
好看又簡單的二層樓房設計,經濟實用型的農村小別墅
占地:135平方米
100平方三層樓房設計圖及圖片,戶型設計簡約時尚
占地:100平方米
新農村中式一層三合院效果圖及全套設計圖,喜歡合院的有福了
占地:118平方米
經典的農村三層小樓房設計圖,外觀圖片時尚、精致
占地:100平方米
經典三層雙拼房屋設計圖,帶效果圖,戶型好,單戶面積120
占地:240平方米
農村一層養老別墅設計圖,14.8x17.9米,戶型對稱,實用布局
占地:193平方米
50萬農村自建三間三層別墅設計圖,占地130平米左右
占地:135平方米
獨棟別墅設計戶型圖帶外觀效果圖,雙向樓梯設計
占地:155平方米
160平方米二層小別墅設計圖紙及效果圖大全,12X13米
占地:162平方米
180平方米新農村自建二層小別墅設計圖及效果圖,15X13米
占地:183平方米
農村兩層新中式自建房屋設計圖,受歡迎的帶小配房戶型
占地:多戶型可選
新農村自建二層樓房戶型設計圖,簡單大氣,外觀漂亮精致
占地:多種戶型
14x11米一層平房戶型設計圖,帶前后門設計,好看不貴還實用!
占地:143.59平方米
新農村三層房屋設計圖紙大全,新農村住宅圖紙
占地:108平方米
歐式三層別墅設計圖,低調奢華,實用布局,好設計不容錯過
占地:134.1平方米
2026最美三層別墅設計圖紙及效果圖,十佳最美農村別墅
占地:151平方米
11x9三層別墅房屋設計圖,含效果圖片
占地:97平方米
推薦:10套新農村自建房設計圖,2026年最新設計
閱讀次數:4825737次
100套鄉村別墅圖片大全,2026年最新設計
閱讀次數:2492203次
6款農村蓋一層平房的設計圖,10萬元就能建起來
閱讀次數:1852637次
這11個一層農村自建房別墅火爆了朋友圈!我最喜歡戶型十!你呢
閱讀次數:750268次
農村6萬元建一層小別墅圖,你敢相信嗎
閱讀次數:567686次
農村5萬塊就能自建房,6套普通房子設計圖分享,你沒看錯!
閱讀次數:419410次
8套農村漂亮三間平房圖片,非常適合在農村修建!
閱讀次數:411197次
農村自建房化糞池怎么做?附方案及施工過程
閱讀次數:391783次
農村一層三間平房設計圖,告別土氣養老房,讓人忍不住點贊
閱讀次數:350581次
新農村二層樓房圖片造價12萬,挑一套回家建房吧!
閱讀次數:349126次
