
|
在農村建房,大家最普遍關心的問題就是面積了,在這個時代,被分到了土地都很小。宅基地有限制,要怎么建房呢,這是每個房友都很發愁的一個問題。又想建
第一款:帶開放式車庫二層農村自建別墅設計方案
![]() 別墅效果圖
圖紙介紹:帶開放式車庫二層農村自建別墅設計方案,小戶型設計,外觀非常的清新優雅,開放式的設計,又能作為休閑下午茶場所。室內總局既合理又實用,空間布局緊湊實用,利用率很高。還有兩個屋頂露臺。 占地面積:12.2m*9.42m,89.412平方米左右; 建筑層高:二層; 建筑高度:10.037米(含屋頂); 設計功能: 一層戶型:客廳、廚房、餐廳、車庫、臥室x2、衛生間; 二層戶型:客廳、臥室x3、衛生間、陽臺x2、露臺; ![]() ![]() 別墅戶型圖
第二款:簡約精致的二層房子設計圖,農村自建經濟實用
![]() 別墅效果圖
圖紙介紹:簡約精致的二層自建房子設計圖,農村建房經濟實用,簡單大氣,外觀上采用的是最耐看的黃色和褐色墻磚裝飾,屋頂采用灰色琉璃瓦,這兩種材質的結合。布局上很經濟實用,建造此戶型既居住舒適,又美觀不浪費。房屋整體與自然很協調,讓人居住室內,又置身自然的感覺。 占地面積:11.76m*8.26m,89.76平方米; 建筑層高:二層; 建筑高度:8.50米(含屋頂); 設計功能: 一層戶型:客廳、廚房、餐廳、臥室、衛生間; 二層戶型:茶座、臥室x3、衛生間、露臺; ![]() ![]() 別墅戶型圖
第三款:80平米三層農村自建房設計圖,小戶型別墅設計方案
![]() 別墅效果圖
圖紙介紹:80平方米三層小戶型別墅設計圖,小型自建民房方案,7室2廳,小戶型的最佳選擇!別墅外立面花色簡單,搭配細致的紋飾,營造出大氣端莊的建筑效果。客廳餐廳寬敞明亮,南北通透,體面又舒服。二樓的的客廳則是方便家庭情感的交流。三間臥室均設有采光通風窗,居住舒適度得到保障。大露臺陽光充足,適合蒔花栽草,曬衣待干。 占地面積:8.8m*8.8m,81平方米左右; 建筑層高:三層; 建筑高度:12.6米(含屋頂); 設計功能: 一層戶型:客廳、廚房、餐廳、臥室、衛生間; 二層戶型:客廳或臥室、書房或者小臥室、衛生間、臥室x2、陽臺; 三層戶型:書房或者小臥室、臥室x2、衛生間、露臺; ![]() ![]() ![]() 別墅戶型圖
第四款:80平米農村四層房屋設計圖紙及效果圖
![]() 別墅效果圖
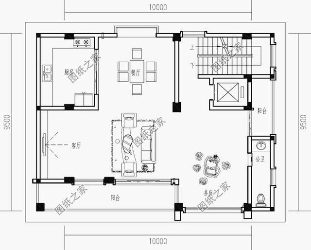
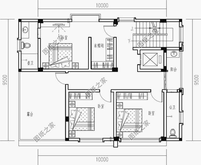
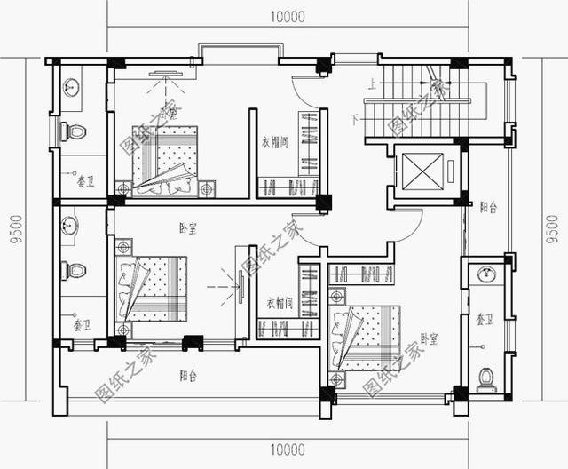
圖紙介紹:80平方米農村四層房屋設計圖紙及效果圖,現代風格,帶車庫設計,現代簡約風別墅,追求的是時尚、簡約、實用。多陽臺、多露臺設計,外觀富有立體感,車庫方便有車的家庭停放車輛,避免車子遭受日曬雨淋,更好地保養愛車,室內設有多個臥室,還有多個臥室套間,舒適方便,在農村建一棟,占地小、造價低,最重要的是驚艷全村。 占地面積:10m*9.5m,80平方米左右; 建筑層高:四層; 建筑高度:18.8米(含屋頂); 設計功能: 一層戶型:車庫、衛生間、電梯; 二層戶型:客廳、廚房、餐廳、茶座、衛生間、陽臺、電梯; 三層戶型:臥室(帶衛生間、衣帽間)x2、臥室、衛生間、陽臺、電梯; 四層戶型:臥室(帶衛生間、衣帽間)、臥室x2、衛生間、陽臺、露臺; ![]() ![]() ![]() ![]() 別墅戶型圖
以上就是80至90平米農村自建房設計圖,還想看哪款,歡迎下方留言。
圖紙之家-專注農村別墅/自建房設計18年,集合國內200余位經驗豐富的設計師,被評為口碑最好的農村建筑設計公司! |

80平方米新農村二層房屋設計圖紙,造價15萬左右
占地:80平方米
最新設計的農村二層自建房屋設計圖,占地180平米,經濟實用
占地:180平米
帶車庫二層農村豪華別墅設計圖,主體25萬左右
占地:170平方米左右
鄉村三層別墅施工圖紙帶效果圖,田園別墅設計圖紙推薦
占地:178平方米
三層新農村自建房屋設計圖紙,占地120平米左右
占地:120平方米
農村三層帶露臺、帶車庫房屋設計圖,含外觀圖片
占地:155平方米
鄉村仿古一層別墅圖片及設計圖,經典實用,占地170平
占地:170平方米
四開間一層半別墅設計圖,帶閣樓設計的戶型方案
占地:190.7平方米
雙拼豪華高端三層別墅設計圖,外觀效果圖大氣
占地:300平方米
帶堂屋新農村三層房屋別墅設計圖紙,帶外觀效果圖
占地:214平方米
農村13萬元二層小樓圖,簡單易建,造價低
占地:110平方米
一層農村必蓋戶型設計方案,養老自住兩相宜,經濟實惠又耐用!
占地:150.36平方米
簡簡單單一層農村自建別墅方案,布局緊湊又不擁擠
占地:133.55平方米
時尚創意型二層小別墅設計圖,占地面積110平方米,外觀清新典雅
占地:110平方米
新農村自建二層小樓圖,時尚大方,外型精美,室內布局也很贊
占地:137平方米
8萬元二層農村房子圖片及設計圖,簡易二層小樓,占地50平米
占地:50平方米
160平方米農村三層小別墅設計圖紙,13.8x12.7米
占地:163平方米
鄉村別墅現代風平屋頂四層自建房設計圖,簡約時尚
占地:144.7平方米
農村三層歐式別墅豪宅戶型圖設計方案,復式中空客廳+旋轉樓梯
占地:134.84平方米
100平方米自建房二層設計圖紙及效果圖,12x9米
占地:100平方米
推薦:10套新農村自建房設計圖,2026年最新設計
閱讀次數:4825737次
100套鄉村別墅圖片大全,2026年最新設計
閱讀次數:2492203次
6款農村蓋一層平房的設計圖,10萬元就能建起來
閱讀次數:1852637次
這11個一層農村自建房別墅火爆了朋友圈!我最喜歡戶型十!你呢
閱讀次數:750268次
農村6萬元建一層小別墅圖,你敢相信嗎
閱讀次數:567686次
農村5萬塊就能自建房,6套普通房子設計圖分享,你沒看錯!
閱讀次數:419410次
8套農村漂亮三間平房圖片,非常適合在農村修建!
閱讀次數:411197次
農村自建房化糞池怎么做?附方案及施工過程
閱讀次數:391783次
農村一層三間平房設計圖,告別土氣養老房,讓人忍不住點贊
閱讀次數:350581次
新農村二層樓房圖片造價12萬,挑一套回家建房吧!
閱讀次數:349126次
