
|
30萬能干什么?30萬能在農村建一個三層別墅。很多人不相信,30萬能蓋一個別墅,還是三層的,怎么可能。既然大家都不相信,今天小編就給大家推薦三款30萬農村自建別墅三層設計圖,外觀時尚,內部合理,蓋一個這樣的別墅絕對沒有人敢說你土了,絕對讓村里人羨慕,趕快收藏圖紙和小編一起看看吧。
戶型一:農村獨棟歐式三層樓房設計圖,外觀大氣
圖紙介紹:這款別墅戶型外觀大氣豪華,占地144平方米左右;別墅配備復式客廳、主臥帶內衛、廚房、公共衛生間和餐廳;二樓主要居住,設計有小陽臺;三樓雙主臥設計,方便兩代人居住;屋頂花園可以養花,也可以用來晾曬衣物或者農作物。 ![]() 占地面積:13m*13m,144.75平方米左右; 建筑層高:三層; 建筑高度:13米(含屋頂); 設計功能: 一層戶型:客廳、廚房、餐廳、儲物間、臥室(衛生間)、衛生間; 二層戶型:客廳上空、起居室、臥室(衛生間、衣帽間)、臥室、衛生間、陽臺; 三層戶型:娛樂區、臥室(衛生間)x2、臥室、衛生間、露臺; ![]() ![]() ![]() 戶型二:新農村中式別墅設計效果圖,占地120平方米
圖紙介紹:本戶型是典型的歐式風格,外觀采用灰白石材搭配藍色屋頂,色調溫馨;落地式門窗增加別墅通透性,頂層利用露臺和陽臺塑造外觀層次感。 ![]() ![]() 占地面積:10.16m*11.3m,120平方米左右; 建筑層高:三層; 建筑高度:12.37米(含屋頂); 設計功能: 一層戶型:客廳、廚房、餐廳、臥室(帶衛生間)、衛生間; 二層戶型:客廳上空、起居室、臥室(帶衛生間)、臥室x2、衛生間、陽臺; 三層戶型:臥室x2、臥室(帶衛生間)、衛生間、陽臺、露臺; ![]() ![]() ![]() 戶型三:新農村別墅設計圖紙,復式戶型,占地140-150平方米
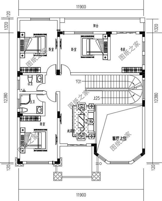
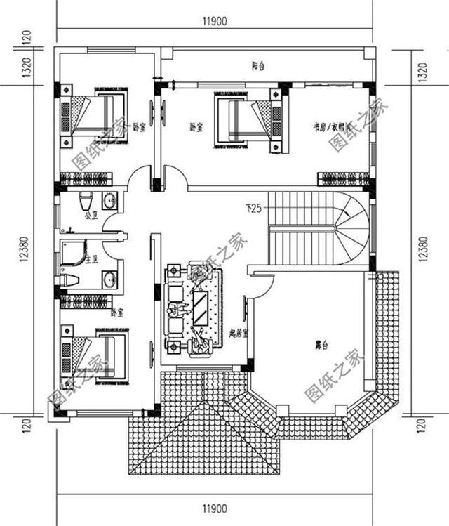
圖紙介紹:這款復式高端戶型,歐式外觀設計,簡約大氣;復式落地窗,非常經典,羅馬柱設計,精致的雕花和花盆,還有歐式風格的窗套都把歐式的大氣體現的淋漓盡致。 ![]() ![]() 占地面積:11.9m*12.38m,146平方米左右; 建筑層高:三層; 建筑高度:14.19米(含屋頂); 設計功能: 一層戶型:客廳、神位、餐廳、廚房、臥室(帶衛生間)、臥室、衛生間; 二層戶型:客廳上空、起居室、臥室(帶衛生間)、臥室(帶書房衣帽間)、臥室、衛生間、陽臺; 三層戶型:起居室、臥室(帶書房衣帽間)、臥室(帶衛生間)、臥室、衛生間、露臺; ![]() ![]() ![]() 看完這幾款設計圖,不知道你心動了嗎?小編會繼續給大家分享其他戶型的設計圖紙。
圖紙之家-專注農村別墅/自建房設計18年,集合國內200余位經驗豐富的設計師,被評為口碑最好的農村建筑設計公司! |

新農村三層小別墅設計圖紙,占地160平左右,好看不貴
占地:160平方米
占地110平米兩層半農村房子設計圖,簡單實用
占地:110.25平方米
好看又簡單的二層樓房設計圖紙,戶型還實用
占地:150平方米
經典小戶型雙拼二層新農村房屋住宅設計圖,含效果圖
占地:80平方米
農村自建二層半樓房效果圖,美觀大氣布局合理,很適合農村人自
占地:160.11平方米
現代三層農村房屋設計圖紙及效果圖,帶全套cad建筑圖
占地:95平方米
兄弟雙拼別墅設計戶型圖及設計方案圖,帶外觀效果圖,外觀好看
占地:185平方米(單棟)
高端大氣四層復式別墅房屋設計圖,含外觀效果圖
占地:270平方米
最火現代風三層半別墅設計圖,時尚簡約寬敞舒適
占地:169平方米
新中式二層農村別墅設計圖紙及外觀圖,面寬15米左右
占地:148.86平方米
農村中式兩層雙拼別墅房屋設計圖,含效果圖片
占地:200平方米
170平方米新農村現代樓中樓三層別墅設計施工圖紙及效果圖
占地:170平方米
農村160平四間兩層樓房設計圖,全套施工圖+外觀效果圖片
占地:160平方米
小型四合院二層別墅設計圖方案,對稱設計,頂層大露臺
占地:114平方米
簡約大氣四開間二層自建房設計圖,16x10米,經典耐看高顏值
占地:160平方米
簡歐式三層半(4層)農村自建房別墅設計圖效果圖,帶車庫戶型
占地:127平方米
回老家蓋房就選這款新中式一層設計,16乘8米大小正合適
占地:130.1平方米
140平方米一層歐式新農村平房設計圖,主體造價僅11萬
占地:141.218平方米
200平方米穩重大氣三層雙拼別墅建筑設計圖紙,含效果圖19.04米
占地:200平方米
占地180平方米二層鄉村小洋樓設計戶型圖及圖紙,外觀華麗
占地:180平方米
推薦:10套新農村自建房設計圖,2026年最新設計
閱讀次數:4825737次
100套鄉村別墅圖片大全,2026年最新設計
閱讀次數:2492203次
6款農村蓋一層平房的設計圖,10萬元就能建起來
閱讀次數:1852637次
這11個一層農村自建房別墅火爆了朋友圈!我最喜歡戶型十!你呢
閱讀次數:750268次
農村6萬元建一層小別墅圖,你敢相信嗎
閱讀次數:567686次
農村5萬塊就能自建房,6套普通房子設計圖分享,你沒看錯!
閱讀次數:419410次
8套農村漂亮三間平房圖片,非常適合在農村修建!
閱讀次數:411197次
農村自建房化糞池怎么做?附方案及施工過程
閱讀次數:391783次
農村一層三間平房設計圖,告別土氣養老房,讓人忍不住點贊
閱讀次數:350581次
新農村二層樓房圖片造價12萬,挑一套回家建房吧!
閱讀次數:349126次
