
|
現在很多農村人都喜歡復式別墅,挑空客廳再搭配上旋轉樓梯,高端的品質一下就體現出來了。而且旋轉樓梯確實比普通樓梯好看的多了,又時尚又個性。既然外觀建的如此高大上,那么內部的當然也不能太差。今天小編就給大家帶來了三款帶有旋轉樓梯的四層別墅,非常高大上,建一個這樣的房子在村里那是相當的有面子。
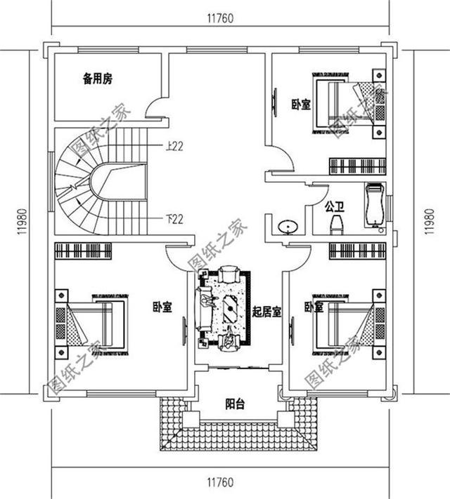
方案一:農村四層樓房設計圖,復式客廳+旋轉樓梯
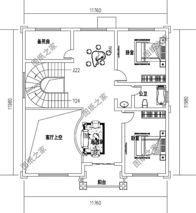
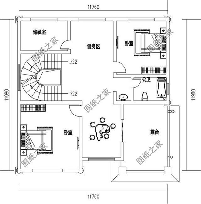
這款戶型外觀大氣,簡歐風格干凈又整潔,超大落地窗,增強室內的采光和通風;室內設計有中空客廳、健身區和休閑區,非常符合新農村建房標準。 ![]() 占地面積:11.76m*11.98m,143平方米左右; 建筑層高:四層; 建筑高度:16.59米(含屋頂); 設計功能: 一層戶型:客廳、廚房、餐廳、臥室、儲藏室、衛生間; 二層戶型:客廳上空、起居室、休閑區、備用房、臥室x2、衛生間、陽臺; 三層戶型:起居室、備用房、臥室x3、衛生間、陽臺; 四層戶型:臥室x2、休閑區、儲藏室、健身區、衛生間、露臺; ![]() ![]() ![]() ![]() 方案二:農村復式別墅自建房設計圖,外觀對稱,帶旋轉樓梯
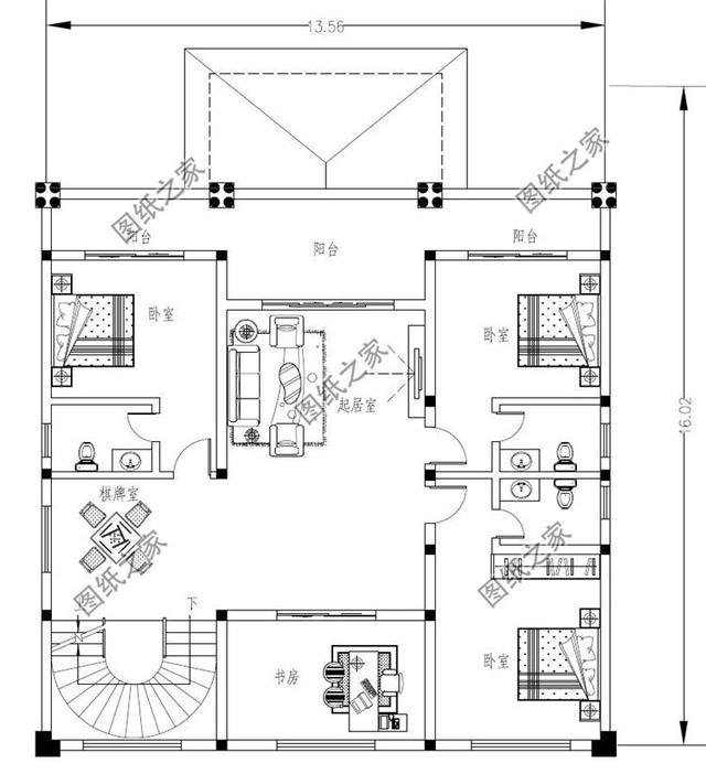
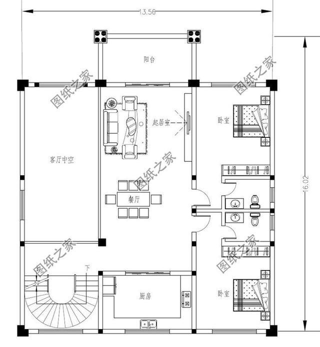
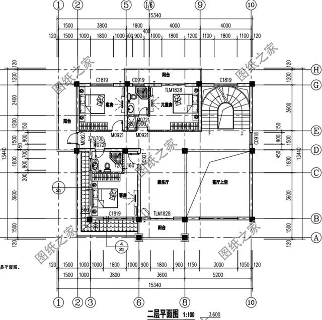
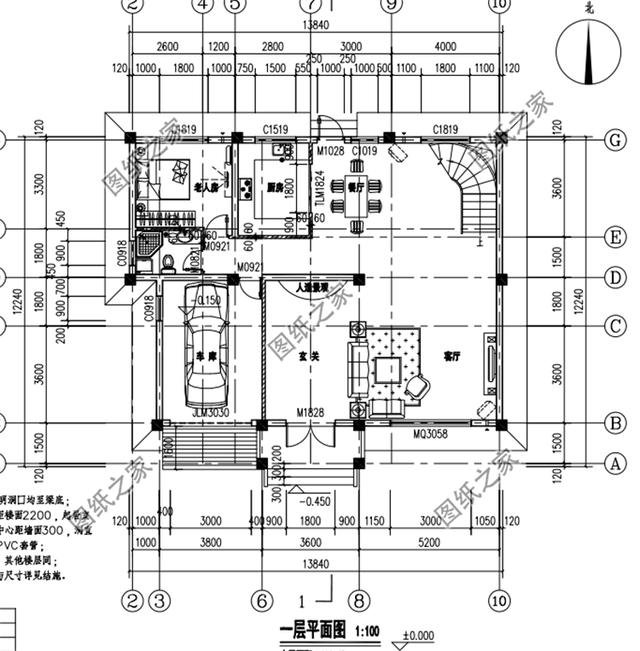
本戶型外觀設計對稱,帶有旋轉樓梯。一層挑空客廳設計非常氣派;二層有兩間臥室帶套衛,室內客廳和生活陽臺;三層三室一廳兩衛,一間棋牌室供日常休閑娛樂;四層有一間臥室帶獨衛,帶茶室;室外是雙露臺設計,滿足晾曬和休閑需求。 ![]() 占地面積:13.56m*16.02m,188.23平方米左右; 建筑層高:四層; 建筑高度:16.08米(含屋頂); 設計功能: 一層戶型:堂屋、客廳、廚房、餐廳、臥室、衛生間; 二層戶型:客廳上空、起居室、廚房、餐廳、臥室(帶衛生間)x2、陽臺; 三層戶型:起居室、棋牌室、書房、臥室(帶衛生間)x3、陽臺x3; 四層戶型:起居室、書房、茶室、臥室(帶衛生間)、露臺x2; ![]() ![]() ![]() ![]() 方案三:新中式四層復式別墅設計圖,帶有旋轉樓梯
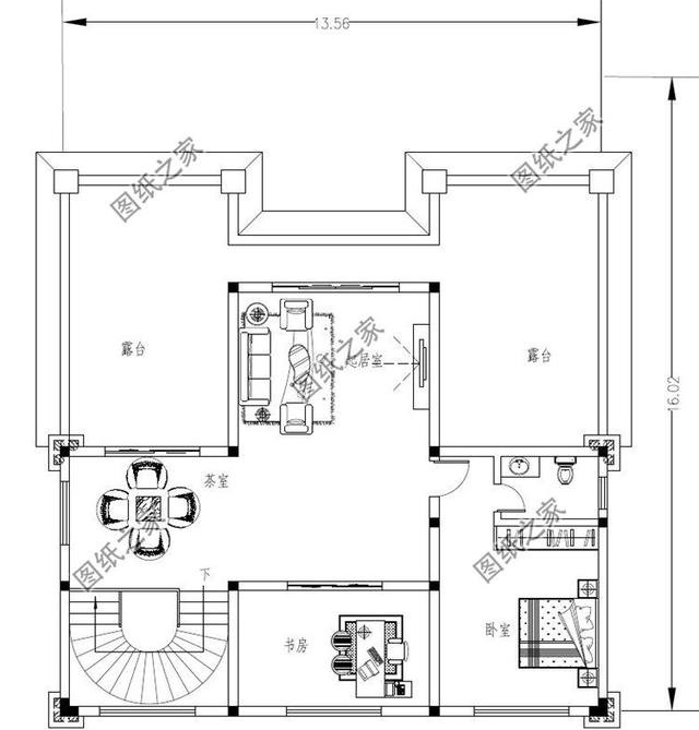
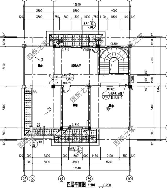
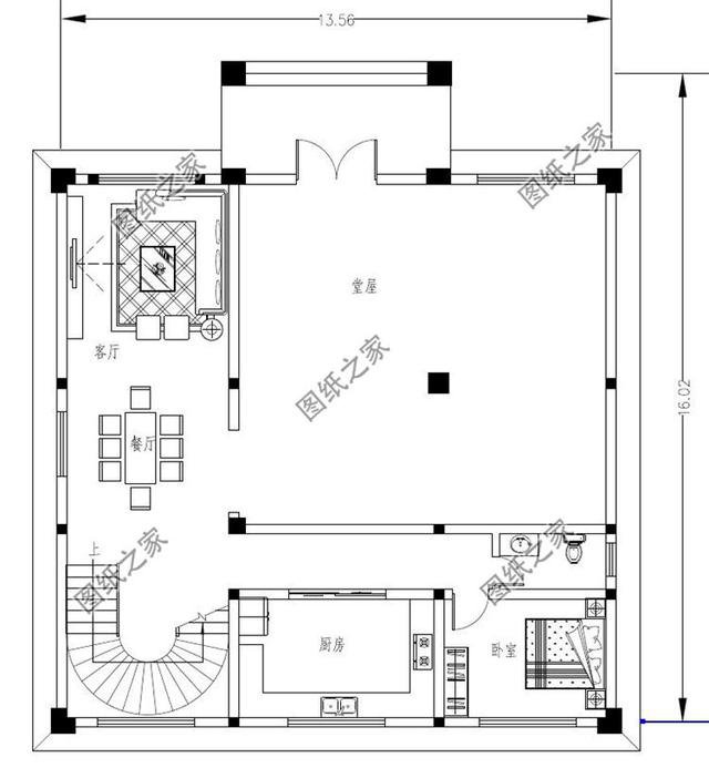
這款新中式四層復式別墅設計圖外觀看起來高端,復式客廳加旋轉樓梯讓本來就寬敞的客廳變得更加高大上,室內采光通風都非常好,帶車庫,不需要車庫可以改成臥室。 ![]() 占地面積:13.90m*12.30m,占地150平方米左右; 建筑層高:四層; 建筑高度:15.57米(含屋頂); 設計功能: 一層戶型展示:玄關、客廳、餐廳、廚房、臥室、衛生間、車庫(可以建成臥室); 二層戶型展示:客廳上空、休閑廳、臥室x3(其中一個臥室帶衛生間)、陽臺x3;【建造時可以把主衛改成公衛,把公衛改成主衛,兒童房向南開門】 三層戶型展示:主臥(帶開放式書房、衣帽間、衛生間)、次臥(帶衣帽間、和衛生間)、娛樂露臺、陽臺x2; 四層戶型展示:活動大廳、雜物房、露臺x2; ![]() ![]() ![]() ![]() 看完這些別墅設計圖是不是被美到了,收藏起來,留著自己建房的時候照著建吧。
圖紙之家-專注農村別墅/自建房設計18年,集合國內200余位經驗豐富的設計師,被評為口碑最好的農村建筑設計公司! |

90平方米新農村住宅設計二層小別墅設計圖紙11x9米
占地:90平方米
125平方米復式三層別墅房屋設計圖,房間多,采光好
占地:125平方米
農村三間二層別墅設計圖,外觀簡約左右對稱
占地:170.06平方米
現代風格四合院別墅設計圖,回老家建一棟吧
占地:177.89平方米
新中式徽派帶露臺別墅設計圖,構思精巧,自然得體
占地:124.82平方米
160平方米農村二層別墅設計效果圖帶CAD建筑圖
占地:160平方米
20萬農村一層半小洋樓圖,自建別墅設計方案推薦
占地:155平方米
農村三層復式自建樓房設計圖,外觀圖大氣
占地:130平方米
共用中堂雙拼兄弟三層別墅設計圖,簡歐式風格
占地:230平方米
210平米新農村自建二層施工圖紙,預留電梯位,美觀大氣舒適實用
占地:208.5平方米
新農村二層房屋建筑施工圖紙,廚房獨立在配房
占地:107平方米
對稱一層農村養老別墅設計方案,室內戶型布局合理,14x12米
占地:141.46平方米
農村二層半新中式小別墅設計圖(帶閣樓層),二層半自建房戶型
占地:144平方米
面寬18米二層新中式別墅圖紙設計,復式戶型,帶堂屋
占地:269.83平方米
造價30萬多的三層簡歐新農村別墅設計施工圖紙及效果圖
占地:133平方米左右
二層新中式小別墅設計圖紙,舒適實用,16米乘12米
占地:189.88平方米
時尚一層別墅圖,一層這樣蓋房最漂亮
占地:160平方米
美式風格鄉村兩層小別墅自建房設計圖,外觀圖好看
占地:150平方米
最美二層樓別墅圖片大全及全套建筑設計圖紙,20萬左右
占地:140平方米
三層新農村140平方米房屋設計圖紙,全套施工圖及效果圖
占地:140平方米
推薦:10套新農村自建房設計圖,2026年最新設計
閱讀次數:4825737次
100套鄉村別墅圖片大全,2026年最新設計
閱讀次數:2492203次
6款農村蓋一層平房的設計圖,10萬元就能建起來
閱讀次數:1852637次
這11個一層農村自建房別墅火爆了朋友圈!我最喜歡戶型十!你呢
閱讀次數:750268次
農村6萬元建一層小別墅圖,你敢相信嗎
閱讀次數:567686次
農村5萬塊就能自建房,6套普通房子設計圖分享,你沒看錯!
閱讀次數:419410次
8套農村漂亮三間平房圖片,非常適合在農村修建!
閱讀次數:411197次
農村自建房化糞池怎么做?附方案及施工過程
閱讀次數:391783次
農村一層三間平房設計圖,告別土氣養老房,讓人忍不住點贊
閱讀次數:350581次
新農村二層樓房圖片造價12萬,挑一套回家建房吧!
閱讀次數:349126次
