
|
隨著現在時代的發展,農村發展已經越來越好了,人們的經濟水平也是越來越高。很多在城里上班掙錢的也都不選擇買房而是回到農村老家自己蓋房子,但是又找不到喜歡的款式,所以今天小編就給大家帶來了三款農村15×12米自建房設計圖,外觀造型非常美觀,內部設計也很合理,符合農村居住需求,有喜歡的朋友可以收藏。
方案一:農村復式二層別墅設計圖,客廳中空,歐式外觀
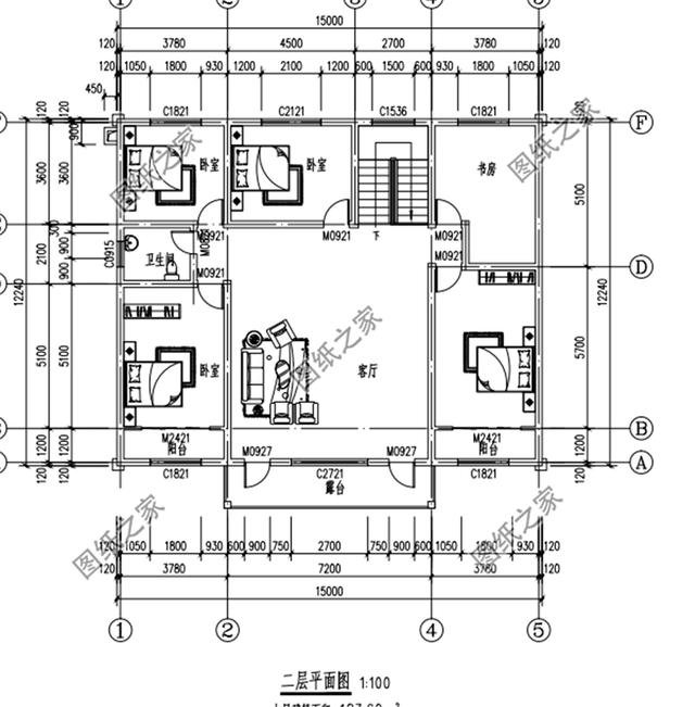
圖紙介紹:本戶型客廳中空,歐式風格外觀,棕紅色的坡屋頂搭配米色的外墻,整體呈現一種和諧美,濃濃的歐式風。 占地面積:15.0m*12.0m,180平方米左右; 建筑層高:二層; 建筑高度:10.26米(含屋頂); 設計功能: 一層別墅戶型:客廳、廚房、餐廳、臥室x2、衛生間、娛樂室(功能自定義)、儲藏間; 二層別墅戶型:客廳上空、起居室、主臥(帶衛生間)、臥室x4、衣帽間、衛生間、陽臺x3; ![]() ![]() ![]() ![]() 方案二:農村二層房子設計圖,占地150平方米
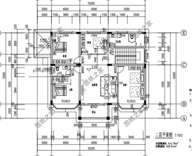
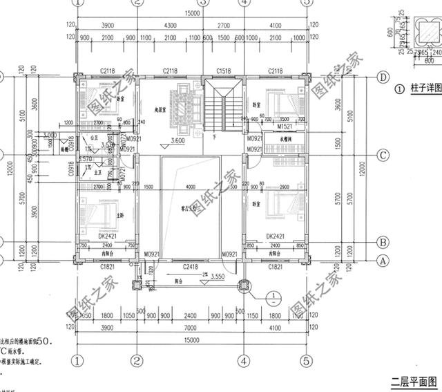
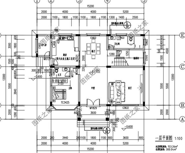
圖紙介紹:這款別墅戶型占地150平面左右,面積不算大,室內的布局很緊湊,外觀在農村的話顯得低調不張揚,人人見了都喜歡。 占地面積:15.2m*12.0m,153平方米左右; 建筑層高:二層; 建筑高度:9.8米(含屋頂); 設計功能: 一層戶型:客廳、餐廳、廚房、柴火房、衛生間、主臥(帶衛生間); 二層戶型:起居室、主臥(帶衛生間)、臥室x3、衛生間、陽臺; ![]() ![]() ![]() ![]() 方案三:農村二層小樓自建房設計圖,外觀凹凸有致,占地180平方米
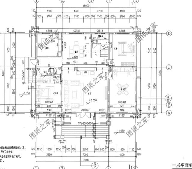
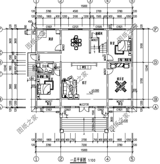
圖紙介紹:本戶型整體外觀凹凸有致,紅色的坡面屋頂與暖黃色的墻壁交相呼應,簡直美的不行,住在這樣的房子里真是一種享受。 占地面積:15.0m*12.2m,180平方米左右; 建筑層高:二層; 建筑高度:9.3米(含屋頂); 設計功能: 一層戶型:客廳、餐廳、廚房、臥室×2、娛樂室、衛生間、儲藏間; 二層戶型:客廳、臥室×4、陽臺、書房、衛生間、陽臺×2; ![]() ![]() ![]() ![]() 這幾款戶型不知道有沒有大家中意的呢?喜歡收藏圖紙。
圖紙之家-專注農村別墅/自建房設計18年,集合國內200余位經驗豐富的設計師,被評為口碑最好的農村建筑設計公司! |

農村最漂亮二層歐式別墅設計圖,面寬16.5米(含車庫)
占地:180.366
農村二層小洋樓設計圖,帶外觀效果圖,外觀新穎,漂亮
占地:130平方米
2026新農村三層雙拼房屋設計圖紙平面圖與效果圖,帶堂屋
占地:190平方米
簡歐風格二層別墅設計圖,經典不過時大氣時尚,漂亮的不像話!
占地:205.68平方米
二層中式四合院別墅設計圖,經典、漂亮(全套施工圖)
占地:350平方米
四間兩層實用簡約的住房設計圖,毛坯24萬,農村建正合適
占地:159.48平方米
帶堂屋新農村三層房屋別墅設計圖紙,帶外觀效果圖
占地:214平方米
12x10米帶閣樓的農村一層半別墅設計圖,外觀洋氣
占地:110.54平方米
農村二層別墅設計圖,帶外觀效果圖,兄弟自建推薦
占地:多種戶型
農村三層樓房設計圖及效果圖,復式磚混結構
占地:148平方米
面寬8米農村二間二層小別墅設計方案,施工簡單造價低
占地:73.77平方米
美式風格鄉村兩層小別墅自建房設計圖,外觀圖好看
占地:150平方米
私人二層歐式別墅建筑設計圖(效果圖+全套別墅設計方案)
占地:144平方米
新中式帶露臺30萬左右農村三層別墅,客廳中空
占地:110平方米
小型雙拼一層平房設計圖,外觀古樸
占地:100平方米
15萬左右一層農村自建房設計圖,一家住剛剛好
占地:131.33平方米
95平米二層別墅必蓋戶型圖,造型洋氣,布局接地氣,趕緊回村建
占地:95.38平方米
經典戶型二層農村小別墅設計圖,造價25萬內
占地:140平方米
平屋頂二層自建房帶商鋪別墅設計圖紙及外觀圖
占地:225平方米
南方北方新農村房屋設計圖紙(含效果圖),三層住宅設計圖紙
占地:164平方米
推薦:10套新農村自建房設計圖,2026年最新設計
閱讀次數:4825737次
100套鄉村別墅圖片大全,2026年最新設計
閱讀次數:2492203次
6款農村蓋一層平房的設計圖,10萬元就能建起來
閱讀次數:1852637次
這11個一層農村自建房別墅火爆了朋友圈!我最喜歡戶型十!你呢
閱讀次數:750268次
農村6萬元建一層小別墅圖,你敢相信嗎
閱讀次數:567686次
農村5萬塊就能自建房,6套普通房子設計圖分享,你沒看錯!
閱讀次數:419410次
8套農村漂亮三間平房圖片,非常適合在農村修建!
閱讀次數:411197次
農村自建房化糞池怎么做?附方案及施工過程
閱讀次數:391783次
農村一層三間平房設計圖,告別土氣養老房,讓人忍不住點贊
閱讀次數:350581次
新農村二層樓房圖片造價12萬,挑一套回家建房吧!
閱讀次數:349126次
