
|
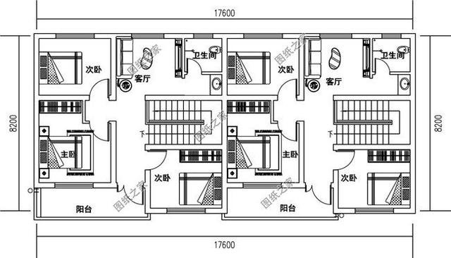
在我們的農村生活中,兄弟姐妹之間都是互幫互助,共同孝順父母,一般家里有兄弟姐妹的都住的很近,一是方照顧父母,二是兄弟姐妹之間互相照料。有心的兄弟姐妹可以考慮建一棟雙拼別墅,為家族共同打造一個大家庭,平日里感情聯系深厚,小孩子互相打鬧,家中老人看了心里也開心,今天小編推薦四款中式兄弟雙拼別墅,有二層和三層的哦!感情好的兄弟都入手了,趕緊看看吧! 第一款: 農村新三層設計圖以及戶型圖,簡單大氣![]() 這款農村新三層設計圖,倆兄弟可以這樣建房子,雙拼戶型選的妙,兄弟和睦生活好。一直是兄弟建房的首選,備受農村自建房者的喜愛,從建筑設計的角度上來說,2戶建成一棟,建筑的展示面寬了,造型更顯大氣,造價還經濟。本款雙拼造型比例極好,外墻材質感十足,色彩也十分素雅大方。富有層次,內部功能布局合理,給人良好的居住體驗。 占地面積:16m*16.48m,235.26平方米,單戶117.63平; 建筑層高:三層; 建筑高度:12.508米(含屋頂); 設計功能: 一層:玄關、客廳、餐廳、廚房、烤火房、衛生間; 二層:客廳、茶室、臥室x3、衛生間、露臺(共用); 三層:客廳、臥室、衛生間、露臺、陽臺; ![]() ![]() ![]() 第二款: 小戶型經濟農村二層雙拼自建房屋別墅設計圖以及戶型圖,簡約實用![]() ![]() ![]() 這款小戶型經濟農村雙拼自建房屋別墅設計圖,簡約造價低,雖然占地面積小,但功能齊全,簡單大氣的二層小別墅,建在農村非常時尚。獨進獨出,關上門來就是兩家人,能夠互不打擾。一層客廳、廚房、餐廳、衛生間、臥室都有,二層每家也有3間房,在農村足夠使用了。 占地面積:17.6m*8.2m,138平方米左右,單戶69平方米左右; 建筑層高:二層 建筑高度:8.37米 設計功能: 一層房屋戶型:客廳、廚房、餐廳、衛生間、臥室; 二層房屋戶型:客廳、主臥、次臥×2、衛生間、陽臺; ![]() ![]() 第三款:農村新三層雙拼自建房設計圖以及戶型圖,帶露臺設計![]() 這款農村新三層雙拼別墅設計圖,豪華霸氣的外觀效果圖,最適合有倆兄弟的家庭!別墅主體采用白色防水涂料裝飾,灰色面磚點綴底部,簡約大方,整體看起來淡雅舒適,體現出業主的超群品味。將中國元素與現代風格相融合,形成特有的新風格,別具一格,適合中國人的農村生活,對稱設計,符合國人審美,沉穩不失時尚。經典的窗框樣式,設有多扇窗戶,南北通透,增加室內采光。 占地面積:18.8m*14.8m,256.02平方米左右,單戶128.01平左右; 建筑層高:三層; 建筑高度:13.011米(含屋頂); 設計功能: 一層:堂屋、客廳、餐廳、廚房、臥室; 二層:公共客廳、起居室、臥室(帶衛生間)、臥室x3; 三層:公共客廳、起居室、臥室x2、衛生間、露臺x2; ![]() ![]() ![]() 第四款:二層新設計圖以及戶型圖,時尚漂亮![]() 這款二層新農村自建房子設計圖,面寬19米,脫俗雅致!別墅的整體采用淺白色真石漆與灰色文化磚裝飾,整體造型簡約大方。正面的二層陽臺和露臺僅采用簡單的鐵藝護欄展現的是傳統樸素勤儉的良好美德。兩扇朱砂紅大門是寓意生活紅紅火火,是吉祥的顏色。一層入戶是客廳,另一側是臥室,還帶衛生間,給父母親養老用,北面是廚房和餐廳,兩者相連,能很好的相互利用空間,還能方便打理衛生。樓梯旁設有儲藏室,用于堆置生活雜物,二層的南面是帶有陽臺的客廳,夏天清爽又透氣,室內的環境非常溫馨優雅。北面兩角是兩間臥室,其中一間帶衛生間,另一間帶書房。 占地面積:19.8m*13.3m,240平方米左右,單戶120平方米左右; 建筑層高:二層 建筑高度:10.277米 設計功能: 一層房屋戶型:客廳、廚房、餐廳、儲物間、臥室(帶衛生間)、臥室、衛生間; 二層房屋戶型:客廳、臥室(帶書房)、臥室(帶衛生間)、衛生間、陽臺、露臺 ![]() ![]() 今天介紹的中式雙拼別墅設計圖以及戶型圖你喜歡哪個呢?快分享給自己的兄弟姐妹看看吧!過完年好建一棟!
圖紙之家-專注農村別墅/自建房設計18年,集合國內200余位經驗豐富的設計師,被評為口碑最好的農村建筑設計公司! |

經典一層帶閣樓三合院別墅設計圖,18米乘9.5米
占地:118.63平方米
一層共用,二層兄弟雙拼的二層別墅設計圖
占地:182.48平方米
小型三層別墅cad建筑圖紙帶效果圖,帶屋頂露臺
占地:101平方米左右
三層帶車庫農村別墅設計圖紙(含外觀效果圖)
占地:147.7平方米
新中式農村自建三層別墅房屋施工,12x10米簡潔雅致
占地:121.77平方米
客廳中空的三層豪華小別墅設計圖,時尚靚麗,鄉下建一棟有面子
占地:171.25平方米
小平米四層自建房屋設計圖紙,戶型簡單實用,占地80平方米
占地:80平方米
農村一層養老別墅設計圖,14.8x17.9米,戶型對稱,實用布局
占地:193平方米
150平米二層鄉村小別墅圖,戶型合理,外觀清新淡雅
占地:150平方米
16x14米三層雙拼別墅設計圖,外觀精致大氣內里實用,兄弟建房上
占地:217.28平方米
獨棟三層樓房設計圖紙及效果圖,農村蓋房推薦
占地:125平方米
平屋頂12米寬別墅三層設計圖,平頂照樣建的漂亮
占地:129.6平方米
經典實用的新農村三層房屋設計圖紙,推薦自建使用
占地:165平方米
帶架空層的一層自建房太香了!防潮、停車、儲物全兼顧
占地:152.06平方米
150平方米的新農村自建三層小別墅設計施工圖紙及效果圖
占地:150平方米
120平方米新農村房屋設計圖紙,新中式效果圖,3層住宅設計方案
占地:120平方米
農村自建三間三層樓房設計圖,帶露臺,經典實用
占地:135平方米
140平三層自建房別墅設計圖,外觀圖大氣、美觀
占地:140平方米
戶型獨特的、二層臥室挑高的別墅房屋設計圖,外觀簡歐風格
占地:250平方米
新農村小戶型4層自建房三層半別墅設計圖,平屋頂設計
占地:95平方米
推薦:10套新農村自建房設計圖,2026年最新設計
閱讀次數:4825737次
100套鄉村別墅圖片大全,2026年最新設計
閱讀次數:2492203次
6款農村蓋一層平房的設計圖,10萬元就能建起來
閱讀次數:1852637次
這11個一層農村自建房別墅火爆了朋友圈!我最喜歡戶型十!你呢
閱讀次數:750268次
農村6萬元建一層小別墅圖,你敢相信嗎
閱讀次數:567686次
農村5萬塊就能自建房,6套普通房子設計圖分享,你沒看錯!
閱讀次數:419410次
8套農村漂亮三間平房圖片,非常適合在農村修建!
閱讀次數:411197次
農村自建房化糞池怎么做?附方案及施工過程
閱讀次數:391783次
農村一層三間平房設計圖,告別土氣養老房,讓人忍不住點贊
閱讀次數:350581次
新農村二層樓房圖片造價12萬,挑一套回家建房吧!
閱讀次數:349126次
