
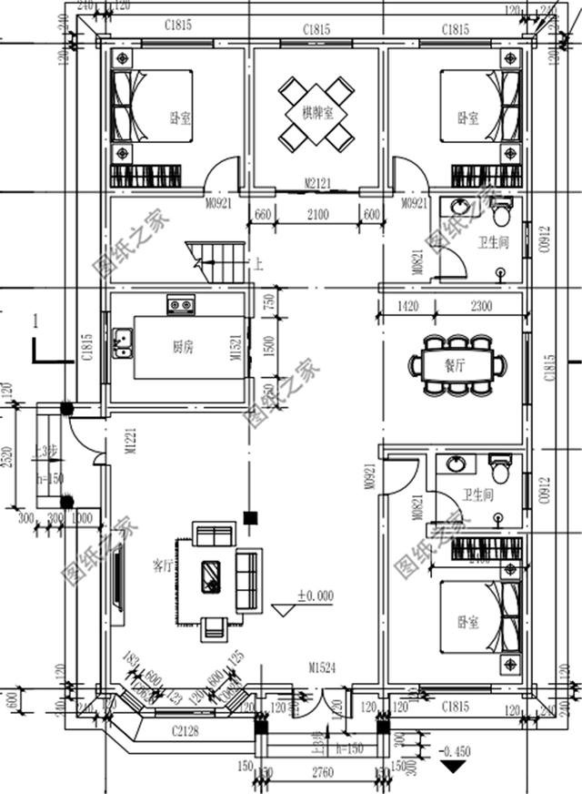
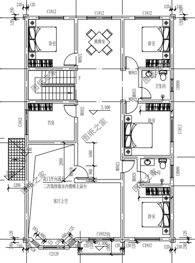
第一款:面寬15米新農村二層中式自建房設計圖紙![]() 面寬15米新農村二層中式自建房設計圖紙,挑空客廳,一層戶外帶 占地面積:15.3m*15.05m,170.636平方米左右; 建筑層高:二層; 建筑高度:10.733米(含屋頂); ![]() ![]() 設計功能: 一層戶型:客廳、廚房、餐廳、儲藏室、活動室、臥室(帶衛生間)、衛生間; 二層戶型:客廳上空、起居室、臥室(帶衛生間)、臥室x3、衛生間、陽臺x2; 第二款:小開間大進深的二層別墅設計圖紙![]() 小開間大進深的二層別墅設計圖紙,暖色系真石漆外墻防臟防潮,美觀又實用,內部客廳作挑高設計,高大氣派。 占地面積:10.5m*16.1m,177平方米左右; 建筑層高:二層; 建筑高度:6.2米(含屋頂); ![]() ![]() 設計功能: 一層戶型:客廳、餐廳、廚房、衛生間、主臥(帶衛生間)、臥室×2、棋牌室; 二層戶型:客廳上空、休閑廳、主臥(帶衛生間)、臥室x3、衛生間、書房; 第三款:農村洋氣二層小樓別墅設計圖![]() 農村洋氣二層小樓房別墅設計圖,帶車庫,一層設有車庫,一進門就是客廳,增加室內空間立體感。二樓有大露臺設計,延伸空間,同時能夠晾曬東西,也可以賞景、度過休閑的時間。 占地面積:16.6m*13.5m,193平方米左右; 建筑層高:二層; 建筑高度:9.4米(含屋頂); ![]() ![]() 設計功能: 一層戶型:客廳、廚房、餐廳、柴火灶、臥室(帶衛生間)、臥室x2、洗衣間、衛生間、車庫; 二層戶型:客廳上空、客廳、健身房、書房、臥室(帶衛生間)、衣帽間、臥室、衛生間、露臺; 以上就是農村復式二層別墅設計圖,都是不錯的建房圖紙。
圖紙之家-專注農村別墅/自建房設計18年,集合國內200余位經驗豐富的設計師,被評為口碑最好的農村建筑設計公司! |

時尚現代的二層農村別墅設計圖,年輕人建房的不二之選
占地:131.76平方米
農村簡易二層樓設計圖,外觀簡單漂亮,經典時尚
占地:140平方米
農村建房兄弟雙拼兩層住宅設計圖,單戶150平米左右
占地:300平方米
全套三層農村房屋設計圖紙,客廳中空,大大的窗戶,采光極好,
占地:160平米
歐式風二層別墅設計圖,帶陽光房設計,時尚美觀還很實用
占地:多戶型可選
二間二層小型別墅設計圖,美觀、經濟、實用!
占地:96平方米
農村別墅220-240平米的雙拼自建房設計圖,屋頂帶老虎窗
占地:220平方米
170平方米新農村實用的三層雙拼設計圖紙,帶公用堂屋!
占地:173.62平方米
農村自建二層半樓房效果圖,美觀大氣布局合理,很適合農村人自
占地:160.11平方米
農村最好看18萬左右兩層小樓圖,外觀、造型簡潔大方
占地:120平方米
開間4米多的農村三層別墅設計圖,一開間三層自建房
占地:66.65平方米
150平歐式別墅房屋設計圖,外觀精美、氣派
占地:150平方米
人氣頗高的三層新中式別墅方案,五種戶型,五種尺寸
占地:120-165平方米
對稱一層農村養老別墅設計方案,室內戶型布局合理,14x12米
占地:141.46平方米
一層農村自建房設計,背面不開窗,15乘10米,內部布局實用
占地:多戶型可選
105平方米新農村三層別墅設計圖,全套CAD建筑圖+效果圖
占地:105平方米
雙拼二層大別墅設計圖,大面寬小進深,讓兄弟永遠不分家
占地:207.15平方米
三層半復式別墅設計方案,全套設計圖+效果圖
占地:160平方米
鄉村一層帶閣樓歐式小別墅,“L”型七字設計戶型
占地:194.218平方米
簡單經濟一層自建養老房,12米乘9.5米,溫暖舒適施工簡單
占地:103.2平方米
推薦:10套新農村自建房設計圖,2026年最新設計
閱讀次數:4825737次
100套鄉村別墅圖片大全,2026年最新設計
閱讀次數:2492203次
6款農村蓋一層平房的設計圖,10萬元就能建起來
閱讀次數:1852637次
這11個一層農村自建房別墅火爆了朋友圈!我最喜歡戶型十!你呢
閱讀次數:750268次
農村6萬元建一層小別墅圖,你敢相信嗎
閱讀次數:567686次
農村5萬塊就能自建房,6套普通房子設計圖分享,你沒看錯!
閱讀次數:419410次
8套農村漂亮三間平房圖片,非常適合在農村修建!
閱讀次數:411197次
農村自建房化糞池怎么做?附方案及施工過程
閱讀次數:391783次
農村一層三間平房設計圖,告別土氣養老房,讓人忍不住點贊
閱讀次數:350581次
新農村二層樓房圖片造價12萬,挑一套回家建房吧!
閱讀次數:349126次
