
|
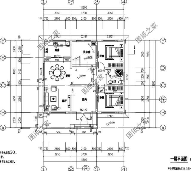
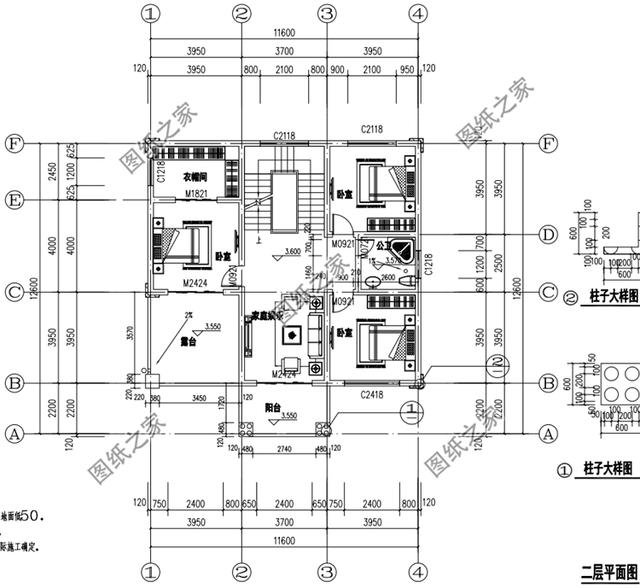
大家都知道農村蓋房子肯定比在城里買房子要劃算 款式一:農村二層別墅設計圖,現代風格,平屋頂設計![]() ![]() ![]() ![]() 圖紙介紹:本戶型占地142平米左右,造價低,施工簡單,簡約現代風格,外觀大氣時尚,室內布局空間利用超高,一層設計有2室3廳2衛,動靜分區舒適度極高。二層設計有臥室套間,超大的屋頂露臺,可以在屋頂做個泳池,不管是夏天還是冬天都非常享受。 占地面積:12.6m*13.1m,142平方米左右; 建筑層高:二層; 建筑高度:10.5米(含屋頂); 設計功能: 一層戶型:多功能廳、客廳、餐廳、廚房、臥室(帶衛生間)、臥室、衛生間; 二層戶型:起居室、臥室(帶書房、衣帽間、衛生間)、臥室、衛生間、陽臺、露臺; 款式二:農村歐式二層小別墅設計圖,占地146平米左右![]() ![]() ![]() 圖紙介紹:這款二層歐式小別墅占地146平米左右,外觀造型精致漂亮,采用經典暖色調,建筑美而溫馨,很適合農村自建,房子占地不大但功能很齊全。布局合理,空間利用率極高,很符合農村生活。 占地面積:11.60m*12.60m,146平方米左右; 建筑層高:二層; 建筑高度:9米左右(含屋頂); 設計功能: 一層戶型:門廳、玄關、客廳、餐廳、廚房 、臥室x2、衛生間、洗衣房; 二層戶型:家庭娛樂廳、臥室(帶衣帽間)、臥室x2、衛生間、陽臺、露臺; 款式三:農村二層別墅設計圖,占地145平米![]() ![]() ![]() ![]() 圖紙介紹:這款二層美式自建別墅占地145平米,美式風格非常的大氣,外觀美觀,造型精致,室內布局實用、合理。 占地面積:13.4m*11.0m,145平方米左右; 建筑層高:二層; 建筑高度:9.34米(含屋頂); 設計功能: 一層戶型設計:玄關、客廳、餐廳、廚房、臥室x2、衛生間、洗衣間(可改成主衛)、樓梯間; 二層戶型設計:客廳、主臥(帶書房、衛生間、陽臺)、臥室x2、衛生間、大露臺; 這么好看的戶型千萬不要錯過了,喜歡哪一款趕快收藏。
圖紙之家-專注農村別墅/自建房設計18年,集合國內200余位經驗豐富的設計師,被評為口碑最好的農村建筑設計公司! |

時尚一層別墅圖,一層這樣蓋房最漂亮
占地:160平方米
現代風格三層別墅設計圖紙和效果圖,農村自建精選
占地:129平方米
鄉下建房一層戶型圖,一層住宅設計圖紙,誰說一層平房不能叫別
占地:200平方米
新中式風格二層住宅設計圖,農村自建房不土氣
占地:144.5平方米
140平方米三層別墅設計圖紙,歐式帶外觀效果圖
占地:140平方米
新中式農村三層房屋效果圖及施工圖,140平方米左右
占地:140平方米
160平方米二層小別墅設計圖紙及效果圖大全,12X13米
占地:162平方米
新中式徽派帶露臺別墅設計圖,構思精巧,自然得體
占地:124.82平方米
100來平復式旋轉樓梯二層簡歐別墅設計圖,戶型實用
占地:101.523平方米
獨棟經濟型二層小別墅房屋設計圖,含全套施工圖效果圖
占地:多種戶型
2026年新款二層半農村自建小別墅設計圖紙,占地150平方米
占地:150平方米
100平方米農村二層CAD設計圖紙帶外觀圖,12X8米
占地:100平方米
現代二層農村別墅全套設計圖,大旋轉露臺+超大中空客廳
占地:133平方米
中式古風別墅設計圖,一層三合院設計,經濟舒適,時尚與傳統的
占地:275.7平方米
經典的農村三層小樓房設計圖,外觀圖片時尚、精致
占地:100平方米
110平房子設計圖,經典的農村自建房屋設計圖
占地:110平方米
新農村二層住宅設計圖紙,簡單別墅設計圖(含效果圖)
占地:77.6平方米
三層新農村自建房屋設計圖紙,占地120平米左右
占地:120平方米
四開間兩層別墅設計圖,農村自建住著舒適的好方案!
占地:187.04平方米
二層復式農村別墅設計圖,進深12米,戶型堪稱完美
占地:193.2平方米
推薦:10套新農村自建房設計圖,2026年最新設計
閱讀次數:4825737次
100套鄉村別墅圖片大全,2026年最新設計
閱讀次數:2492203次
6款農村蓋一層平房的設計圖,10萬元就能建起來
閱讀次數:1852637次
這11個一層農村自建房別墅火爆了朋友圈!我最喜歡戶型十!你呢
閱讀次數:750268次
農村6萬元建一層小別墅圖,你敢相信嗎
閱讀次數:567686次
農村5萬塊就能自建房,6套普通房子設計圖分享,你沒看錯!
閱讀次數:419410次
8套農村漂亮三間平房圖片,非常適合在農村修建!
閱讀次數:411197次
農村自建房化糞池怎么做?附方案及施工過程
閱讀次數:391783次
農村一層三間平房設計圖,告別土氣養老房,讓人忍不住點贊
閱讀次數:350581次
新農村二層樓房圖片造價12萬,挑一套回家建房吧!
閱讀次數:349126次
