
|
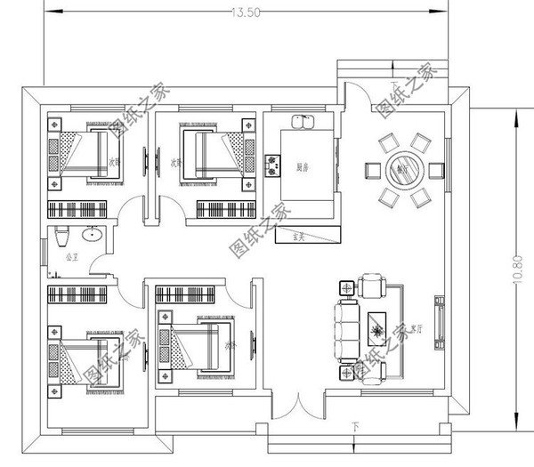
在好多農村各地家里建別墅,都一定要跟風,建一個三四層的大別墅才夠氣派。但一點都不實用,特別是家里的年輕人都出去打工,所以其實現在有很多一層的農村小別墅,建出來的效果一點都不輸那些三四層的。今天小編推薦4款10萬的一層房設計圖以及戶型圖,喜歡的看看吧! 第一款:一層4間自建房別墅設計圖以及戶型圖,占地160平左右![]() 簡單實用。入戶既是玄關,與客廳連接一起,使空間更加寬敞,餐廳和廚房相連,用餐方便,兩間臥室朝北,一間朝南,有獨立衛生間。外觀精致漂亮,真正做到了好貨也便宜。 占地面積:17.5m*9.5m,162.13平方米左右; 建筑層高:一層; 建筑高度:6.225米(含屋頂); 設計功能: 一層戶型:玄關、客廳、臥室(帶衛生間)、臥室x2、衛生間、廚房、餐廳 ![]() 第二款:最漂亮的簡單實用一層四開間小別墅設計圖以及戶型圖,4臥2廳帶玄關![]() 年輕人都喜歡。外墻僅用簡單的米黃色噴漆裝飾,底部采用棕色文化石做基腳,藍色的屋面瓦,精致美觀。建筑入戶設計玄關,和寬敞的客廳,建筑預留四間臥室,分別位于建筑的兩個角落,互不打擾。 占地面積:13.5m*10.8m,138.82平方米左右; 建筑層高:一層; 建筑高度:7.987米(含屋頂); 設計功能: 一層戶型:玄關、客廳、臥室x4、廚房、餐廳 ![]() 第三款:回農村蓋一層養老房別墅設計圖以及戶型圖,面寬16米![]() 四開間方案圖,經濟實用接地氣!大氣的藍色屋頂與天空相媲美,經典的羅馬柱和凸出窗戶別具一格,米黃色外墻漆與淡黃色文化石交相呼應,經典耐看,不會過時。 占地面積:16m*8.9m,127.35平方米左右; 建筑層高:一層; 建筑高度:6.15米(含屋頂); 設計功能: 一層戶型:玄關、客廳、廚房、餐廳、臥室x3、衛生間 ![]() 第四款:帶院子的一層農村別墅設計圖以及喜歡他,造價不高,養老房首選![]() 家里有老人家一般比較適合住一樓。別墅外觀是以灰色為主,搭配藍色坡屋頂,整體大氣沉穩,精致美觀,內部布局合理,院子里可以放松休息,同時還能種點花花草草,聽起來還是很美好的。 占地面積:11.83m*12.5m,144.819平方米; 建筑層高:一層; 建筑高度:6.741米(含屋頂); 設計功能: 一層戶型:客廳、廚房、餐廳、臥室X3、臥室(帶衛生間)、儲藏室、衛生間 ![]() 以上就是小編推薦的10萬一層自建房設計圖以及戶型圖,想好哪款了嗎?讓父母看看建一棟!
圖紙之家-專注農村別墅/自建房設計18年,集合國內200余位經驗豐富的設計師,被評為口碑最好的農村建筑設計公司! |

12.8x10米二層自建房別墅設計圖,大氣美觀實用,建造無憂
占地:128平方米
鄉村高檔四層豪華別墅自建房設計圖,一層不帶餐廳廚房戶型
占地:147平方米
三間三層房子設計圖,高端三層樓房設計圖,三層兩個大露臺
占地:170平方米
150平米農村兩層樓房設計圖,簡單大氣時尚
占地:150平方米
好看又簡單的二層小樓設計圖,農村自建20萬元左右
占地:130平方米
農村三層雙拼房屋建筑施工設計圖紙,帶車庫
占地:180平方米
中式徽派二層農村別墅設計圖,白墻黛瓦馬頭墻,永不過時
占地:171平方米
120平方米新農村全套二層施工設計圖紙大全11X11米
占地:120平方米
三層樓房設計圖紙含效果圖,外觀造型高低錯落,別致大方
占地:152.4平方米
高端三層別墅設計圖紙,客廳中空,帶地下室,設置多個套間
占地:220平方米
占地130平方米二層鄉村別墅自建房圖紙設計圖,效果圖好看
占地:131.658平方米
三十萬農村別墅設計圖帶外觀圖片,30萬造價別墅展示
占地:125平方米
經典三層農村房屋設計圖紙,占地100平米左右,外觀典雅精致,內
占地:100平方米
125平方米新中式農村自建三層別墅建筑設計圖紙及效果圖
占地:124平方米
一層四合院別墅,中式庭院寬綽大氣,這樣的合院養老最合適
占地:396平方米
120平方兩層房子設計圖及圖片,外觀大方好看,內部結構合理
占地:120平方米
90平-100平小戶型一層三間平房農村別墅設計圖方案戶型
占地:多戶型可選
最漂亮的一層平房圖片,全套設計圖+高清效果圖
占地:145平方米
200平方二層小別墅設計圖紙,含效果圖,歐式風格帶車庫
占地:197.6平方米
農村五間房子設計圖,大戶型別墅設計圖推薦
占地:240平方米
推薦:10套新農村自建房設計圖,2026年最新設計
閱讀次數:4825737次
100套鄉村別墅圖片大全,2026年最新設計
閱讀次數:2492203次
6款農村蓋一層平房的設計圖,10萬元就能建起來
閱讀次數:1852637次
這11個一層農村自建房別墅火爆了朋友圈!我最喜歡戶型十!你呢
閱讀次數:750268次
農村6萬元建一層小別墅圖,你敢相信嗎
閱讀次數:567686次
農村5萬塊就能自建房,6套普通房子設計圖分享,你沒看錯!
閱讀次數:419410次
8套農村漂亮三間平房圖片,非常適合在農村修建!
閱讀次數:411197次
農村自建房化糞池怎么做?附方案及施工過程
閱讀次數:391783次
農村一層三間平房設計圖,告別土氣養老房,讓人忍不住點贊
閱讀次數:350581次
新農村二層樓房圖片造價12萬,挑一套回家建房吧!
閱讀次數:349126次
